W279 2256889-2/31E
IM NAMEN DER REPUBLIK!
Das Bundesverwaltungsgericht hat durch den Richter Mag. Peter KOREN als Vorsitzenden, sowie Dr. Ilse POHL als fachkundige Laienrichterin der Auftraggeberseite und Dr. Adriane KAUFMANN als fachkundige Laienrichterin der Auftragnehmerseite im Nachprüfungsverfahren betreffend das Vergabeverfahren "A10 Tauernautobahn, Abschnitt Gmünd - Spittal, Neubau Tragwerke L43 Talübergang Steinbrückenbach" der Auftraggeberin ASFINAG Autobahnen- und Schnellstraßen- Finanzierungs-Aktiengesellschaft, Schnirchgasse 17, 1030 Wien, vergebende Stelle ASFINAG Bau Management GmbH, Schnirchgasse 17, 1030 Wien, aufgrund des Antrages der aus den drei Unternehmungen XXXX gebildeten Bietergemeinschaft als Antragstellerin, vertreten durch Estermann Pock Rechtsanwälte GmbH, Rennweg 17, Stock, 5 1030 Wien, vom 11.07.2022 "auf Nichtigerklärung der Zuschlagsentscheidung", nach Durchführung einer mündlichen Verhandlung am 08.09.2022 zu Recht erkannt:
A)
Dem Antrag der aus den drei Unternehmungen XXXX gebildeten Bietergemeinschaft „auf Nichtigerklärung der Zuschlagsentscheidung“ wird stattgegeben.
Die Zuschlagsentscheidung wird für nichtig erklärt.
B)
Die Revision ist gemäß Art. 133 Abs. 4 B-VG nicht zulässig.
Entscheidungsgründe:
I. Verfahrensgang:
1. Mit Schriftsatz vom 11.07.2022 beantragte die aus den drei Unternehmungen XXXX gebildete Bietergemeinschaft, vertreten durch Estermann Pock Rechtsanwälte GmbH, Rennweg 17, Stock 5 1030 Wien (in der Folge Antragstellerin), die zu Gunsten der XXXX (in der Folge präsumtive Zuschlagsempfängerin oder präsZE, präZE, prZE); getroffene Zuschlagsentscheidung für nichtig zu erklären, der Antragstellerin – soweit gesetzlich zulässig – Einsicht in den Vergabeakt sowie in den Akt des Bundesverwaltungsgerichts (in der Folge BVwG) zu gewähren; eine mündliche Verhandlung durchzuführen sowie die ASFINAG Autobahnen- und Schnellstraßen- Finanzierungs-Aktiengesellschaft, Schnirchgasse 17, 1030 Wien (in der Folge Auftraggeberin oder Antragsgegnerin) dazu zu verpflichten, der Antragstellerin die für den Nachprüfungsantrag entrichtete Pauschalgebühr binnen 14 Tagen zuhanden des Rechtsvertreters der Antragstellerin zu ersetzen. Darüber hinaus beantragte die Antragstellerin gemäß § 350 BVergG 2018 die Erlassung einer einstweiligen Verfügung, mit der im antragsgegenständlichen Vergabeverfahren der Auftraggeberin die beabsichtigte Zuschlagserteilung untersagt werde.
1.1. Nach Darstellung der wesentlichen Sachverhaltselemente führt die Antragstellerin begründend an, dass die Auftraggeberin ein Vergabeverfahren als offenes Verfahren im Oberschwellenbereich zur Vergabe eines Bauauftrags mit der Bezeichnung „A10 Tauernautobahn, Abschnitt Gmünd - Spittal, Neubau Tragwerke L43 Talübergang Steinbrückenbach“ (EU-Bekanntmachung vom 28.2.2022, 2022/S 041-105269) durchführe. Der gegenständliche Auftrag umfasse im Wesentlichen den Abtrag und Neubau der Brücke L43 Talübergang Steinbrückenbach.
1.2. Die Antragstellerin habe in diesem Vergabeverfahren ein Hauptangebot und ein Alternativangebot gelegt. Die ASFINAG Bau Management GmbH, Schnirchgasse 17, 1030 Wien (in der Folge vergebende Stelle) habe am 01.07.2022 eine Zuschlagsentscheidung zu Gunsten der präsumtiven Zuschlagsempfängerin übermittelt. Diese Entscheidung sei entgegen der Ansicht der Auftraggeberin jedoch rechtwidrig, da sowohl das Haupt- als auch das Abänderungs- bzw. Alternativangebot der präsumtiven Zuschlagsempfängerin auszuscheiden und deshalb die Zuschlagsentscheidung zu Gunsten der Antragstellerin zu treffen gewesen wäre. Die Bestandsfestigkeit der Ausschreibung zog die Antragstellerin nicht in Zweifel.
Das für die Zuschlagserteilung vorgesehene Hauptangebot der präsumtiven Zuschlagsempfängerin entspreche in vielfacher Hinsicht nicht der ausgeschriebenen Baubeschreibung bzw. den technischen Vertragsbestimmungen. Entgegen der von der präsumtiven Zuschlagsempfängerin gewählten Bezeichnung handle es sich inhaltlich um ein Alternativangebot. Alternativangebote seien zwar nach der Ausschreibung grundsätzlich zulässig, jedoch nur neben einem ausschreibungskonformen Hauptangebot. Da die präsumtive Zuschlagsempfängerin kein ausschreibungskonformes (insbesondere der Baubeschreibung entsprechendes) Hauptangebot gelegt habe, sei das lediglich als Hauptangebot bezeichnete Alternativangebot auszuscheiden. Gleiches gelte für das von der präsumtiven Zuschlagsempfängerin als Abänderungsangebot bezeichnete Angebot, welches ebenso mangels eines ausschreibungskonformen Hauptangebotes auszuscheiden sei.
Zudem sei die technische Leistungsfähigkeit der präsumtiven Zuschlagsempfängerin nicht gegeben, da der einzige von ihr vorgesehene Rüstträger erst nach Auftrag in China produziert, mit Containern nach Europa verschifft würde und zudem ein zeitaufwendiges Genehmigungsverfahren durchgeführt werden müsse. Die präsumtive Zuschlagsempfängerin könne daher auch nicht nachweisen, dass sie zum Ende der Angebotsfrist über diese zu diesem Zeitpunkt noch gar nicht existierende und für die Leistungserbringung wesentliche Sondermaschine verfüge bzw zum Beginn der Ausführungsleistungen verfügen werde.
2. Die Auftraggeberin übermittelte am 13.07.2022 außerhalb der Amtsstunden die allgemeinen Auskünfte. Die Auftraggeberin teilte mit, dass zum Antrag auf Erlassung einer einstweiligen Verfügung kein Vorbringen erstattet werde. Die Auftraggeberin wies auf Betriebsinteressen der einzelnen Bieter hin und beantragte, nicht offengelegte Preise nicht im Wege der Akteneinsicht offenzulegen.
3. Am 15.07.2022 übermittelte die Auftraggeberin eine schriftliche Stellungnahme. Darin bringt die Auftraggeberin im Wesentlichen vor, dass das Hauptangebot der präsumtiven Zuschlagsempfängerin entgegen der Ansicht der Antragstellerin als ausschreibungskonformes Hauptangebot und weder als Abänderungs- oder Alternativangebot anzusehen sei und der Nachprüfungsantrag der Antragstellerin als unbegründet abzuweisen sei.
Das von der Antragstellerin als verbindlich dargestellte Konzept der Auftraggeberin den Abtrag des Brückentragwerks mittels Rüstträgern vorzunehmen, stelle gemäß den bestandsfesten Ausschreibungsunterlagen lediglich einen unverbindlichen Vorschlag für den Abtrag dar. Es sei grundsätzlich möglich im Rahmen des Hauptangebots entsprechende Anpassungen und Optimierungen „nach Wahl des AN“ vorzunehmen, ohne dabei vom ausgeschriebenen Positionstext des Hauptangebots abzuweichen. Die präsumtive Zuschlagsempfängerin habe auf Basis und der auszulegenden Bandbreite der Positionen des bestandsfesten Leistungsverzeichnisses ein ausschreibungskonformes Hauptangebot für den Abtrag und Neubau des Tragwerks vorgelegt.
Insbesondere sei die Anzahl der einzusetzenden Rüstträger (siehe Baubeschreibung B.2) als ein von der Auftraggeberin zur Verfügung gestellten Vorschlag zu verstehen und sei entgegen der Ansicht der Antragstellerin in den konkreten Leistungspositionen keine Anzahl der einzusetzenden Rüstträger vorgegeben. Diesbezügliche Leistungspositionen seien allesamt als Pauschalen ausgeschrieben worden.
4. Am 18.07.2022 übermittelte die präsumtive Zuschlagsempfängerin ihre begründeten Einwendungen und wahrte damit ihre Parteistellung nach § 346 Abs. 3 BVergG. Die präsumtive Zuschlagsempfängerin beantragte in diesem Schriftsatz die Zurück-, in eventu Abweisung der Anträge der Antragstellerin, sowie sämtliche Teile des Vergabeaktes (insbesondere sämtliche Angebote und Aufklärungen der präsumtiven Zuschlagsempfängerin) sowie sämtliche Teile und Beilagen der Schriftsätze im gegenständlichen Nachprüfungsverfahren, die Betriebs- und Geschäftsgeheimnisse der präsumtiven Zuschlagsempfängerin betreffen, von der Akteneinsicht auszunehmen.
Begründend führte die präsumtive Zuschlagsempfängerin aus, dass die Antragstellerin versuche mit ihren umfangreichen Ausführungen im Nachprüfungsantrag, die Baubeschreibung (Teil B.2 – Baubeschreibung/Pläne/Gutachten) als die maßgebliche und unabänderliche Grundlage der gesamten Leistungserbringung darzustellen. Dieser Argumentation folgend konstruiere die Antragstellerin jedwede Abweichung von der Baubeschreibung als Verstoß gegen die Ausschreibungsbestimmungen bzw als Alternativangebot. Dementsprechend betone auch die Auftraggeberin selbst den Charakter der Baubeschreibung als unverbindlichen Vorschlag für die Bauausführung (nachrangig zum verbindlichen Leistungsverzeichnis) an einer Vielzahl von Stellen in der Baubeschreibung.
Bereits die Überschrift zu Punkt 5.4.3 Baubeschreibung laute "Vorgeschlagenes Abbruchkonzept zum Abtrag Bestandstragwerk". Auch im ersten Absatz dieses Punktes stelle die Auftraggeberin klar, dass (nur) "eine Abbruchmethode vorgeschlagen" werde bzw. lautet der 3. Absatz: "Folgender Arbeitsablauf für den Rückbau des Bestandstragwerkes wird vorgeschlagen". Auch Punkt 7 Baubeschreibung (Ersatzneubau Brückentragwerk Spannbetontragwerk) sei diesbezüglich eindeutig: "Für die Neuerrichtung des Brückentragwerkes L43 Steinbrückenbachbrücke werde ein parallelgurtiger Freivorbau mit einem obenliegenden Rüst- bzw. Stabilisierungsträger vorgeschlagen." Weiters würden die Überschriften von Punkt 8.3 ("Vorgeschlagener Bauablauf für die Errichtung des Verbundtragwerkes") und Punkt 9.1 ("Allgemeines – vorgeschlagenes Abtrags- und Neubaukonzept") klar den "Vorschlagscharakter" der Baubeschreibung (des Abtrags- und Neubaukonzepts) verdeutlichen. Ähnlich werde auch in Punkt 5.2 (Baustellenzufahrten) deutlich zum Ausdruck gebracht, dass es "im eigenen Ermessen des Bieters [liege] in wie weit die vorgeschlagenen Zufahrtmöglichkeiten für seine Bauumsetzung erforderlich seien oder Erleichterungen bringen und ob diesbezüglich eine Einigung mit den Grundeigentümern erzielt werden kann". Vor diesem Hintergrund könne der objektive Erklärungswert der Ausschreibungsunterlagen nur dahingehend verstanden werden, dass die Baubeschreibung ein bloßer Vorschlag und dem Leistungsverzeichnis nur nachgereiht sei (das Leistungsverzeichnis insbesondere bei Widersprüchen vorgeht).
Der objektive Erklärungswert der Ausschreibungsunterlagen sei folglich klar dahingehend zu verstehen, dass die Inanspruchnahme einer der im Leistungsverzeichnis explizit vorgesehenen Wahl- bzw Ausführungsmöglichkeiten nicht dazu führe, dass ein Alternativangebot vorliege. Das Hauptangebot der mitbeteiligten Partei sei dementsprechend auch exakt gemäß dem ausgeschriebenen Leistungsverzeichnis gelegt worden. Das Leistungsverzeichnis (Amtsentwurf) sei vollständig ausgepreist und die vorgegebenen Positionen in keiner Weise verändert worden. Es sei nicht nachvollziehbar, wie die Antragstellerin zu der Ansicht gelange, dass ein Angebot, das exakt dem Ausschreibungs-Leistungsverzeichnis entspreche, ein Alternativangebot darstelle. Ein Leistungsvorschlag, der in keiner Weise von dem Leistungsvorschlag des Auftraggebers laut Ausschreibungs-Leistungsverzeichnis (Amtsentwurf) abweiche, könne kein "alternativer Leistungsvorschlag" iSd § 2 Z 2 BVergG und damit kein Alternativangebot sein. Sofern die angebotenen Leistungen nicht von den Ausschreibungsbestimmungen abweichen, liege kein Alternativangebot vor (VwGH 22.11.2011, 2006/04/0024).
5. Replizierend auf die Schriftsätze der Auftraggeberin vom 15.7.2022 und der präsumtiven Zuschlagsempfängerin vom 18.7.2022 erstattete die Antragstellerin am 26.07. eine schriftliche Stellungnahme und bekräftigte darin, dass Abweichungen vom Konzept des Auftraggebers zwar prinzipiell angeboten hätten werden können, allerdings gerade nicht im Rahmen eines Hauptangebotes, sondern lediglich im Rahmen eines Alternativangebots. Die Antragstellerin verweist zudem auf einzelne Punkte (insb Pos 00B108A Teil B5 Seite 15) aus den Ausschreibungsunterlagen, worin Einschränkungen für Alternativangebote geregelt seien und dabei ausdrücklich Änderungen im Bauverfahren für Abtrag zugelassen seien. Würde man jedoch den von Auftraggeberin und präsumtiven Zuschlagsempfängerin ins Treffen geführten Positionstext (Positionen 310321B, 310321B1, 061040B, 061040B1 des Leistungsverzeichnisses in Teil B5) mit dem Wortlaut „oder gemäß Konzept AN“ dahingehend missverstehen, dass der Bieter selbst das Bauverfahren für den Abtrag in dessen Konzept bestimmen könne und dies ein Hauptangebot sei, sei ein Alternativangebot betreffend das Bauverfahren für den Abtrag undenkbar. Die in Pos 00B108A vorgesehene Zulassung von Alternativen betreffend den Abtrag wäre dieser Argumentation folgend sinnlos.
Der Umstand, dass Abweichungen bei der Abtragsmethode (insbesondere der fehlende Einsatz eines Rüstträgers) als Alternativangebot zu werten seien, belege auch Pos 061038 (Teil B5 Seite 248) des Leistungsverzeichnisses. Darin sei nämlich die Planung bzw. statische Berechnung des bestehenden Brückentragwerks „für die ausgeschriebene Abtragsmethode bzw. für ein allenfalls alternatives Abtragskonzept des AN“ geregelt. Die Ausschreibung differenziere also klar zwischen der „ausgeschriebene“ Abtragsmethode und einem „alternativen“ Abtragskonzept. Schon an dieser Stelle nehme das Leistungsverzeichnis also vorweg, dass anstelle der insbesondere in der Baubeschreibung ausgeschriebenen oder „vorgeschlagenen“ Abtragsmethode auch ein Abtrag nach einem „alternativen“ Abtragskonzept des Bieters möglich sei. Die hier in der Ausschreibung verwendete Wortwahl („alternatives Abtragskonzept“) mache deutlich, dass es sich bei dem unter anderem in den Positionen 310321B, 310321B1, 061040B, 061040B1 des Leistungsverzeichnisses erwähnten „Konzept AN“ um ein „alternatives“ Konzept handle und somit ein Alternativangebot erfordere. Diese Positionen würden lediglich die Möglichkeit antizipieren, dass der Auftragnehmer im Zuge eines Alternativangebotes ein „alternatives“ Konzept für den Abbruch vorsehe, welches dann – nach bestandener Gleichwertigkeitsbeurteilung und unter der Voraussetzung eines ausschreibungskonformen Hauptangebotes – auch umgesetzt werden könnte.
Würde man den Ausführungen der Auftraggeberin und der präsumtiven Zuschlagsempfängerin dahingehend folgen, dass auf Grund des Positionstextes „oder Konzept AN“ ein von Abbruchkonzept des Auftraggebers abweichendes Konzept des Bieters auch als Hauptangebot gelegt werden könnte, würde dies dazu führen, dass der Bieter eine Abbruchmethode in dessen Konzept völlig frei wählen könnte. Er könnte sogar eine solche Methode wählen, die den ausdrücklich nur für Alternativen normierten Vorgaben widersprechen und beispielsweise eine Sprengung der Brücke vorsehen; dies deshalb, weil die in Pos 00B108A lediglich für Alternativangebote vorgesehene Einschränkung mangels eines
Alternativangebotes unanwendbar wäre.
Schlussendlich würden sowohl Auftraggeber als auch präsumtive Zuschlagsempfängerin übersehen, dass ihre Interpretationen im klaren Widerspruch zu den gesetzlichen Vorgaben bzw. der gesetzlichen Terminologie stehen: Nach der gesetzlichen Legaldefinition in § 2 Z 2 BVergG sei ein „Alternativangebot … ein Angebot über einen alternativen Leistungsvorschlag des Bieters“. Das Vorliegen eines „alternativen Leistungsvorschlags“ setze denklogisch voraus, dass es einen anderen „Vorschlag“ geben müsse, gegenüber dem der Vorschlag des Bieters ein alternativer Vorschlag sei. Das könne logisch nur ein „Vorschlag“ des Auftraggebers sein. Somit setze sogar das Gesetz ausdrücklich voraus, dass es einen „Vorschlag“ des Auftraggebers gebe. Ein Alternativangebot liege dann vor, wenn dieses gegenüber dem „Vorschlag“ des Auftraggebers ein alternativer Vorschlag sei. Aus dem Umstand, dass insbesondere in der Baubeschreibung mehrfach der Begriff „Vorschlag“ oder „vorgeschlagen“ verwendet werde, sei daher für den Auftraggeber und die präsumtive Zuschlagsempfängerin nicht nur nichts zu gewinnen. Vielmehr sei genau das Gegenteil der Fall: Der Auftraggeber bediene sich in dessen Baubeschreibung sogar der gesetzlichen Terminologie „Vorschlag“. Der gegenüber diesem „Vorschlag“ des Auftraggebers offensichtliche alternative Lösungsvorschlag der präsumtiven Zuschlagsempfängerin sei somit bereits nach der gesetzlichen Legaldefinition (§ 2 Z 2 BVergG) ein Alternativangebot.
6. Mit Schriftsatz vom 09.08.2022 replizierte die präsumtive Zuschlagsempfängerin insbesondere auf den Schriftsatz der Antragstellerin vom 26.07.2022. Darin bekräftigt die präsumtive Zuschlagsempfängerin, dass es sich beim von ihr gelegten Angebot nicht um ein Alternativangebot handle, da die Errichtung exakt jener Spannbetonbrücke angeboten worden sei, die ausgeschrieben gewesen sei. Das von der präsumtiven Zuschlagsempfängerin angebotene (und im Auftragsfall geschuldete) Bauwerk sei exakt das ausgeschriebene Bauwerk. Bei dem Angebot könne es sich daher denklogisch um kein Alternativangebot handeln, da nur geringfügige Abweichungen im Bauablauf bzw. Vorgehen gegenüber der (bloß vorgeschlagenen) Baubeschreibung bestünden. Ein Alternativangebot könnte allenfalls ein anderes Baumaterial (zB Asphalt- statt Betonfahrbahn) oder eine andere Konstruktion (Stahlbrücke, Hängebrücke) sein; jedoch liege nichts davon vor.
Die in der Position 00B108A (Teil B5) angeführten Regelungen seien nur dann anwendbar, wenn tatsächlich eine alternative Leistung zur ausgeschriebenen Leistung angeboten werde (dementsprechend gelte diese Mindestanforderung gemäß Position 00B108C auch für Abänderungsangebote, obwohl Abänderungsangebote per Definition deutlich geringfügigere Abweichungen von der ausgeschriebenen Lösung aufweisen als Alternativangebote). Wenn der Abtrag aber – entsprechend dem Konzept des AN – nur zB mit anderen Zufahrten, anderen Baumaschinen usw. erfolge, dann liege in diesem Abtragsvorgehen naturgemäß noch kein Alternativangebot vor.
Die Auftraggeberin habe zudem im Leistungsverzeichnis des Hauptangebots/Amtsentwurf bestandfest festgelegt, dass Abtrag und Neubau "gemäß Konzept AN" erfolgen dürfen (sohin in Abweichung von der vorgeschlagenen Baubeschreibung). Sollte daher tatsächlich kein Anwendungsbereich für die Mindestanforderungen an Alternativangebote verbleiben (was bestritten wird), so wäre die Auftraggeberin dennoch an die bestandfesten Regelungen des Leistungsverzeichnisses bzw der spezifischen Positionen gebunden (und dürfte diese gemäß § 915 ABGB insbesondere nicht zum Nachteil der präsumtiven Zuschlagsempfängerin auslegen).
Die Antragstellerin versuche zudem in Punkt 3 und 4 ihrer Stellungnahme auf Basis des Sicherheits-und Gesundheitsschutzplanes ("SiGe-Plan") in unzutreffender Weise zu argumentieren, dass zwingend zwei Rüstträger einzusetzen seien bzw jede Abweichung vom vorgeschlagenen Vorgehen laut Baubeschreibung ein Alternativangebot darstellen würde. Zum einen komme den allgemeinen Ausführungen in Punkt 1.2 des SiGe-Plans schon deshalb keine Relevanz zu, weil diese schlicht aus der Baubeschreibung übernommen worden seien. Die Ausführungen zum Bauablauf seien im SiGe-Plan dementsprechend auch nur unter "Allgemeines" angeführt; dabei handle es sich um eine bloße Präambel zum tatsächlichen SiGe-Plan, also den tatsächlichen Maßnahmen für Sicherheit und Gesundheitsschutz. Generell finde sich im SiGe-Plan keine einzige sicherheits- oder gesundheitsbezogene Maßnahme, die speziell in Hinblick auf die Ausführung mit einem oder mehreren Rüstträgern vorgeschrieben werde. Sämtliche Leistungen laut SiGe-Plan seien unabhängig von der konkreten Abtrags- oder Errichtungs- Methode: So sei die Vorgabe, dass zB ein Zutritt nur durch befugte Personen erfolgen dürfe (vgl Punkt 3.1 Z 1 SiGe-Plan) völlig unabhängig davon, ob man mit Rüstträger, Gerüst oder Sprengung arbeite. Selbiges gilt für Regelungen zur Schaffung von Gefahrenquellen usw. Vor diesem Hintergrund sei klar, dass die Auftraggeberin in Position 020733 des Leistungsverzeichnisses keinen Bezug auf das Konzept des Auftragnehmers genommen habe. Die SiGe-Maßnahmen seien schließlich allesamt konzeptunabhängig beschrieben.
7. Mit Schriftsatz vom 23.08.2022 erstattete die Antragstellerin eine Replik auf die Stellungnahme der präsumtiven Zuschlagsempfängerin vom 09.08.2022. Die präsumtive Zuschlagsempfängerin argumentiere dahingehend, dass Abweichungen im Bauablauf bzw Bauverfahren kein Alternativangebot begründen würden, sondern nur Abweichungen bei Material oder Konstruktion. Diese Behauptung sei insbesondere aus folgenden Gründen falsch: Alternativangebote lägen dann vor, wenn diese vom Leistungsvorschlag des Auftrag-gebers abweichen. Dass dieser „Leistungsvorschlag“ lediglich Baumaterial und Konstruktion betreffe, sei dem Gesetz nicht zu entnehmen. Vielmehr treffe genau das Gegenteil zu: Gemäß § 125 Abs 4 BVergG könnten sich Alternativangebote unter anderem „auf die wirtschaftlichen oder rechtlichen Bedingungen der Leistungserbringung“ beziehen. Nach der Konzeption des Gesetzes gehe es bei Alternativangeboten also keineswegs nur um Material und Konstruktion eines Bauwerks. Außerdem sei Inhalt der Leistung im vorliegenden Fall nicht nur die Errichtung eines Brückentragwerks, sondern auch dessen Abbruch. Da bei einem Abbruch das Ergebnis der Leistung nicht eine bestimmte Konstruktion aus einem bestimmten Material sei (sondern „nichts“), könnte es nach der Denklogik der präsumtiven Zuschlagsempfängerin bei Abbruchleistungen niemals ein Alternativangebot geben. Die präsumtive Zuschlagsempfängerin versuche den in der Ausschreibung verwendeten Begriff („alternativ“) zu relativieren, weil die Ausschreibung auch an anderer Stelle „Alternativen“ betreffend die Signatur des Angebotes vorsehe. Dabei übersehe sie, dass die Bestimmungen betreffend die Signatur des Angebotes nichts mit den Leistungen zu tun hätten, sondern es sich dabei lediglich eine Formvorgabe betreffend das Angebot handle. Diese Formvorgabe betreffe in keiner Weise die Leistung.
8. Die Auftraggeberin erstattete mit Schriftsatz vom 05.09.2022 eine schriftliche Stellungnahme und brachte darin bezugnehmend auf die bisherigen Stellungnahmen der Auftraggeberin und der präsumtiven Zuschlagsempfängerin und sich in den wesentlichen Argumentationslinien nunmehr häufig wiederholend begründend im Wesentlichen vor, dass hinsichtlich des Abtrags des Bestandwerks die Ausschreibung lediglich funktional sei, diese zwar das Ziel der Entfernung der Fahrbahnplatte und des Brückentragwerks definiere, jedoch die konkrete Methode zur Erreichung dieses Ziels völlig offen lasse. Jedes Angebot eines Bieters sei hinsichtlich des Abtrags denkmöglich nur als Hauptangebot und nicht als Alternativangebot zu qualifizieren. Die bemühten Auslegungsergebnisse der Antragstellerin entsprächen nicht im Ansatz dem objektiven Erklärungswert der Ausschreibungsunterlagen.
So stelle etwa der Abtrag eines Bauwerks keine „Ausführung eines Bauwerks“ dar und wäre sohin eine Einschränkung für Änderungen im Bauverfahren für den Abtrag per se sinnlos. Die Formulierung „Alternatives Abtragskonzept des AN“ die ein zum unverbindlichen Lösungsvorschlag des Auftraggebers alternatives Konzept beschreibe unterstreiche die Funktionalität hinsichtlich des Abtrags.
9. Zudem erstattete die präsumtive Zuschlagsempfängerin mit Schriftsatz vom 06.09.2022 eine Replik. Darin bringt die präsumtive Zuschlagsempfängerin unter häufigen Wiederholungen ihres bisherigen Vorbringens vor, dass sie weder ein rechtliches Alternativangebot (zB abweichende Vertragsbestimmungen) noch ein wirtschaftliches Alternativangebot (zB andere Vergütung) gelegt habe. Das diesbezügliche Vorbringen der Antragstellerin sei daher rein theoretisch und nicht verfahrensrelevant.
Hinsichtlich Abweichungen im Bauverfahren könne konkret dahingestellt bleiben, ob diese im Generellen zu einem Alternativangebot führen würden. Im gegenständlichen Fall habe die Auftraggeberin jedenfalls bestandfest im Hauptangebots-Leistungsverzeichnis Abweichungen vom vorgeschlagenen Vorgehen in der Baubeschreibung im Rahmen eines Hauptangebots ("gemäß Konzept AN") zugelassen. Da die präsumtive Zuschlagsempfängerin lediglich in dem von der Auftraggeberin ausdrücklich im Hauptangebots-Leistungsverzeichnis zugelassenen Umfang ein eigenes Konzept vorgesehen habe, sei dieses (Haupt-)Angebot jedenfalls ausschreibungskonform.
Auch das Vorbringen der Antragstellerin, dass es nach der Logik der Antragstellerin hinsichtlich der Abbruchleistungen kein Alternativangebot geben könnte, sei unrichtig. Grundsätzlich könne es natürlich Alternativangebote zum Abbruch geben; nur hat die Auftraggeberin im gegenständlichen Fall das konkrete Abbruch-Vorgehen im Hauptangebots- Leistungsverzeichnis den Bietern eben – entsprechend dem Konzept des AN – freigestellt. Entgegen dem Vorbringen der Antragstellerin "relativiere" die präsumtive Zuschlagsempfängerin den Begriff "alternativ" nicht. Vielmehr könne ein redlicher, verständiger Erklärungsempfänger aus dem Begriff "alternativ" bzw "alternatives Abbruchkonzept" im frei formulierten Text einer Z-Position (Pos 061038) nicht schließen, dass der Auftraggeber damit meine: "bei Wahl eines alternativen Abbruchkonzepts hat der Bieter dies zwingend in Form eines Alternativangebots einzureichen". Diese Auslegung der Antragstellerin sei jedenfalls mit den Interpretationsregeln und dem objektiven Erklärungswert der Bestimmung (bzw der gesamten Ausschreibungsunterlagen) nicht in Einklang zu bringen.
Zusätzlich zu ihren bisherigen Ausführungen habe die präsumtive Zuschlagsempfängerin ein Gutachten des allgemein beeideten und gerichtlich zertifizierten Sachverständigen Herrn DI Dr. Walter Reckerzügl (Fachgebiet: 72.03 Kalkulation, Vergabewesen, Verdingungswesen, Bauabwicklung, Bauabrechnung) zum Beweis dafür eingeholt, dass es zulässig sei, im Rahmen eines Hauptangebots auf Basis eines "Konzepts AN" (in Abweichung von der Baubeschreibung) ein (Haupt-)Angebot zu legen; das (Haupt-)Angebot der mitbeteiligten Partei ein ausschreibungskonformes Hauptangebot darstelle (und kein Alternativangebot).
Auch dieser Sachverständige komme zu dem Ergebnis, dass "die Interpretation der Antragstellerin, dass damit [Anmerkung: gemeint Legung eines Angebots unter Zugrundelegung von "Konzepten des AN"] schon das Anbieten einer solchen geänderten Baumethode dazu führt, dass ein Alternativangebot vorliegt, weder in den Ausschreibungsunterlagen explizit so festgehalten, noch aus irgendwelchen anderen Quellen ableitbar [ist]. Für einen Bieter, der sich im Wettbewerb mit seinen Mitkonkurrenten bewegt, musste – vor allem wegen der Aussagen im Teil B.5 Leistungsverzeichnis – im Zuge seiner Kalkulation völlig klar sein, dass hier die wesentlichen Vertragsleistungen funktional beschrieben wurden und auch "Konzepte des AN" zur Ausführung möglich sind"
10. Mit Stellungnahme vom 06.09.2022 replizierte die Auftragnehmerin neuerlich auf das bisherige Vorbringen der Auftraggeberin und der präsumtiven Zuschlagsempfängerin und brachte darin im Wesentlichen vor, dass sich die in Punkt 5.1.3 des Teils B.7 angeführte Reihenfolge der Vertragsbestandteile sich auf Widersprüche beziehe, ein solcher Widerspruch zwischen Leistungsverzeichnis und Baubeschreibung bzw SiGe-Plan aber gar nicht vorliege. Vielmehr sei zwar ein von der Baubeschreibung abweichendes Bauverfahren grundsätzlich zulässig; dies aber eben nicht in einem Haupt- sondern Alternativangebot. Im Leistungsverzeichnis werde lediglich ein mögliches Alternativangebot des Bieters bereits berücksichtigt, was unter anderem die Wortwahl im Leistungsverzeichnis („alternatives Abtragskonzept“) unterstreiche.
Das vermeintliche „Hauptangebot“ der präsumtiven Zuschlagsempfängerin widerspriche auch dem unmittelbar im Leistungsverzeichnis festgelegten Umstand der Leistungserbringung („unzugängliches Gelände“) und wäre sogar dann als Alternativangebot zu qualifizieren, wenn man alle übrigen Inhalte der Ausschreibungsunterlagen (insbesondere Baubeschreibung und SiGe-Plan) ignoriere. Dazu komme, dass die Umstände der Leistungserbringung ein gesetzlich geforderter Inhalt der Leistungsbeschreibung seien (§ 104 Abs 3 BVergG). Die präsumtive Zuschlagsempfängerin könne aber den gegenständlich in den beiden Positionen festgelegten besonderen Umstand der Leistungserbringung (unzugängliches Gelände) auch bei der Kalkulation der Preise nicht berücksichtigt haben. Im Zuge einer vom Auftraggeber allenfalls vorzunehmenden vertieften Angebotsprüfung wäre deshalb festzustellen gewesen, dass der Gesamtpreis nicht plausibel zusammengesetzt sei. Das Angebot der präsumtiven Zuschlagsempfängerin sei daher auch nach § 141 Abs 1 Z 3 BVergG auszuscheiden gewesen.
11. Am 08.09.2022 fand die mündliche Verhandlung vor dem BVwG statt. Aus dem Verhandlungsprotokoll:
„VR: Sind aus der Sicht der ASt noch Anträge auf Akteneinsicht offen?
ASt: Es sind keine weiteren Anträge auf Akteneinsicht offen. Der gestellte Antrag bleibt offen. Ich bin nicht zuversichtlich, dass diesem entsprochen werden wird.
VR: Welche Gebührenhöhe ist aus der Sicht der Auftraggeberin angefallen?
ASFINAG: Wir gehen von einem Auftragswert von 50 Mio. Euro aus. Wir haben keine Überschreitung des 10fachen Schwellenwerts und gehen daher von einer Gebühr in Höhe von 6.482,-EUR aus. Dazu kommt die Hälfte für die einstweilige Verfügung, also 9.723,-EUR.
VR: Wird die Bestandsfestigkeit der Ausschreibung von einer Partei in Frage gestellt?
Alle Parteien verneinen dies.
VR: Wird während der Bauarbeiten der Verkehr der A10 jeweils mit Gegenverkehr zunächst auf der Richtungsfahrbahn (RFB) Salzburg und später auf der RFB Villach geführt?
ASFINAG: Es ist mehrgestaffelt. In der Einrichtungsphase haben wir Gegenverkehr, das heißt eine Spur je Richtung. Während der Bauphase sind zwei Spuren pro Richtung offen.
VR: Welche Umfahrungsrouten stehen -im Falle einer Totalsperre der Tauernautobahn in diesem Abschnitt –PKWs und LKWs zur Verfügung?
ASFINAG: Eine Totalsperre ist von uns nicht geplant. Sollte dies der Fall sein, gibt es am Talboden die parallel laufende B99. Der LKW-Verkehr wird großräumig über Pyhrn oder den Brenner umgeleitet.
VR: Wann ist der Baubeginn geplant?
ASFINAG: Gemäß Ausschreibungskonzept im Oktober 2022.
VR: Welche Bauzeit ist veranschlagt? Wo ist die Bauzeit in der Ausschreibung normiert?
ASFINAG: In den allgemeinen Vertragsbestimmungen. Bauende ist der 25.09.2026, 00B406A Leistung-Beginn und Beendigung der Leistung, Seite 27 von 405 bzw. 746 von 1.000.
VR: Werden gegenständlich zwei Brücken (eine je Richtungsfahrbahn) oder lediglich eine Brücke saniert?
ASFINAG: Es wird erst die eine, dann die andere Brücke saniert.
Baubeschreibung
VR: Zu Punkt 2.1. der Baubeschreibung Bestandsertüchtigung: Was bedeutet „Verkehrsführung 4+0“?
ASFINAG: Dass auf einer Brücke vier Spuren offen sind und die zweite Brücke vollkommen gesperrt ist.
VR: Zu Punkt 2.1. der Baubeschreibung Bestandsertüchtigung: Was ist ein „Deckenbuch“?
ASFINAG: Die Höhen der einzelnen Schichten ist darin vom Fahrbahnbelag bis zum Rohtragwerk festgeschrieben. Das Deckenbuch definiert die oberste Schicht.
VR: Zu Punkt 6.11.2. Baubeschreibung Bauleistungen: ist unter der Variante Verbundtragwerk eine Konstruktion bestehend aus Stahlbeton und Stahl (Stahlverbundbau) zu verstehen?
ASFINAG: Die Ausschreibung ist auch als Variante (Stahlverbund Brücke) ausgeschrieben worden. Zu dieser Variante sind keine Angebote eingelangt. Alle Bieter haben die Variante Spannbeton gewählt.
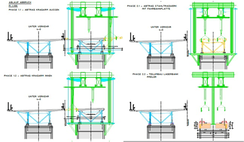
VR: Was ist ein Rüstträger?
ASFINAG HEIß: Der Rüstträger ist ein Bauhilfsmittel zur Herstellung der Brücke.
HEIß legt ein Beispielbild vor. Dieses wird als Beilage ./1 zur Verhandlungsschrift genommen und an alle Parteien ausgehändigt.
ASFINAG NILSSON: Die Brückenpfeiler bleiben bestehen. Es betrifft nur die Fahrbahnkonstruktion, die abgetragen und neu gebaut wird. Das grüne ist der Rüstträger.
ASt LAMMERHUBER: Im konkreten Fall ist der Rüstträger ca. 1.000 Tonnen schwer und 140 m lang.
ASFINAG NILSSON: Die Länge des Rüstträgers ist je nach Baustelle unterschiedlich.
ASFINAG HEIß: Der Rüstträger liegt nur auf den Pfeilern auf. Im ggst. Fall wird er im Regelfall auf drei Pfeilern liegen und ist um einen Pfeiler vor-und zurückverschiebbar.
LR2: Wie wird der vor-oder zurückgeschoben?
ASt LAMMERHUBER: Er bewegt sich automatisch mit hydraulischen Pressen und elektrischem Antrieb.
VR: Was unterscheidet einen Rüst-von einem Stabilisierungsträger?
ASFINAG HEIß: In dem Fall ist es gleich verwendet. Der Rüstträger stützt bei der Neuherstellung des Tragwerkes. In diesem Fall wird Pfeiler für Pfeiler die Brücke hergestellt.
VR: Wird für jede Brückensanierung eigens ein neuer Rüstträger angefertigt?
ASFINAG HEIß: Das ist baustellenabhängig und wird angepasst.
VR: Die Rüstträger werden also nicht neu gefertigt, sondern angepasst?
ASt LAMMERHUBER: Stark angepasst.
ASFINAG ALBRECHT: Projektspezifisch angepasst.
ASFINAG HEIß: Nach Beendigung der Baustelle wird der Träger in transportfähigen Stücken auseinandergebaut. Je nach Baustelle wird der Rüstträger neu zusammengesetzt, sodass er für die jeweilige Baustelle passend ist. Es ist vergleichbar mit einem Gerüst, nur komplexer.
ASt ESTERMANN: Zudem wird ein Rüstträger von oben aufgebaut –ein Lehrgerüst wird von unten aufgebaut.
VR: Ist ein Rüstträger für jede Brücke neu zu zertifizieren?
ASFINAG HEIß: Ja.
VR: In welcher Größenordnung bewegen sich die Kosten für einen Rüst-oder Stabilisierungsträger?
ASFINAG NILSSON: Das kann man so nicht sagen, weil es vom Subunternehmerangebot abhängig ist. Jeder bietet das anders an.
ASt ESTERMANN: Der reine Stahlpreis ist bei 5.000 Euro/Tonne. Das ist der reine Materialwert.
VR: Wie schwer müsste ein Stahlträger sein?
ASFINAG ALBRECHT: Aus meiner Sicht kann man diesen Vergleich nicht heranziehen, weil ein Stahlträger einer Abschreibung (AfA) unterliegt. Die Schwere des Stahlträgers ist projektspezifisch und unterschiedlich.
ASt LAMMERHUBER: Es gibt zwei Angebote von zwei verschiedenen Firmen. Beide sind ca. 1.000 Tonnen schwer.
LR2: Wenn Sie diesen Rüstträger abbauen und neu zertifizieren müssen. Die Zertifizierung erfolgt durch den In-Verkehr-bringer?
ASFINAG HEIß: Ja.
ASFINAG FEUCHTMÜLLER: Wir als AG können nicht beziffern, wie viel für die Zurverfügungstellung für einen Rüstträger zu veranschlagen wäre.
VR: Welche Möglichkeiten zur Abtragung und Abtransport der alten Brückenteile ist technisch denkbar und mit der Ausschreibung vereinbar?
ASFINAG HEIß: Der Abtrag muss mit einem Hebegerät erfolgen aufgrund der örtlichen Gegebenheiten. Sprengen und runterfallen lassen fällt weg, weil ja daneben und darunter in der Nähe der Verkehr fährt –das muss sicher sein.
VR: Was ist ein Hebegerät?
ASFINAG HEIß: Im Konzept des AG war es ein Rüstträger. Es kann auch ein Schwerlastkran sein. Der Schwerlastkran ist das gleiche wie ein normaler Kran nur größer und stärker. Es wäre auch der Einsatz normaler Kräne denkbar. In diesem Fall müssten die Teile dementsprechend kleiner sein.
VR: Ist eine Unterstützung durch Helikopter, Drohnen oder Seilbahnen möglich?
ASFINAG HEIß: Unter der gegebenen Situation ist die Seilbahn auch nicht möglich, weil die Brücke längs zum Tal ist. Deshalb ist es schwer, eine Seilbahn aufzubauen. Drohnen und Helikopter haben noch geringere Möglichkeiten bezüglich Gewicht und wären unpraktikabel. Daher scheiden Helikopter und Drohne aus.
VR an AG: Ist er Einsatz von Kränen im ggst. Fall technisch möglich und mit der Ausschreibung vereinbar?
ASFINAG HEIß: Beides ja.
VR: Können die Brücken jeweils über eine Seite der noch stehenden Brücke abgetragen, also nach hinten geschoben, werden?
ASFINAG FEUCHTMÜLLER: Theoretisch ist so etwas möglich und auch nicht aus Sicht der Ausschreibung ausgeschlossen, das heißt, mit der Ausschreibung vereinbar. Ob das technisch geht, ist aber von der ASFINAG nicht geprüft worden.
VR: Sehen Sie einen Grund, warum das stückweise Abtragen nicht möglich sein sollte?
ASt ESTERMANN: Der Einsatz von Kränen, die am Boden aufgestellt werden, wäre im Rahmen der Ausschreibung durch ein Alterativangebot denkbar. Hierbei ist eine Gleichwertigkeitsprüfung vorzunehmen. Das heißt, man müsste bei dem jeweiligen Alternativangebot prüfen, ob die in der Ausschreibung angegeben Mindestanforderungen gegeben sind. Beim Einsatz von Kränen vom Boden ist der Einsatz von vielen Kränen erforderlich. Die Kräne von oben heißen Portalkräne und sind Teil des Rüstträgers.
präsZE LAUCHNER: Bei dem Vorbringen der ASt, jedes andere Vorgehen als mit einem Rüstträger sei ein Alternativangebot, ist bloß deren Rechtsmeinung und aus unserer Sicht unrichtig. Tatsächlich stellt das Leistungsverzeichnis den Abtrag gemäß Konzept AN (= Auftragnehmer bzw. Bieter) frei.
ASFINAG ALBRECHT: Die AG schließt sich der präsZE an. Dass hinsichtlich des Abtragskonzeptes keine verbindlichen Vorgaben in der Ausschreibung bestehen, ergibt sich vor allem auch aus den von der ASt in ihrem letzten Schriftsatz vom 06.09.2022 zitierten Positionen des Leistungsverzeichnisses.
ASt ESTERMANN: Wenn lt. AG es keinerlei verbindlichen Vorgaben bezüglich des Abtragskonzeptes gibt möge der AG beantworten, ob es auch zulässig wäre, einen Abtrag mittels Sprengung vorzunehmen.
ASFINAG FEUCHTMÜLLER: Eine unkontrollierte Sprengung würde nicht nur die abzutragenden Teile der Brücke betreffen (Stahlträger, Fahrbahn), sondern auch die Brückenpfeiler beschädigen. Ein solcher Vorgang betrifft daher neben dem Abtrag auch die Neuerrichtung und wäre als Gesamtalternativangebot zu betrachten. Für Alternativangebote hat die AG allerdings unkontrollierte Abbrüche explizit ausgeschlossen.
Die Verhandlung wird um 11:50 Uhr unterbrochen und um 12:33 Uhr fortgesetzt.
ASt ESTERMANN: Wir weisen darauf hin, dass eine Sprengung auch ohne Beschädigung der Pfeiler möglich ist und darauf, dass an keiner Stelle des Leistungsverzeichnisses verboten wäre, Beschädigungen der Pfeiler vorzunehmen bzw. diese wieder zu sanieren. Abweichungen von der Leistungsbeschreibung sind unserer Ansicht nach Alternativangebote. Wenn man der AG folgen wollte, dass es sich trotz Abweichung von der Leistungsbeschreibung um ein Hauptangebot handelt, würde dies dazu führen, dass die ausschließlich für Alternativangebote vorgegebenen Einschränkungen insbesondere das Verbot der Sprengung niemals anwendbar wäre und diese Einschränkung sohin sinnlos wäre.
ASFINAG FEUCHTMÜLLER: Wir sind auf das Thema im Schriftsatz schon eingegangen. Es hat niemand eine Sprengung angeboten. Entgegen dem Vorbringen der ASt würde eine unkontrollierte Sprengung sehr wohl auch die Errichtung betreffen. Nach der Auslegung der AG wäre dies sehr wohl als Alternativangebot zu qualifizieren. Wir haben auch in unserem Schriftsatz ausgeführt, dass unabhängig davon aufgrund eines Größenschlusses das Sprengungsverbot bereits für Hauptangebote gilt. Selbst wenn man dem nicht folgen würde und tatsächlich annehmen würde, dass eine Sprengung im Rahmen eines Hauptangebotes technisch denkbar ist, hätte dies möglicherweise zur Folge, dass die AG eine solche, offensichtlich sehr geringfügige Sprengung, zulassen hätte müssen. Dies hätte keinerlei Auswirkungen auf die in diesem Verfahren zu behandelnden Rechtsfragen.
präsZE LAUCHNER: Dem Vorbringen kommt keine Verfahrensrelevanz zu, weil ggst. kein Angebot gelegt wurde, das eine Sprengung beinhaltet. Zum anderen würde eine Sprengung dem eigenen Vorbringen der ASt wiedersprechen, weil diese ja mit Unzugänglichkeit des Geländes unter der Brücke argumentiert. Für eine Sprengung müsste aber das Gelände unter der Brücke begangen werden.
VR: Ist es technisch möglich, unterhalb der Brücke ein Auffangnetz für gesprengte Teile zu spannen?
ASFINAG HEIß: Nein, weil die herunterfallenden abgesprengten Teile zu schwer für jedes Netz wären.
VR: Anders formuliert gehen Sie davon aus, dass eine Abtragung mittels Sprengung oder Kränen oder Helikoptern jeweils als Alternativangebot zu sehen sind und dafür das Hauptangebot kein explizites Verbot der Sprengung vorgesehen wurde? Dieser Wiederspruch bedeutet im Ergebnis, dass dem Sprengungsverbot niemals Bedeutung zukäme?
ASt ESTERMANN: Ja.
VR: Können Kräne errichtet werden? Wo ist das Fundament für die Kräne vorgesehen? Ist für ein Kranfundament die Zustimmung der Grundstückseigentümer zwingend notwendig, oder verfügt die ASFINAG selbst über Grundstücke oder Servitutsrechte über dahingehende Fundamente?
ASFINAG FEUCHTMÜLLER: Die Ausschreibung enthält, wie bereits aufgeführt, keine Vorgaben hinsichtlich der Abtragsmethode. Sie erlaubt damit auch Bietern, den Einsatz von Kränen für die Durchführung des Abtragens. Wo ein Bieter, der von dieser Möglichkeit Gebrauch macht die Kräne konkret aufstellt und Fundamente errichtet, würde in diesem Fall von seinem Konzept abhängen. Alle Grundstücke unterhalb der Brücke gehören der ASFINAG.
VR: Wie breit ist die Fahrbahn oben und wie breit sind die Grundstücke darunter?
ASFINAG FEUCHTMÜLLER legt vor: Plan, welcher Aufschluss über die Brücke und das Grundstück der ASFINAG gibt. Dieser wird als Beilage ./2 zum Akt genommen.
ASFINAG FEUCHTMÜLLER: Rot ist die Brücke und Grün das Grundstück der ASFINAG.
ASt ESTERMANN: Sobald man den Kran schwenkt, ist man über dem Fremdgrundstück.
VR: Wäre für das Fundament der ASFINAG in dem Grünen Bereich (Grundstück der ASFINAG) Platz?
ASFINAG HEIß: Ja.
präsZE LAUCHNER: Es gibt z.B. Schwenkbegrenzungen für Kräne. Das Vorbringen ist inhaltlich einfach nicht richtig. Das, was hier diskutiert wird, ist rein hypothetisch.
VR: Würden Sie sagen, dass der Kran über das Grundstück des Bauern schwenken darf, oder nicht?
ASFINAG FEUCHTMÜLLER: Wir stimmen dem zu, dass der Kran ohne entsprechende Vereinbarungen nicht über Fremdgrundstücke schwenken dürfte.
präsZE LAUCHNER: Dafür gibt es eben die Schwenkbegrenzungen.
VR: Worin unterscheiden sich Hauptangebote von Alternativangeboten in der gegenständlichen Ausschreibung?
ASFINAG FEUCHTMÜLLER: Hauptangebote sind in der ggst. Ausschreibung immer als solche zu qualifizieren, wenn innerhalb der Ausschreibungsvorgaben angeboten wird. Alternativangebote betreffen gelichwertige Vorschläge des Bieters zu den Ausschreibungsvorgaben. Sie sind zulässig, sofern sie mit den Vorgaben für Alternativangebote im Einklang stehen. Die vorliegende Ausschreibung enthält zahlreiche, sehr funktional gestaltete ausschreibungsvorgaben, in denen der AG das Leistungsziel vorgibt und teilweise Vorschläge zur Erreichung dieses Leistungsziels in die Ausschreibung aufgenommen hat. Konzepte von Bietern innerhalb dieser funktionalen Ausschreibungsvorgaben sind begrifflich stets als Hauptangebote zu qualifizieren.
VR: Können Sie Beispiele für fiktive Alternativangebote nennen?
ASFINAG FEUCHTMÜLLER: Ein Beispiel für eine Alternative bei der Errichtungsleistung: Bei der Errichtung enthält die Ausschreibung die Vorgabe des Sonderbauverfahrens „Freivorbau“. In Teilbereichen der Brücke wäre eine Errichtung mittels Lehrgerüsts technisch denkbar. Ein solches Errichtungskonzept wäre als Alternativangebot zu qualifizieren. Denkbar sind außerdem hinsichtlich sämtlicher Leistungsteile wirtschaftliche Alternativangebote.
VR: Was heißt das z.B.?
präsZE LAUCHNER: Public Private Partnership Finanzierungen, Haftungsregelungen. Aber das ist sehr hypothetisch. Alternativ könnte es auch eine Fertigteil-oder Stahlbrücke sein.
LR1: Wo ist die Regelung des Freivorbaus geregelt?
ASFINAG FEUCHTMÜLLER: Position 310321B.
LR1: Ist das auch in der Baubeschreibung drinnen?
ASFINAG FEUCHTMÜLLER: Punkt 7.1.1, erster Satz.
LR1: Ist das das gleiche wie Punkt 9.3?
ASFINAG FEUCHTMÜLLER: Ja, das ist auch unter 9.3 beschrieben.
LR1: Warum ist die Regelung des 9.3 (Freivorbau) verbindlich, aber hinsichtlich des Rests nur ein Vorschlag?
ASFINAG FEUCHTMÜLLER: Der Freivorbau ist vorgeschrieben, außer ich biete eine Alternative an.
LR1: Unter 9.3 steht der Freivorbau –ist das ein Vorschlag oder verbindlich?
ASFINAG NILSSON: Der Freivorbau ist generell verbindlich –die Art des Freivorbaus ist frei wählbar. Dahinter liegen die ÖNORMEN. Es ist zwingend ein Freivorbau vorzunehmen. Im Rahmen des Freivorbaus ist der Bieter flexibel.
VR: Welche Möglichkeiten des Freivorbaus bestehen?
ASFINAG HEIß: Es gibt einen klassischen Freivorbau ohne Hilfsrüstung. Da setzt man die Brücke auf den Pfeiler drauf und setzt sie immer mehr auseinander. Dann gibt es den gestützten Freivorbau, so wie jetzt im Vorschlag des AG, wo aus statischen Gründen das „T“ links und rechts gestützt und abgehängt wird.
VR: Wann liegt aus der Sicht der ASFINAG ein Alternativangebot vor?
ASFINAG ALBRECHT: Änderung der Materialwahl. Eine Brücke vollkommen aus Stahl.
VR: Das Angebot eines Verbundtragwerks wäre ein Alternativangebot?
ASFINAG HEIß: In ggst. Ausschreibung haben wir das Verbundtragwerk als Variante ermöglicht. Hätten wir das nicht gemacht, wäre ein angebotenes Verbundtragwerk als Alternativangebot zu sehen.
präsZE LAUCHNER: Verbindlich ist das, was im Leistungsverzeichnis als verbindlich vorgegeben wurde. Die Baubeschreibung ist ein rein nachrangiges Dokument und ein Vorschlag des AG. Das heißt nur, wo im Leistungsverzeichnis Abweichungen von der Baubeschreibung ausgeschlossen sind, sind Abweichungen unzulässig. Das Leistungsverzeichnis stellt das konkrete Vorgehen dem AN nach dem Konzept der AN frei. Das Leistungsverzeichnis ist das höherrangige Dokument, das ist ganz klar so festgelegt.
ASt ESTERMANN: Der AG hat gesagt, dass ein Verbundstragwerk ein Alternativangebot wäre. Wo ist im Leistungsverzeichnis geregelt oder festgelegt, dass hier eine Spannbetonbrücke ausgeschrieben ist?
präsZE LAUCHNER: Unter Position 310130ff zum Beispiel.
ASFINAG ALBRECHT: Das ergibt sich aus dem Leistungsverzeichnis automatisch.
ASFINAG NILSSON: Das steht über Punkt in der Überschrift.
VR: Wo steht, dass es eine Spannbetonbrücke sein muss?
ASFINAG FEUCHTMÜLLER: Im Leistungsverzeichnis gibt es 1.093 Ergebnisse für „Spannbeton“. Was im Leistungsverzeichnis steht gilt, das bestreiten wir nicht.
ASt ESTERMANN: Beim Abbruch steht drinnen, dass ein Abbruch für unzulängliches Gelände gegeben ist.
ASFINAG FEUCHTMÜLLER: Das ist einzupreisen.
ASt ESTERMANN: Der ASt weist darauf hin, dass ein Bieter, der an Stelle eines Alternativangebotes ein Hauptangebot legt insofern einen Vorteil hat, weil er dann grundsätzliche Risiken, die sich hieraus ergeben, zu tragen hat und nicht der AG. Bei einem Alternativangebot ist unter anderem in Punkt 1.1.32.4 der allgemeinen Ausschreibungsunterlagen festgelegt, dass Kosten und Mehraufwände, die sich infolge der Ausführung des Alternativangebots ergeben, sich aber bei der Ausführung des Hauptangebots nicht verwirklicht hätten, vom Auftragnehmer zu übernehmen sind.
ASFINAG FEUCHTMÜLLER: Was leiten Sie daraus ab?
ASt ESTERMANN: Als Bieter hat man einen Anreiz, ein Alternativangebot als Hauptangebot zu bezeichnen, weil man das Risiko auf den Auftraggeber überwälzen kann. Beispielhaft ist festzuhalten, dass beim Alternativangebot der Bieter grundsätzlich eine Massengarantie übernimmt, sodass er, wenn die Massen bei der tatsächlichen Ausführung überschritten werden, trotzdem nur die im Angebot ursprünglich angegebenen Massen verrechnen darf, während er bei einem Hauptangebot eine solche Mengen/Massengarantie grundsätzlich nicht übernimmt und der AG bei solchen Massenüberschreitungen diese zu bezahlen hat. Beispielsweise wären die Mehrkosten für zu wenig kalkulierten Beton jeweils durch eine der zwei Seiten zu tragen.
LR2: Kalkuliert man dann, wenn es nach dieser Logik geht, das Hauptangebot so gering wie möglich, weil die Mehrkosten zur Last des Gegners gehen?
ASt ESTERMANN: Es gibt immer eine gewisse Unsicherheit, ob die kalkulierten Mengen dann die gebrauchen Mengen sind. Das kann man im Vorhinein nicht wissen. Man kann nicht genau kalkulieren, wie viel Beton man braucht, weil man z.B. nicht weiß, wie der Untergrund vor Ort ist. Wenn die Menge nicht stimmt, haben Sie Pech. Wenn beim Hauptangebot über die Menge hinausgegangen werden muss, weil man sich verkalkuliert hat, muss der AG die zusätzlichen Kosten übernehmen. Dies gilt nur beim Hauptangebot.
präsZE LAUCHNER: Das Argument der Risikoüberwälzung stimmt einfach nicht. Gemäß Leistungsverzeichnis trägt der AN auch beim Hauptangebot die volle Verantwortung für die Ausführungs-und Detailplanung und die gesamte Ausführung. Das heißt, plakativ gesprochen, wenn sich der AN verrechnet in seiner Planung, dann ist es wieder sein Problem, weil er sich verrechnet hat. Im ggst. Fall besteht keine Risikoüberwälzung auf den AG und auch kein Mengenrisiko für den AG, weil es sich um eine Pauschalposition handelt.
ASFINAG FEUCHTMÜLLER: Wir schließen uns dem an. Vor allem in Hinblick auf das von der ASt gestellten Beispiels. Im Übrigen zum angeblichen Anreiz eines Bieters, ein Alternativangebot als Hauptangebot zu bezeichnen und zu legen: Selbst, wenn so ein Anreiz bestünde, bestünde gleichermaßen der Anreiz des AG, ein solches Hauptangebot, das eigentlich ein Alternativangebot ist, nicht zuzulassen und die AG hätte nach dieser Logik ein solches Alternativangebot auch nicht für den Zuschlag vorgesehen.
VR: Hat die AG für die Variante „Verbundbauweise“ eine eigene Kostenschätzung gemacht?
ASFINAG FEUCHTMÜLLER: Ja. Es sind aber keine Verbundbauweise-Angebote eingegangen.
VR: Hat die ASFINAG für Alternativangebote eine Kostenschätzung gemacht?
ASFINAG FEUCHTMÜLLER: Nein, das ist nicht möglich.
ASt ESTERMANN: Ich weise auf B4, allgemeine rechtliche Vertragsbestimmungen hin. Dort ist auf S. 92 von 51 unter Punkt 12.7 die Haftung und Risikotragung bei Alternativangeboten und Abänderungsangeboten normiert.
VR an AG: Übernimmt der Bieter bei einem Hauptangebot ebenfalls eine Mengengarantie im Sinne der ÖNORM B2118 PKT.6.3.3?
ASFINAG FEUCHTMÜLLER: Ja. In den diskutierten Positionen übernimmt der Bieter auch bei einem Hauptangebot das Mengenrisiko. Er ist nämlich auch für die Planung verantwortlich. Es sind bei diesen Positionen Pauschalpreise anzubieten.
Die Verhandlung wird um 14:00 Uhr unterbrochen und um 15:36 Uhr fortgesetzt.
VR: Der Senat hat sich in Abwesenheit der ASt mit dem Angebot und insbesondere dem Abtragskonzept der präsZE beschäftigt. Auch auf die Bauzeit wurde eingegangen.
Das Protokoll zur Befragung der präsumtiven Zuschlagsempfängerin wird als Beilage ./6 zur Niederschrift genommen und ist von der Akteneinsicht ausgenommen.
ASt ESTERMANN: Nachdem die Bauzeit erörtert wurde gehen wir davon aus, dass die präsZE die angebotene Bauzeitverkürzung an eine Bedingung (z.B. fristgerechte Deckenbuchfreigabe) geknüpft hat, die nicht ausschreibungskonform ist. Dies wäre aus unserer Sicht vom Senat zu prüfen. Wenn dies der Fall ist, dürften die der präsZE die dafür zuerkannten zwei Punkte nicht zuerkannt werden, sodass dies falls das Angebot der präsZE an zweiter Stelle nach der ASt zu setzen wäre.
präsZE LAUCHNER: Unser Angebot ist Ausschreibungskonform. Eine solche Bedingung wurde nicht vorgesehen. Die Bewertung ist korrekt. Das Vorbringen in der gestern zugestellten Replik der ASt ist unrichtig und es wird auf das eigene Vorbringen verwiesen. Festgehalten wird, dass das bloße Parteivorbringen der ASt nicht geeignet ist, dem vorgelegten Gutachten auf gleicher fachlicher Ebene entgegenzutreten.
ASt ESTERMANN: Eine Entgegnung zudem von der präsZE vorgelegten Gutachten ist schon deshalb nicht möglich, weil das Gutachten geschwärzt wurde.
Es wird kein weiteres Vorbringen erstattet.“
II. Das Bundesverwaltungsgericht hat erwogen:
1. Feststellungen (Sachverhalt):
1.1. Allgemeines
1.1.1. Der Auftraggeber, die ASFINAG Autobahnen- und Schnellstraßen- Finanzierungs-Aktiengesellschaft, Schnirchgasse 17, 1030 Wien, führt ein offenes Vergabeverfahren im Oberschwellenbereich nach dem BVergG 2018 zur Vergabe eines Bauauftrages unter der Bezeichnung "A10 Tauernautobahn, Abschnitt Gmünd - Spittal, Neubau Tragwerke L43 Talübergang Steinbrückenbach". Vergebende Stelle ist die ASFINAG Bau Management GmbH, Schnirchgasse 17, 1030 Wien.
Unionsweit wurde die Bekanntmachung der Ausschreibung am 28.02.2022 im Supplement zum Amtsblatt der Europäischen Union zur Zahl 2022/S 041-105269 veröffentlicht. Die Angebotsfrist endete am 11. Mai 2022, 13.00 Uhr. (Angaben des Auftraggebers; Unterlagen des Vergabeverfahrens).
1.2. Ausschreibung
1.2.1. Die allgemeinen Ausschreibungsbestimmungen (L43-B.1) in ihrer Letztfassung lauten auszugsweise wie folgt:
„B.1 Ausschreibungsbestimmungen
Die Ausschreibungsbestimmungen regeln alle Aspekte im Zusammenhang mit gegenständlichen Vergabeverfahren. Sie bestehen aus
1. den allgemeinen Ausschreibungsbestimmungen
2. den projektspezifischen Ausschreibungsbestimmungen (LG00, ULG 00B1)
1.1 Allgemeine Ausschreibungsbestimmungen
1.1.1 Auftraggeber: Siehe Angebotsdeckblatt.
1.1.2 Vergebende Stelle: Siehe Angebotsdeckblatt.
1.1.3 Ausschreibungsgegenstand: Siehe Angebotsdeckblatt.
1.1.4 Sprache / Begriffsdefinitionen / Bezeichnung Bieter sowie Bietergemeinschaft
Die Vergabe-, Projekt- und Vertragssprache ist Deutsch. Sämtliche Unterlagen einschließlich Beilagen und Nachweise sowie die gesamte Korrespondenz sind in deutscher Sprache zu verfassen. Allfällige mündliche Mitteilungen erfolgen ebenso in deutscher Sprache.
Dokumente, die in einer Fremdsprache erstellt wurden, sind deutsche Übersetzungen beizulegen. Wird die Übersetzung nicht beigelegt, kann die vergebende Stelle nach ihrem freien Ermessen die Vorlage einer Übersetzung binnen angemessener Frist fordern.
Für Dokumente mit technischem Inhalt wie z.B. technischen Spezifikationen ist die Vorlage in englischer Sprache grundsätzlich zulässig. Die vergebende Stelle kann jedoch nach ihrem freien Ermessen die Vorlage einer deutschen Übersetzung binnen angemessener Frist fordern.
Aus Gründen der leichteren Lesbarkeit wird auf eine geschlechtsspezifische Differenzierung, wie z.B. Projektleiter/Innen, verzichtet. Entsprechende Begriffe gelten im Sinne der Gleichbehandlung für beide Geschlechter. Sämtliche Begriffe basieren auf der in Österreich gebräuchlichen Bedeutung.
Sofern in den Ausschreibungsbestimmungen Festlegungen für Bieter getroffen werden, gelten diese Festlegungen im Falle einer Bietergemeinschaft für sämtliche Mitglieder der Bietergemeinschaft, außer es wird eine gegenteilige Festlegung getroffen.
…
1.1.6 Vergabekontrollinstanz
Für die Kontrolle dieses Vergabeverfahrens ist das Bundesverwaltungsgericht zuständig.
1.1.7 Vergabeverfahren und Art des Auftrages: Siehe Angebotsdeckblatt.
1.1.8 Losvergabe Eine Losvergabe und somit ein Zuschlag auf einzelne Lose eines Angebotes ist nicht vorgesehen. Losangebote sind daher nicht zugelassen. Sofern eine Vergabe in Losen erfolgt, wird dies gesondert festgelegt. Es steht den Bietern dann frei, ein Angebot für ein Los oder für mehrere Lose zu legen. Im Falle eines nicht offenen Verfahrens mit vorheriger Bekanntmachung ist eine Teilnahme an Losen nur zulässig, insofern sich der Bieter für dieses Los präqualifiziert hat. Eine Teilvergabe innerhalb eines Loses ist unzulässig.
1.1.9 Mehrfachbeteiligungen von Unternehmen
Unternehmen ist es grundsätzlich untersagt, sich an mehreren Bietergemeinschaften oder sich als Einzelunternehmen und gleichzeitig als Mitglied einer Bietergemeinschaft oder als Subunternehmer eines Bieters bzw. einer Bietergemeinschaft zu beteiligen. Etwas anderes gilt, sofern das Unternehmen nachweisen kann, dass durch die Mehrfachbeteiligung keine Gefahr einer Wettbewerbsbeeinträchtigung besteht.
Angebote von konzernverbundene Unternehmen sind nur zulässig, sofern diese infolge eines Geheimwettbewerbs und somit völlig unbeeinflusst und unabhängig voneinander erstellt wurden.
…
1.1.11 Fragen zu den Ausschreibungsunterlagen / Hinweispflicht
Sollten sich bei der Prüfung der Ausschreibungsunterlagen Differenzen, Widersprüche oder sonstige Unklarheiten und/oder (vermutete) Verstöße gegen das BVergG ergeben, ist der Bieter verpflichtet, den Auftraggeber darüber umgehend schriftlich in Kenntnis zu setzen, indem er um Klarstellung und – falls notwendig – um entsprechende Korrekturen ersucht. Den Bieter trifft somit eine vorvertragliche Hinweispflicht.
Die entsprechenden Fragen sind bei der vergebenden Stelle bis spätestens 11 (bei Verfahren mit verkürzten Fristen und Verfahren in der Unterschwelle 7) Kalendertage vor Ablauf der Angebotsfrist einzubringen. Der Auftraggeber ist nicht verpflichtet später eingehende Fragen zu berücksichtigen.
Die Fragen sind mit dem Hinweis „Bieteranfrage“ und mit der Bezeichnung des Ausschreibungsgegenstandes zu kennzeichnen.
Fragen im Zuge der Angebotsfrist sind schriftlich an den Sachbearbeiter/Ansprechpartner des gegenständlichen Vergabeverfahrens zu richten. Bei Verfahren über ProVia können Sie im Register „Fragen und Antworten“ eine Frage stellen. Bei konventionellen Verfahren senden Sie Ihre Anfrage an die im Feld „Informationsübermittlung“ angegebenen Kontaktdaten. Mündlich gestellte Fragen (etwa per Telefon) sind unzulässig und gelten als nicht gestellt.
Der Auftraggeber wird bis spätestens 7 (bei Verfahren mit verkürzten Fristen und Verfahren in der Unterschwelle 4) Kalendertage vor Ablauf der Angebotsfrist Antworten zu den eingelangten Fragen erteilen. Der Auftraggeber behält sich vor, Fragen einzeln oder gesammelt zu beantworten.
Antworten auf Fragen sind bei der Ausarbeitung und Erstellung des Angebots mit gleicher Verbindlichkeit wie die Angaben in den Ausschreibungsunterlagen zu berücksichtigen.
1.1.12 Berichtigungen Die vergebende Stelle behält sich vor, Berichtigungen Änderungen oder Ergänzungen an den Ausschreibungsunterlagen vorzunehmen. Berichtigungen udgl werden im Sinne des § 101 BVergG 2018 durchgeführt. Der Bieter ist verpflichtet, die Berichtigungen, Änderungen oder Ergänzungen bei seiner Angebotslegung zu berücksichtigen.
…
1.1.16 Erstellung der Preise
Die Preise sind entsprechend der im Teil B.4 gemäß Kapitel „Festpreise/Veränderliche Preise“ festgelegten Bestimmungen zu erstellen. Die Kalkulation aller angebotenen Preise und deren Aufgliederung hat den Bestimmungen der ÖNORM B 2061 i.d.g.F. unter Berücksichtigung der diesbezüglichen Festlegungen in der Ausschreibung zu entsprechen.
1.1.17 Form und Einreichung der Angebote
Der Bieter ist – bei sonstigem Ausscheiden – verpflichtet, die im Angebotsdeckblatt unter „zwingend mit dem Angebot abzugebende Unterlagen (Ausscheidenssanktion)“ angeführten Teile gemeinsam mit dem Angebot abzugeben. Diese Unterlagen müssen daher bei der Angebotsöffnung zwingend dem Angebot angeschlossen sein und können nicht mehr nachgereicht werden (unbehebbarer Mangel). Sonstige in den Ausschreibungsunterlagen verlangte Unterlagen sind – sofern ein behebbarer Mangel vorliegt – über Aufforderung binnen der im Aufforderungsschreiben genannten Frist bei der vergebenden Stelle nachzureichen. Dem Angebotsdeckblatt sind sämtliche Formblätter angeschlossen. Klarstellend wird festgehalten, dass sich die o.a. Verpflichtung zur zwingenden Abgabe von Unterlagen nur auf jene Formblätter bezieht, welche dort (auf dem Angebotsdeckblatt unter „zwingend mit dem Angebot abzugebenden Unterlagen „Ausscheidenssanktion“) ausdrücklich angeführt sind. Alle übrigen Formblätter bzw. Unterlagen sind nachforderbare Unterlagen und – sofern ein behebbarer Mangel vorliegt – über Aufforderung binnen der im Aufforderungsschreiben genannten Frist bei der vergebenden Stelle nachzureichen. Die Angebote sind vollständig und mit den vorgesehenen Textvordrucken und Formblättern auszufüllen. Es können auch Ergänzungsblätter verwendet werden, wenn die Formblätter bzw. die darin enthaltenen Felder für die Angaben des Bieters nicht ausreichend sind.
Das Angebot hat bis spätestens zu der am Angebotsdeckblatt festgelegten Frist (siehe Angebotsdeckblatt) einzugehen. Im Falle einer Berichtigung mit Fristverlängerung gilt als Ende der Angebotsfrist der in der Berichtigung angegebene Termin.
Die Angebote sind so rechtzeitig hochzuladen, abzugeben oder per Post abzusenden, dass sie spätestens bis zum Ende der Angebotsfrist auf der Vergabeplattform ProVia oder am Ort der Angebotsöffnung (siehe Angebotsdeckblatt) vorliegen. Das Risiko des rechtzeitigen Eingangs trägt der Bieter. Später einlangende Angebote werden nicht berücksichtigt.
Im Angebotsdeckblatt wird unter „Angebotsabgabe und Ort der Angebotsöffnung“ festgelegt, ob die Angebote in elektronischer oder schriftlicher Form (Papier) einzureichen sind. Auf Basis dieser Festlegung sind die zugehörigen Kapitel weiter unten zu beachten.
Ein allfällig verlangtes Vadium ist unabhängig von der Art der Angebotseinreichung jedenfalls schriftlich als Original innerhalb der Angebotsfrist am Ort der Angebotsöffnung gemäß Angebotsdeckblatt abzugeben.
…
1.1.19 Angebotsöffnung
Die Angebotsöffnung findet nach Ablauf der Angebotsfrist statt. Falls die Bieter berechtigt sind, daran teilzunehmen, ergibt sich dies aus dem Angebotsdeckblatt. Zur Teilnahme an der Angebotsöffnung sind ausschließlich Bieter bzw. deren Vertreter berechtigt. Bei der Angebotsöffnung wird ein Protokoll gemäß § 133 Abs. 5 BVergG 2018 erstellt. Im Öffnungsprotokoll werden auch jene Zuschlagskriterien ausgewiesen, die in Zahlen ausgedrückt werden können und die der Bieter auf der Vergabeplattform in elektronischer Form einzugeben hat. Den Bieter trifft eine umgehende Rügepflicht.
1.1.20 Zuschlagsfrist
Die Zuschlagsfrist beträgt 3 Monate und beginnt mit dem Ablauf der Angebotsfrist. Die Bieter sind während der Zuschlagsfrist an ihr Angebot gebunden.
1.1.21 Angebotsprüfung
Die Prüfung der Angebote erfolgt nach den Bestimmungen der gegenständlichen Ausschreibungsunterlagen. Ergeben sich bei der Prüfung der Angebote Unklarheiten oder werden Mängel festgestellt, die das Angebot bzw. den Bieter mit einer Ausscheidung bzw. einem Ausschluss bedrohen und diese Mängel behebbar iSd BVergG sind, so hat der Bieter die Möglichkeit, innerhalb einer vom Auftraggeber gesetzten (angemessenen) Frist eine verbindliche schriftliche Aufklärung abzugeben. Erfolgt seitens des Bieters keine fristgerechte Aufklärung, so wird – sofern in der Aufforderung zur Verbesserung nicht anderes festgelegt ist – das Angebot ausgeschieden. Die Wahl des Angebotes für den Zuschlag wird nach den hierfür in den vorstehenden Vergabegrundlagen enthaltenen Kriterien und Bestimmungen getroffen.
…
1.1.27 Bietergemeinschaften / Arbeitsgemeinschaften
Bietergemeinschaften sind zulässig.
…
…
1.1.32 Alternativangebote und Abänderungsangebote
1.1.32.1 Zulassung von Alternativangeboten und Abänderungsangeboten
Es ist nicht zulässig, dass ein Bieter/Auftragnehmer zur Planung von Alternativangeboten bzw. Abänderungsangeboten, Dienstleister (z.B. Planer, Geologen, Gutachter) heranzieht (z.B. als Subunternehmer oder Berater), welche für den Auftraggeber mit der Erstellung des Amtsentwurfs oder mit Vorarbeiten (im Sinn des § 25 BVergG 2018) für dieses Projekt tätig waren.
Alternativangebote § 96 BVergG 2018
Alternativangebote für die Gesamtleistung oder für Teile der Leistung sind zugelassen.
Jedes Alternativangebot muss die Formalerfordernisse eines ausschreibungskonformen Hauptangebotes erfüllen. Jedes Alternativangebot hat einen gesonderten Gesamtpreis zu enthalten. Alternativangebote sind nur neben einem ausschreibungsgemäßen Angebot zulässig.
Pauschalangebote
Pauschalangebote sind unzulässig und werden ausgeschieden.
„Mehrwertalternativen“
Bei Alternativangeboten, bei welchen die festgelegten Mindestanforderungen übererfüllt werden (Mehrwertalternativen), wird die Übererfüllung nicht bewertet. Dies gilt auch für
Abänderungsangebote.
Abänderungsangebote § 97 BVergG 2018
Abänderungsangebote sind zulässig. Abänderungsangebote sind nur neben einem ausschreibungsgemäßen Angebot zu- lässig. Jedes Abänderungsangebot hat einen gesonderten Gesamtpreis zu enthalten. Abänderungsangebote haben die Erbringung einer gleichwertigen Leistung sicherzustellen. Den Nachweis der Gleichwertigkeit hat der Bieter zu führen. Abänderungsangebote sind ausdrücklich mit der Bezeichnung „Abänderungsangebot“ zu kennzeichnen.
1.1.32.2 Nachweise für Alternativangebote und Abänderungsangebote
Gibt der Bieter keine eigene Erklärung ab, so gelten die Angaben in den jeweiligen Formblättern des Hauptangebotes auch für das Alternativangebot bzw. das Abänderungsangebot (z.B. hinsichtlich der ordnungsgemäßen Unterfertigung des Angebots, Subunternehmerverzeichnis, Qualitätskriterien, usw.).
Achtung: Insbesondere bei den Formblättern der Ausschreibung ist darauf zu achten, dass keine Widersprüche zum Alternativangebot bzw. Abänderungsangebot entstehen.
Alternativangebote bzw. Abänderungsangebote müssen sämtliche Nachweise für die Einhaltung der obig genannten Festlegungen in prüfbarer Form enthalten.
1.1.32.3 Inhalt und Form von Alternativangebote und Abänderungsangebote
Alternativangebote bzw. Abänderungsangebote sind inhaltlich und formal – soweit möglich – in gleicher Weise wie das ausschreibungsgemäße Hauptangebot auszuarbeiten und vorzulegen. Die Alternativangebote bzw. Abänderungsangebote müssen alle Inhalte gemäß § 127 BVergG 2018 aufweisen. Hierfür sind – soweit möglich – Kopien der entsprechenden Ausschreibungsunterlagen zu verwenden, um die Vergleichbarkeit sicherzustellen.
Das Risiko, ein ordnungsgemäßes, vergleichbares Anbot zu legen, trägt der Bieter, da jederzeit Anfragen zur Beurteilung der Vergleichbarkeit an die ausschreibenden Stelle im Rahmen der Fristen gestellt werden können. Auf die weiteren Bestimmungen bezüglich Haftung und Risikotragung wird auf den Teil B.4 verwiesen.
1.1.32.4 Kostentragung bzw. Kalkulation bei Alternativangeboten und Abänderungsangeboten
Die Kosten (z.B. resultierend aus behördlichen Auflagen oder für die Erstellung eventuell erforderlicher Unterlagen für allfällig zusätzlich notwendige öffentlich- und privatrechtliche Bewilligungen und Zustimmungen sowie für die Ausführungsplanung, etc.) und Mehraufwände (z.B. aufgrund geänderter Platzverhältnisse, zusätzlicher Verkabelung, zusätzliches Baugrundrisiko, etc.), die sich infolge der Ausführung des Alternativangebotes bzw. Abänderungsangebotes ergeben, sich aber bei der Ausführung des Amtsentwurfes nicht verwirklicht hätten, sind mit den Einheitspreisen abgegolten. Sollten etwaige Kosten und Mehraufwände nicht gesondert ausgewiesen sein, so gilt die Vermutung, dass diese in den Einheitspreisen enthalten sind.
1.1.32.5 Einschränkungen und Mindestanforderungen für Alternativangebote
Einschränkungen:
Alternativangebote, welche mit der Ausschreibung technisch, wirtschaftlich und rechtlich gleichwertig und vergleichbar sind, werden mit nachstehenden Einschränkungen zum gegenständlichen Vergabeverfahren zugelassen:
Allgemeine Einschränkungen:
• Rechtliche Alternativangebote sind nicht zulässig.
• Bauzeitverlängerungen sind nicht zulässig.
• Bauzeitverkürzungen sind nicht zulässig, außer sie sind als Zuschlagskriterien vorgesehen.
• Randbalkenlose Brücken sind nicht zulässig.
• Nachlässe aus der Verknüpfung mit anderen Baulosen sind nicht zulässig.
• Wird durch ein Alternativangebot das der gegenständlichen Ausschreibung zugrunde liegende Gründungskonzept geändert, so muss diese Änderung – bei sonstiger Ausscheidung – durch ein geotechnisches (geomechanisches, hydrologisches) Gutachten des Bieters, im Hinblick auf den Nachweis der Gleichwertigkeit nachgewiesen werden. Dabei sind die Bodenkennwerte (Bohrprofile, geotechnische Laboruntersuchungen und Grundwasserstandsdaten des Amtsentwurfes – soweit vorhanden – und eigene Erkundungen des Bieters – soweit erforderlich – zu Grunde zu legen (vgl. Erlass des BMwA, GZ 800.040/35 - VI/B/7a/97: Allgemeine bautechnische Angelegenheiten; geotechnische Maßnahmen vom 18.11.1997).
Projektspezifische Einschränkungen:
Für weitere Einschränkungen wird ergänzend auf den Teil B.5 (LG00) verwiesen.
Mindestanforderungen: Alternativangebote dürfen das in der Ausschreibung beschriebene Bau-Soll abändern, wobei sowohl obige Einschränkungen als auch vor allem nachstehende Mindestanforderungen einzuhalten sind.
Allgemeine Mindestanforderungen:
Bei Alternativen sind die sich aus der Ausschreibung (B1 bis B6) ergebende Funktionalität der Bauleistungen (für die Verkehrsteilnehmer und/oder die Betreiber) und das Leistungsziel abzudecken.
Alle Verweise auf das Bundesministerium für Verkehr, Innovation und Technologie (BMVIT) sind auf das Bundesministerium für Klimaschutz, Umwelt, Energie, Mobilität, Innovation und Technologie (BMK) zu beziehen.
Die Gleichwertigkeitsprüfung wird weiters auf Basis nachfolgender Grundlagen durchgeführt:
• rechtliche Rahmenbedingungen (einschlägige Gesetze, Verordnungen und individuellen Rechtsakte (z.B. Bescheide); siehe aber auch unten Mindestanforderungen iZm behördlichen Genehmigungen);
• B.3 Technische Vertragsbestimmungen und die projektspezifischen
Vertragsbestimmungen der B.5 (LG00);
• technische Bestimmungen und Auflagen aus Bescheiden und Verträgen (liegen den Ausschreibungsunterlagen bei);
• harmonisierte Europäische Normen (hEN);
• vom BMVIT bzw. BMK verbindlich erklärte Richtlinien und Vorschriften für das Straßenwesen (RVS);
• ÖNORMEN;
• technische Planungshandbücher der ASFINAG, veröffentlicht unter www.asfinag.net (die jeweils letztgültige veröffentlichte Version);
• vom BMVIT bzw. BMK nicht verbindlich erklärte Richtlinien und Vorschriften für das Straßenwesen (RVS);
• technische Vorschreibungen aus Erlässen und Dienstanweisungen des BMVIT bzw. BMK und
• Richtlinien und Merkblätter der österreichischen Bautechnik Vereinigung (ÖBV) und des österreichischen Baustoffrecyclingverbandes (BRV).
Ergeben sich aus dieser Aufzählung Widersprüche, gelten die Grundlagen in der angegebenen Reihenfolge. Zur Überprüfung der Gleichwertigkeit müssen die Alternativen eine ausreichende Planungstiefe aufweisen, die auf Aufforderung dem Auftraggeber nachzuweisen ist. Darüber hinaus gelten im Zusammenhang mit behördlichen Genehmigungen die folgenden Mindestanforderungen:
Je nach erforderlichen Behördenverfahren gelten für gegenständliche Ausschreibung nachfolgende Bestimmungen als vereinbart:
Für Projekte, für die eine Genehmigung nach dem UVP-G und/oder STSG eingeholt wurde, gilt:
Der Bieter hat zu beurteilen und dem Auftraggeber nachzuweisen, ob auf Grund der mit dem Alternativangebot verbundenen Änderungen neue behördliche Genehmigungen und/oder Abänderungen bereits vorliegender Genehmigungen erforderlich sind. Dies betrifft insbesondere (aber nicht ausschließlich) Genehmigungen nach dem UVP-G, WRG, STSG, BStG, ForstG oder dem Naturschutzrecht.
Dieser Nachweis ist durch folgende Unterlagen, welche vom Bieter auf Nachforderung beizubringen sind, zu führen:
1. Technische Beschreibung der geplanten Änderungen:
Die der Ausschreibung zugrunde liegende technische Ausführung ist den mit dem Alternativangebot verbundenen Änderungen gegenüber zu stellen.
2. Beurteilung der Auswirkungen der Änderungen auf bestehende Genehmigungen/Erforderlichkeit zusätzlicher Genehmigungen:
Es ist auf entsprechend qualifizierter Ebene (d.h. z.B. durch Ziviltechniker oder sonstige einschlägig qualifizierte Büros) aus fachlicher und rechtlicher Sicht plausibel und schlüssig darzustellen und zu beurteilen, ob und in welcher Form die mit dem Alternativangebot vorgesehenen Änderungen Auswirkungen auf bereits bestehende behördliche Genehmigungen (insbesondere im Sinn eines Änderungsbedarfs bei diesen Genehmigungen) haben und/oder die Erteilung zusätzlicher Genehmigungen erforderlich machen.
Insbesondere ist darzustellen,
• mit welchen schutzgutrelevanten (Umwelt-)Auswirkungen die geplanten Änderungen verbunden wären,
• nach welchen konkreten Genehmigungstatbeständen bestehende Genehmigungen abgeändert werden und/oder neue Genehmigungen eingeholt werden müssten, und
• ob allenfalls nötige Änderungsgenehmigungen und/oder neue Genehmigungen nach dem jeweils relevanten Stand der Technik und der einschlägigen Rechtslage aus der Sicht des Bieters genehmigungsfähig sind.
Für den Fall, dass durch die mit dem Alternativangebot verbundenen Änderungen bereits bestehende Genehmigungen abgeändert werden und/oder zusätzliche Genehmigungen eingeholt werden müssen, hat der Bieter weiters ein plausibles und schlüssiges Umsetzungskonzept auf Nachforderung vorzulegen. Darin hat der Bieter insbesondere Folgendes darzustellen:
• Beschreibung der nötigen (Änderungs-)Genehmigungen und Darstellung der konkreten Abläufe für die Planung und Durchführung der (Änderungs-) Genehmigungsverfahren.
• Zeitraum für die Verfahrensabwicklung (X Monate nach Auftragserteilung) inkl. Zeitpunkt des Vorliegens rechtskräftiger (Änderungs-)Genehmigungen.
• Auswirkungen der durchzuführenden (Änderungs-)Genehmigungsverfahren auf den
geplanten Bauablauf samt Konzept für eine möglichst effiziente Bauumsetzung bei laufenden Verfahren. Alternativangebote, welche die oben angeführten Mindestanforderungen nicht erfüllen (z.B. weil die oben angeführten Nachweise nicht in der geforderten fachlich qualifizierten Form oder nur unvollständig erbracht wurden bzw. unplausibel oder unschlüssig sind), werden ausgeschieden.
Für alle sonstigen Projekte gilt:
Bei Projekten, die nicht nach dem UVP-G oder dem STSG, sondern nach anderen Materiengesetzen genehmigt wurden (z.B. BStG, WRG, Naturschutzrecht oder ForstG) hat der Bieter über Aufforderung durch den Auftraggeber binnen der im Aufforderungsschreiben genannten Frist eine schriftliche Bestätigung der zuständigen Genehmigungsbehörde(n) vorzulegen, dass
• das Alternativangebot keine materienrechtliche Genehmigungspflicht auslöst oder • das Alternativangebot genehmigungsfähig ist.
Allgemeine Vorgaben für Alternativangebote im Zusammenhang mit behördlichen Genehmigungen:
Die oben angeführten Genehmigungen im Zusammenhang mit Alternativangeboten werden formal vom Auftraggeber selbst eingeholt. Es wird dem Auftragnehmer keine Vollmacht erteilt. Der Auftragnehmer hat jedoch sämtliche für die Erwirkung der erforderlichen Genehmigungen erforderlichen Schriftsätze (samt Anträgen und Unterlagen), sowie jeden übrigen Schriftverkehr mit der zuständigen Behörde in einer Weise vorzubereiten, sodass diese vom Auftraggeber ohne jede Änderung bei der zuständigen Behörde eingebracht werden können und dem Auftraggeber zeitgerecht zur Einbringung zu übermitteln. Der Auftraggeber ist berechtigt, aber nicht verpflichtet, die vom Auftragnehmer zur Einbringung übermittelten Schriftsätze und Unterlagen zu prüfen. Sofern die dem Auftraggeber zur Einbringung übermittelten Schriftsätze und Unterlagen nicht den gesetzlichen Erfordernissen oder üblichen Standards (z.B. in einem UVP-Verfahren) entsprechen, ist der Auftragnehmer verpflichtet, die Schriftsätze und Unterlagen binnen angemessener Frist entsprechend zu überarbeiten und dem Auftraggeber in überarbeiteter Form erneut zur Einbringung zu übermitteln. Der Auftraggeber wird den Auftragnehmer über den Stand der Genehmigungsverfahren informiert halten. Unabhängig von den erforderlichen Behördenverfahren gelten im Weiteren folgende Bestimmungen:
Projektspezifische zusätzliche Mindestanforderungen:
Für weitere Mindestanforderungen wird auf den Teil B.5 (LG00) verwiesen. Genehmigungsrisiko bei Alternativangeboten:
Sollte sich im Zuge der Auftragsabwicklung herausstellen, dass ein Alternativangebot, welches behördliche Genehmigungen erfordert, (1) nicht genehmigt wird, (2) nicht rechtzeitig genehmigt wird oder (3) nicht genehmigungsfähig ist, so hat der Auftragnehmer dieses Risiko zu tragen und gegebenenfalls die Leistungen gemäß Hauptangebot zu maximal dem mit dem Alternativangebot garantierten Angebotssumme auszuführen. Insbesondere wird auf folgende Risiken und daraus allenfalls resultierenden Kosten verwiesen:
• Änderungen der Bauzeit bzw. der zeitgebundene Kosten;
• Rückbau bereits umgesetzter, nicht genehmigungsfähiger Leistungen;
• Adaptierungen oder Ergänzungen von Umweltausgleichsmaßnahmen; • Kosten Dritter (ÖBA, BauKG, BK, sonstige Auftragnehmer); • Forcierungskosten bei Verzögerungen.
1.1.33 Wesentliche Positionen
Für die im Leistungsverzeichnis als wesentlich gekennzeichnete Positionen sind – soweit im Angebotsdeckblatt verlangt – die K7-Blätter sowohl für den Auftraggeber-Entwurf als auch – falls angeboten – für allfällige Alternativentwürfe mit dem Angebot abzugeben. Positionen der Alternativangebote, welche im Hauptangebot nicht enthalten sind, werden zu wesentlichen Positionen, wenn sie mehr als 3% des Gesamtpreises des Alternativangebotes ausmachen. Diese wesentlichen Positionen sind – soweit im Angebotsdeckblatt verlangt – zusätzlich zu den als wesentlich gekennzeichneten Positionen mit dem Angebot abzugeben.
1.1.34 Angebotsbewertung
Konkrete Festlegungen zur Angebotsbewertung finden sich im Teil B.5, BLV.00.
1.1.35 Optionale Leistungen
Sind gemäß LV Optionen vorgesehen, so gilt:
Die optional ausgeschriebenen Leistungen sind im LV getrennt angegeben bzw. als Option erkenntlich gemacht. Sämtliche vertragliche Regelungen gelten auch für die Option. Der AG behält sich das einseitige Gestaltungsrecht vor, die Option oder Teile der Option bis 3 Monate vor Ende der Leistungsfrist abzuberufen. Weiters unterliegt der optionale Anteil genauso der vertieften Angebotsprüfung wie die nicht optionalen Leistungen (Grundleistung).
1.1.36 Bieterservice/Anregungen für Verbesserungen
Der Auftraggeber ist stets bemüht, die Ausschreibungsbedingungen und -unterlagen möglichst unbürokratisch und einfach in der Handhabung zu gestalten. Wir ersuchen Sie daher – unbeschadet der nach dem BVergG bestehenden Obliegenheiten des Bieters – uns Anregungen für Verbesserungen mitzuteilen.“
Die maßgeblichen Baubeschreibungsunterlagen Neubau (L43-B.2) lauten in ihrer Letztfassung auszugsweise wie folgt: „
1 EINLEITUNG
1.1 ALLGEMEINE BESCHREIBUNG DES VORHABENS
Das bestehende Objekt L43 Talübergang Steinbrückenbach liegt auf der A10 Tauernautobahn zwischen km 137,040 und km 137,646, d.h. zwischen der ASt Gmünd und der Anschlussstelle Spittal.
Das bestehende Brückenobjekt, je Richtungsfahrbahn ein Stahlverbundtragwerk, ist in einem schlechten Erhaltungszustand, so das von 2022 bis 2026 seitens der Asfinag ein Ersatzneubau des Tragwerkes am bestehenden Unterbau vorgesehen ist. Hierfür wird in einem ersten Schritt das bestehende Tragwerk Richtungsfahrbahn Salzburg temporär ertüchtigt und nachfolgend der Verkehr in einer 4+0 Verkehrsführung (bzw. 3+0 in verkehrlichen Randzeiten) auf das ertüchtigte Tragwerk umgelegt. Anschließend erfolgt der Abbruch des bestehenden Tragwerkes und der Ersatzneubau für die Richtungsfahrbahn Villach. Nach Umlegen des Verkehrs auf die RFB Villach mit einer Verkehrsführung 4+0 wird das Bestandstragwerk RFB Salzburg abgetragen und durch ein neues Brückenobjekt ersetzt. Gegenstand dieses Berichtes ist der Abtrag des bestehenden Tragwerkes, die Ertüchtigung des Unterbaus und der Pfeiler, sowie die Herstellung des neuen Brückentragwerkes.
…
1.2 GEPLANTE MAßNAHMEN UND PROJEKTZIELE
Geplante Maßnahmen:
Der derzeit nur eingeschränkt nutzbare Talübergang L43 im Liesertal zwischen AST Gmünd und Knoten Millstättersee soll entsprechend generalerneuert werden, sodass hier wieder ein voller Betrieb möglich ist (derzeit Abstellstreifen auf beiden RFB gesperrt und nicht befahrbar, permanente Einschränkungen für Sondertransporte). Hierzu wird das Brückentragwerk auf beiden Richtungsfahrbahnen gänzlich abgetragen und neu errichtet. Weiters sind Adaptierungen an den Widerlagern, Pfeilern und den Gründungen erforderlich.
Ein wesentliches Kriterium ist neben den technischen Herausforderungen die laufende Verkehrsführung mit 4+0 im unmittelbaren Nahbereich zu den Bauarbeiten.
Projektziele:
• Wiederherstellung der vollen Verfügbarkeit des Bauwerks
• Entsprechende Erhöhung der Restlebensdauer des Gesamtbauwerks
• Egalisierung der unbehebbaren Mängel und damit Verbesserung des Erhaltungszustandes
•
1.3 AUFGABENSTELLUNG
Die ASFINAG Bau Management GmbH beauftragte die ARGE L43 Steinbrückenbachbrücke (Horn Partner ZT GmbH, Öhlinger Partner ZT GmbH) mit der Ausarbeitung der Ausschreibungs- und Ausführungsplanung für den Ersatzneubau des Brückenobjektes L43 Steinbrückenbachbrücke auf der A10 Tauernautobahn.
1.4 BAUPHASEN
Für Gegenständliches Projekt sind die folgenden Bauphasen vorgesehen.
Bauphase 1
Vorbereitungs- und Verbreiterungsarbeiten auf der Bestandsfahrbahn RFB Salzburg, Ertüchtigung des Bestandstragwerkes RFB Salzburg, Verkehrsumlegung auf RFB Salzburg
Bauphase 2
Vorbereitungs- und Verbreiterungsarbeiten auf der Bestandsfahrbahn RFB Villach, Abtrag des bestehenden Tragwerkes RFB Villach, Neubau Tragwerk und Pfeilerköpfe, sowie Pfeiler 5 6 der RFB Villach, Fundierungsertüchtigung Bestandspfeiler RFB Villach und RFB Salzburg
Bauphase 3
Abtrag des bestehenden Tragwerkes RFB Salzburg, Neubau Tragwerk und Pfeilerköpfe, sowie der Pfeiler 5 6 der RFB Salzburg, Fertigstellung Fundierungsertüchtigung Bestandspfeiler, Gesamtfertigstellung
Es wird auch auf die damit verbunden Verkehrsführungsphasen verwiesen, wobei in einer Bauphase mehrere Verkehrsführungsphasen erforderlich werden.
Für gegenständliches Brückenobjekt L43 Steinbrückenbachbrücke werden,
• eine Spannbetonbrücke mit Hohlkastenquerschnitt (als Hauptangebot) und
als Variante ein
• Verbundtragwerk mit 2 Stahlkastenquerschnitten je Richtungsfahrbahn, projektiert und ausgeschrieben.
5.1 AUSZUFÜHRENDE ARBEITEN IM ÜBERBLICK
Insbesondere werden folgende Maßnahmen erforderlich sein:
• Temporäre Brückeninstandsetzung Bestandstragwerk RFB Salzburg (eigene Planung Ingenieurbüro MCC DI Mladen Cerin)
• Mehrmalige Verkehrsumlegung mit Verkehrsführungsmaßnahmen
• Umlegung CN.as-Trasse in temporäre Lage und Rücklegung in endgültige Lage
• Brückenabtrag Bestandstragwerke
• Teilabtrag und Erneuerung Pfeilerköpfe Bestandspfeiler
• Ertüchtigung Pfeilerfundierung für Pfeiler 1, 2, 3 und 4 mittels Anker, Ankerbalken und Mikropfählen für das Spannbetontragwerk und
Ertüchtigung der Pfeilerfundierung für Pfeiler 1, 2, 3, 4, 7 8 mittels Anker, Ankerbalken und Mikropfählen für die Variante Verbundtragwerk.
• Ertüchtigung Widerlager 0 und 9 mit Erneuerung der Herdmauer
• Errichten einer Vorsatzschale beim WL 0 9 und Herstellen von Dauerfreispielankern bei WL 0
• Erneuerung Pfeilschäfte Pfeiler 5 und Pfeiler 6 samt Ertüchtigung der Fundierung
• Herstellen neues Brückentragwerk RFB Villach und RFB Salzburg als Spannbetontragwerk (Freivorbau) oder als Stahlverbundtragwerk
• Herstellen Tragwerksabdichtung, Randbalken, Brückenentwässerung und Fahrbahnaufbau
• Einbau der Fahrbahnübergangskonstruktionen
• Herstellen Brückenausrüstung
• Wiederherstellung Gelände im Baustellenbereich
5.2 BAUSTELLENZUFAHRTEN
Das gegenständliche Baulos ist grundsätzlich über das hochrangige Straßennetz der A10 Tauernautobahn zugänglich. Hierzu stehen die Auf- und Abfahrten Gmünd und Spittal Nord zur Verfügung. Seitens des AG können keine weiteren Zufahrten über das untergeordnete Straßennetz bzw. über Fremdgrund zur Verfügung gestellt werden, sodass der Abbruch und die Herstellung des Ersatzneubaues samt der Pfeiler- und Fundierungsertüchtig ausschließlich über das hochrangige Straßennetz erfolgt. Auf die damit verbundenen Erschwernisse und Bauablaufeinschränkungen wird ausdrücklich hingewiesen. Unabhängig davon wurden vom AG bzw. dem beauftragten Planer Zufahrtsmöglichkeiten sowohl am Talboden zu den Pfeilerstandorten 2, 3 und 4 als auch über eine neu herzustellende Baustraße bergseitig der RFB Villach bis zum Hochplateau zu den Pfeilern 5 und 6 ausgearbeitet. Für die bergseitige Baustellenzufahrt wurden die Vorabstimmungen aus naturschutz- und forstrechtlicher Sicht vorgenommen. Die Errichtung einer Zufahrt ist grundsätzlich konsensfähig. Für die Zufahrt am Talboden mit der erforderlichen Querung des Steinbrückenbaches liegt ebenfalls eine grundsätzliche Zustimmung seitens der Behörde betreffend die wasserrechtlichen Belange vor.
Mangels absehbarer einvernehmlicher Einigung mit den Grundeigentümern durch den Auftraggeber wurden die obig beschriebenen Zufahrtsmöglichkeiten seitens des AG nicht weiterverfolgt.
Es liegt im eigenen Ermessen des Bieters in wie weit die vorgeschlagenen Zufahrtsmöglichkeiten für seine Bauumsetzung erforderlich sind oder Erleichterungen bringen und ob diesbezüglich eine Einigung mit den Grundeigentümern erzielt werden kann.
…
Seitens des Bieters ist jedenfalls mit Abgabe des Angebotes im geplanten Bauablaufkonzept mitzuteilen, ob und welche Erschließung der Baustelle bei der Kalkulation berücksichtigt wurde.
…
5.4 BESTANDSTRAGWERK – RÜCKBAU, ABTRAG
5.4.1 Beschreibung Bestandobjekt
Das Brückenobjekt L43 Steinbrückenbachbrücke ist ein über 9 Felder durchlaufendes Stahlverbundtragwerk mit Stützweiten (im Mittel) von 57,72 m + 7 x 69,26 m + 63,43 m und hat somit eine Gesamtlänge von 606 m. Das Brückenobjekt wurde in den Jahren 1975 bis 1976 errichtet. Die Brücke besteht aus zwei getrennten, parallellaufenden Tragwerken (RFB Salzburg und RFB Villach), die nicht mit einander verbunden und statisch prinzipiell gleich (gespiegelt über die Mittelachse der Autobahn) sind.
Abbildung 4: Übersichtsplan im Überblick
Abbildung 5: Längenschnitt im Überblick
Die Festlager der Brücke sind Linienkipplager aus Stahl und befinden sich bei den Pfeilern 2, 3, 4, 5 und 8. Die längsbeweglichen Lager sind Topflager und bei Widerlager 0, Widerlager 9, Pfeiler 1, 6 und 7 situiert. Die einzelnen Tragwerke sind offene Hohlkästen bestehend aus zwei Vollwandhauptträgern, einem oberen und einem unteren Horizontalverband, sowie einer oben liegenden Platte aus Stahlbeton. Die Steghöhe der Hauptträger beträgt ca. 3,35 m, der Abstand der Hauptträger ist ca. 5,50 m, die Fahrbahnplatte kragt beim ursprünglich errichteten Tragwerk beidseitig ca. 3,60 m aus.
Abbildung 6: Regelquerschnitt des ursprünglichen Tragwerkes
Im Jahr 2005 erfolgte eine Sanierung und Verbreiterung des Brückentragwerkes, bei der die Fahrbahnplatte der jeweiligen Außenseite ergänzt und zusätzlich stahlbaumäßig abgestützt wurde. Die bestehende Fahrbahnplatte wurde zusätzlich noch mit einem Aufbeton versehen.
Abbildung 7: Brückenquerschnitt nach Verbreiterung 2005
Abbildung 8: Ansicht Pfeiler
Abbildung 9: Untersicht Überbau nach Verbreiterung 2005
Die Stegbleche des Stahlquerschnittes wurden mit innenliegenden Steifen aus geschweißten T-Profilen mit Abständen von ca. 2,90 m versteift. Die Längsaussteifung der Hauptträger-Stegbleche erfolgt durch 3 außenliegenden Hohlrippen mit Dreiecksquerschnitt und einem innenliegenden Kantwinkel. Querverbände sind ca. alle 11,60 m angeordnet. Die Gurtverstärkung erfolgt durch Zulegen von Zusatzlamellen, wobei im Maximalfall (Stützbereich) 4 Lamellen vorhanden sind.
Im Abstand von ca. 12 m wurden die Hauptträger mittels geschraubten Laschenstößen verbunden. Detailliertere Angaben zum Stahlbau des bestehenden Tragwerkes können aus den Bestandsplänen entnommen werden.
Die Fahrbahnplatte ist im Stützbereich bei den Pfeilern auf eine Länge von ca. 35 m (beidseitig der Lagerachse je ca. 17,5 m) verbundlos ausgeführt. Nur die verbleibenden Feldbereiche mit je ca. 34,60 m Länge sind als Verbundquerschnitt errichtet worden, wobei der Verbund zwischen Hauptträger und Fahrbahnplatte mittels Kopfbolzendübel erfolgte.
Stahlgüte Stahltragwerk:
• Hauptträger Sonderstahl Alfort
• Querträger und Verbände: Stahl ST37T
• Verbindungsmittel Schraube: Güte 10.9 und 12.9
Aus der Prüfung von Stahlproben des Untergurtes ergibt sich jedoch lediglich die Güteklasse S355.
Bei der Sanierung 2005 wurden am Bestandstragwerk folgende Maßnahmen ausgeführt:
• Verbreiterung der Fahrbahnplatte um ca. 1,30 m samt räumlicher Abstützung
• Untergurtverstärkungen auf die gesamte Brückenlänge
• Obergurtverstärkung im Bereich von Pfeiler 8
• Einbau der außenliegenden Konsolen
• Ca. 10 cm statisch wirksamer Aufbeton auf die bestehende Betonplatte
• Erneuerung der Abdichtung, Randbalken und Belag
…
5.4.2 Erhaltungszustand Bestandstragwerk
Bei den laufenden Brückenüberprüfungen wurde für das bestehende Brückenobjekt L43 Steinbrückenbachbrücke ein schlechter Erhaltungszustand festgestellt und der Gesamtzustand mit Zustandsnote 5 ermittelt. Die schlechte Beurteilung betrifft hauptsächlich den Überbau und die Lager. Die wesentlichen Mängel sind:
• Betonmängel an Pfeilerköpfen und Lagersockel
• Abgenützte Lager
• Pfeilerquerscheiben durch Einbau der Gurtverstärkungen geschädigt
• Mangelhafter Anschluss des unteren Windverbandes an die Hauptträger
• Bindebleche bei den Schmetterlingsprofilen der ausgeführten Tragwerksverbreiterungen mangelhaft
• Mangelhafter Anschluss der Querverbände an die Hauptträger
• Hauptträger – brechende Schrauben bei den Stößen
• Mangelhaft ausgeführte Verstärkung der Stöße im Zuge der Sanierung 2005
• Stöße der Verstärkungslamellen mangelhaft ausgeführt
• Konsolen – Exzentrizitäten, teilweise falsche Lage, fehlende Steifen
• Teilweise Mängel an der Fahrbahnplatte
Da die wesentlichen Mängel großteils nicht behoben werden können, hat der Auftraggeber entschieden, die Brückentragwerke abzutragen und neu zu errichten. Der Brückenprüfbericht und diverse Mängelfeststellungen liegen beim Auftraggeber zur Einsicht auf.
5.4.3 Vorgeschlagenes Abbruchkonzept zum Abtrag Bestandstragwerk
Aufgrund der Unzugänglichkeit des Geländes im Bereich des Brückenobjektes und der fehlenden Zufahrtsmöglichkeiten über das untergeordnete Straßennetz wird eine Abbruchmethode vorgeschlagen, bei der sämtliche Arbeiten vom Tragwerk selbst aus mit Unterstützung eines obenliegenden Rüstträgers erfolgen.
In einem ersten Schritt wird die obenliegende Brückenausrüstung wie Geländer und Fahrbahnrückhaltesysteme abgebaut. Anschließend erfolgt der Abtrag der Randleisten und des Fahrbahnbelages. Sämtliche Abtragsarbeiten erfolgen linear vom Widerlager Gmünd Richtung Widerlager Spittal und einem Abtransport der abgebrochenen Bauteile Richtung Spittal.
Nachdem das Brückentragwerk bis auf die Fahrbahnplatte freigelegt wurde, erfolgt der eigentliche Rückbau des Brückenobjektes mittels einer oben liegenden Vorschubrüstung. Die Vorschubrüstung hat eine Gesamtlänge von zumindest 2 Brückenfeldern. Damit ergibt sich eine Rüstträgerlänge von mehr als 140 m. Der Rüstträger wird 3Mal, jeweils im Bereich der Pfeiler bzw. Widerlager abgestützt, sodass sich ein 2-Feld-Rüstträger mit einer maximalen Spannweite von ca. 70 m ergibt. Für die Abstützungen sind vorab temporäre Konsolkonstruktionen anzubringen und die Fahrbahnplatte im Kragarmbereich der jeweiligen Stütze abzutragen. Auf diesen seitlich der Brückenpfeiler errichteten Konsolen kann der Rüstträger bzw. die Vorschubrüstung auflagern. An den Rüstträgern selbst sind fahrbare Portalkräne vorzusehen. Folgender Arbeitsablauf für den Rückbau des Bestandstragwerkes wird vorgeschlagen:
• Abtrag der Kragplatten beidseitig durch Schneiden in Längs- und Querrichtung, Ausheben der Kragplattenabschnitte und Abtransport mittels geeigneter Fahrzeuge über das noch bestehende Brückentragwerk Richtung Spittal
• Sichern des verbleibenden Brückenquerschnittes mittels temporärer Aufhängungen am oben liegenden Rüstträger
• Schneiden und Ausheben der Fahrbahnplatte zwischen den Hauptträgern im verbundlosen Bereich neben den Stützen (ca. 17,50 m beidseitig der Stützen) und Abtransport auf geeigneten Fahrzeugen Richtung Spittal. Beim Abtrag der Fahrbahnplatte bzw. des gesamten Verbundquerschnittes ist jedenfalls zu berücksichtigen, dass die Fahrbahnplatte im verbundlosen Bereich über den Stützen am Obergurt nur aufliegt und im Feldbereich die Fahrbahnplatte mit dem Stahlträger mittels Kopfbolzen verbunden ist.
Zu beachten ist, dass der Längstransport von abgebrochenen Bauteilen in bereits teilabgebrochenen Feldern nur über die Rüstträger erfolgen darf.
Abbildung 11: Stoßausbildung der Stahlhauptträger – Schraubstoß mit Laschen für Steg, Unter- u. Obergurt
• Durchtrennen der Schraubstöße der Stahlkonstruktion und Ausheben von ca. 12 m langen Abschnitten, Abtransport Richtung Villach. Es wird hier auf die Bestandspläne des bestehenden Tragwerkes verwiesen.
• Auf den erkundeten Asbest in Faserzementplatten im Nahbereich der Obergurte der Hauptträger und in der vorhandenen Beschichtung wird besonders hingewiesen. Dies ist im Abtragskonzept mit den hierfür erforderlichen Schutzmaßnahmen entsprechend zu berücksichtigen.
Abbildung 12: Ablauf Abbruch
Nach Abtrag eines Brückenfeldes bis zur nächsten Stütze erfolgt das Umsetzen der Vorschubrüstung um ein Feld und der Abbruchablauf wiederholt sich.
Nachdem der Brückenschuss im Bereich des Pfeilers ausgehoben und abtransportiert wurde, erfolgt ein Umbau der Abstützung in dieser Pfeilerachse von 2 außenliegenden Stützen auf eine Mittelstütze auf den bestehenden Pfeilerkopf. Nach Anbringen von Gerüsten am Bestandspfeiler werden die Lagersockel abgeschremmt. Der Pfeilerkopf selbst wird bis zur vorgegebenen Abtragstiefe mittels HDW abgetragen, wobei die Bewehrung jedenfalls zu erhalten ist. Nach dem Abtrag wird der Pfeilerkopf neu hergestellt. Nach der Fertigstellung des Pfeilerkopfes wird der Rüstträger um 1 Feld verschoben. Sämtliche Zu- und Abtransporte für die Erneuerung des Pfeilerkopfes erfolgt ausschließlich über den Rüstträger.
Ebenso ist die teils zeitgleich erforderliche Gründungsertüchtigung mit Andienung über den Rüstträger für die Pfeiler 1, 2, 3 und 4 bzw. im Falle des Verbundes auch bei Pfeiler 7 und 8 vorgesehen.
Ertüchtigung Pfeiler 5 und Pfeiler 6:
Bereits mit dem Abbruch des Brückentragwerkes sind der Pfeiler 5 und der Pfeiler 6 zu ertüchtigen. Aufgrund der fehlenden Zufahrtsmöglichkeit ist sämtlicher Zu- und Abtransport von Material und Maschinen über das Bestandstragwerk unter Nutzung des Rüstträgers vorgesehen. Entweder erfolgt sämtlicher Transport über die am Rüstträger angebrachten Portalkräne oder es ist eine temporäre Rampe zum Erreichen des Hochplateaus vorzusehen. Die erforderlichen Bauarbeiten für die Gründungsertüchtigung bzw. Erneuerung des Pfeilerschaftes ist zeitgleich mit dem Brückenrückbau zwischen den Pfeilern 5 und 7 vorgesehen. Mit dem Rüstträger in der Stellung vom Pfeiler 6 bis Pfeiler 8 kann nach Abtrag des Brückentragwerkes zwischen Pfeiler 6 und Pfeiler 7 sämtliche Gerätschaft wieder abtransportiert werden.
Für die Abstützung des Rüstträgers bei den Pfeilern 5 6 ist eine, auf die erforderlichen Umbau- und Ertüchtigungsarbeiten für Fundierung und Pfeilerschaft abgestimmte, Auflagerkonstruktion erforderlich.
Für den Pfeiler 5 ist eine Ertüchtigung der Fundierung durch Ausführung zusätzlicher Gründungselemente bis zum kompakten Felsen erforderlich. Anschließend wird die neue Rostplatte und der Pfeilerschaft hergestellt.
Beim Pfeiler 6 erfolgt eine Verstärkung der Gründung durch Ausführung von Mikropfählen, die direkt unter dem Pfeilerschaft eingebracht werden.
Anschließend erfolgt der Tragwerksrückbau zwischen Pfeiler 7 und Widerlager 9.
…
Für die Neuerrichtung des Brückentragwerkes L43 Steinbrückenbachbrücke wird ein parallelgurtiger Freivorbau mit einem obenliegenden Rüst- bzw. Stabilisierungsträger vorgeschlagen. Um die vorgegebene Bauzeit einzuhalten werden 2 Rüstträger parallel eingesetzt. Bei dem hier vorliegenden Ausschreibungsprojekt wird auch der Rüstträger 2 analog dem bereits für den Abbruch vorgesehenen Rüstträger mit einer Gesamtlänge von 140 m festgelegt. Die Abstützung erfolgt wiederum jeweils in den Widerlager- bzw. Pfeilerachsen. Folgende Aufgaben sind von den Rüstträgern für den Neubau des Brückenobjektes zu erbringen:
• Herstellen des Hammerkopfes über den Pfeilern
• Abhängung der Schalung und Rüstung für den Freivorbau
• Stabilisierung des Waagbalkens und Aufnahme der vertikalen Differenzlasten
• Stabilisierung des Waagbalkens bis zum Schließen mit dem vorherigen Freivorbau in Querrichtung
• Materialtransport für die Herstellung der Betonierabschnitte
• Gewährleistung der Zugänglichkeit für Eigen- und Fremdpersonal
Vom AN ist unter Einhaltung der Vorgaben des Ausschreibungsprojektes ein detailliertes Ablaufkonzept zu erstellen und mit dem AG bzw. dessen Planern abzustimmen. Eine detaillierte statische Berechnung ist von einem hierzu befugten Ziviltechniker für sämtliche Bauzustände des Rüstträgers, der Weiterleitung der Auflagerkräfte in die bestehende Konstruktion sowie für alle Schalungen, Arbeits- und Schutzgerüste in Zusammenhang mit der Herstellung des Brückenobjektes im Freivorbau durch den AN zu erstellt.
…
Aufgrund der sehr schwierigen und kaum zugänglichen Geländesituation wird sowohl der Brückenrückbau als auch der Brückenneubau mit Unterstützung einer oben liegenden Vorschubrüstung/Rüstträger vorgeschlagen. Das ausgeschriebene Abtrags- und Neubaukonzept sieht dabei einen Rüstträger vor, der über zwei Felder des Brückentragwerkes aufgebaut und mit 3 Abstützungen versehen ist.
Abbildung 21: Allgemeines Abtrags-/Neubaukonzept mittels Vorschubrüstung – Rüstträger
9.2 RÜCKBAU BESTEHENDES BRÜCKENTRAGWERK
Für den Rückbau bzw. Abtrag des bestehenden Verbundtragwerkes sind folgende Vorgaben zu beachten.
• Der Rüstträger hat 2 Felder zu überspannen und stützt sich jeweils an den bestehenden Pfeilern ab. Damit ergibt sich einer Rüstträgerlänge von ca. 145 - 150 m mit 3 Abstützungen im Abtragsfall.
• Zur Abstützung des Rüstträgers sind vorab bei den Pfeilern Auflagerkonsolen anzubringen. Die Verankerung am bestehenden Pfeiler hat unter Berücksichtigung des eher gering bewehrten Pfeilerkopfes und des dünnwandigen Pfeilerschaftes zu erfolgen.
• Die Abstützungen des Rüstträgers erfolgt seitlich der Stahlhauptträger
• Am Rüstträger sind Portalkräne vorzusehen, die die erforderlichen Hubarbeiten und
Materialtransportarbeiten im Abbruchfeld durchführen
• Das teilabgebrochene Brückenfeld ist vom Rüstträger zu stützen, damit der weitere Brückenabtrag ausgeführt werden kann. Das Gewicht des bestehenden Brückentragwerkes (Fahrbahnplatte und Stahltragwerk - Gesamtquerschnitt) beträgt ca. 15 t/m (± 10%).
• Das Gewicht der Fahrbahnplatte beträgt ca. 12,5 t/m (± 10%). die Stahlkonstruktion hat ein Gewicht von ca. 2,5 t/m i.M. Im Bereich der Stützen treten höhere Gewichte als in den Feldern auf. Dies sind keine
Abrechnungsmassen sondern lediglich Lastangeben für die Abbruchstatik Es wird auch auf den Plan „Stahlmassen Bestandstragwerk“ verwiesen.
• Umbau der rückwertigen Abstützung von 2 außen liegenden Stützen auf eine Mittelabstützung am Pfeilerkopf. Auf eine ausreichende Lastverteilung der Abstützung am Pfeilerkopf ist zu achten.
• Ausführung sämtlicher Transport- und Hebearbeiten für den Abtrag und Neubau des Pfeilerkopfes
• Ausführung sämtlicher Transport- und Hebearbeiten für die Fundierungsertüchtigung der jeweiligen Pfeilerfundierung
9.3 NEUBAU BRÜCKENTRAGWERK – SPANNBETONTRAGWERK FREIVORBAU
Der Brückenneubau erfolgt ebenfalls mit Unterstützung von obenliegenden Rüstträgern. Das Brückentragwerk wird als parallelgurtiger Freivorbau im Waagbalkenverfahren hergestellt.
Abbildung 22: Neubau mit Rüstträger
• Der Rüstträger hat 2 Felder zu überspannen und stützt sich jeweils an den bestehenden mit einem neuem Pfeilerkopf versehenen Pfeilern bzw. über das Tragwerk ab.
• Für die Herstellung des Hammerkopfes wird der Rüstträger mit einer Mittelstütze am Pfeilerkopf aufgelagert.
• Nach Herstellung des Hammerkopfes Umbau der Abstützung der mittleren Stütze des Rüstträgers auf zwei am Tragwerk über den Stegen aufsitzenden Stützen
• Herstellen der Freivorbautakte, wobei die Vorschubrüstung bzw. der stabilisierende Rüstträger das Gewicht der Schalung/Rüstung bzw. das Frischbetongewicht als auch die normgemäßen Differenzlasten aufzunehmen hat. Beidseitig am Waagbalken ist eine Drückabstützung des Tragwerkes vorzusehen. Eine Ableitung von Differenzlasten über die Bestandspfeiler ist nicht möglich.
• Die Zugänglichkeit zum Betonierabschnitt bzw. der Materialtransport erfolgt über den Rüstträger
• Der Brückenquerschnitt hat im Feldbereich eine Fläche von ca. 13,1 m2 und ein Gewicht von ca. 328 KN/m, im Stützbereich beträgt die Querschnittsfläche ca. 16,5 m2 und das Gewicht ca. 412 kN/m.
Sowohl für den Abtrag als auch für den Neubau sind die für die Rüstträger erforderlichen statischen Berechnung für sämtliche Bauzustände und die Lastableitungen vom AN zu erbringen. Insbesondere sind auch die Lasten in Brückenquerrichtung aus Wind zu berücksichtigen
9.4 NEUBAU BRÜCKENTRAGWERK – VERBUND
Der Brückenneubau erfolgt ebenfalls mit Unterstützung von obenliegenden Rüstträgern.
Abbildung 23: Neubau mit Rüstträger
• Der Rüstträger hat 2 Felder zu überspannen und stützt sich jeweils an den bestehenden mit einem neuem Pfeilerkopf versehenen Pfeilern bzw. über das Tragwerk ab.
• Der Einschub des Tragwerkes erfolgt von WL 0. Der erste Abschnitt wird auf die vorher Montierte Rüstträger im WL-Bereich sowie im 1. Feld aufgehängt und danach eingeschoben. Die Stahlträger werden auf den definitiven Lagerachsen aufgelagert. Daran anschließend werden die Rüstträger in die Felder 1 und 2 umgesetzt.
• Für die Felder 1 bis 9 werden die zusammengebauten TW-Abschnitte über die schon fertigmontierten Stahlträger mit Hilfe einer Hilfskonstruktion (inkl. Panzerrollen) bis zum Rüstträger eingeschoben. Danach erfolgt der Einschub der Abschnitte mit Hilfe der Rüstträger. Abschließend erfolgt der Zusammenschluss der beiden Abschnitten mittels eines Montagestoßes und das Tragwerk wird auf seinen definitiven Brückenlagern aufgelagert.
Sowohl für den Abtrag als auch für den Neubau sind die für die Rüstträger erforderlichen statischen Berechnung für sämtliche Bauzustände und die Lastableitungen vom AN zu erbringen. Insbesondere sind auch die Lasten in Brückenquerrichtung aus Wind zu berücksichtigen.
…
Die projektspezifischen Einschränkungen für Alternativangebote sind in Pos 00B108A Teil B.5 der Ausschreibungsunterlagen geregelt und lauten wie folgt:
00B108A Einschränkungen/Mindestanforderungen Alternativangebote
Projektspezifische Einschränkungen für Alternativangebote:
Alternativen betreffend der Tragwerksertüchtigung 4+0 der RFB Salzburg sind unzulässig.
Die straßenbaulichen Anlageverhältnisse im Endzustand inkl. der Entwässerung sind beizubehalten.
Die Pfeilerstandorte sind zwingend beizubehalten.
Beide Tragwerke müssen die gleiche Konstruktionsart und Lagerungsbedingungen sowie gleiche Außenabmessungen aufweisen.
Es sind getrennte Tragwerke für die beiden Richtungsfahrbahnen vorzusehen.
Querschnitte mit einem zentralen Hohlkasten müssen eine durchgängige Begehbarkeit aufweisen.
Aufgelöste Querschnitte müssen für die Inspizierbarkeit der Mittelplatte einen durchgängigen Inspektionssteg aufweisen.
Der Fahrbahnaufbau und die Ausführung der Randbalken sowie die darauf befindlichen Teile der Brückenausrüstung sind gemäß Planungshandbuch des Auftraggebers auszuführen.
Eine Mindesthöhe unter der Brücke beim Hochplateau zwischen GOK und Brückenunterkante von 2,0 m ist zwecks Inspizierbarkeit einzuhalten.
Änderungen im Bauverfahren für Abtrag und Neubau sind nur mit vollständiger Statik der betroffenen Hauptbauteile zulässig. Die dafür zu berücksichtigenden Lastannahmen sind im der Ausschreibung beiliegenden technischen Bericht enthalten. Dies gilt insbesondere auch für maximale Lasteinträge und Verformung im Bau und Endzustand in den verbleibenden Unterbau (Pfeiler und Gründungen).
Ein unkontrollierter Abbruch (z.B. Sprengung oder freier Abtrag in das Gelände) ist unzulässig.
Eine statische Überbeanspruchung des verbleibenden Bestandes (Pfeiler, Gründungen) durch das gewählte Bauverfahren ist unzulässig.
Das jeweils unter Verkehr stehende Tragwerk darf durch den AN nicht für Abtrags- und Neubautätigkeiten beansprucht werden.
Es darf zu keinen höheren Verkehrseinschränkungen in den einzelnen Bauphasen kommen, als in den Verkehrsführungsplänen und der Ausschreibung festgelegt.
Schwebende Lasten dürfen nicht über das unter Verkehr stehende Tragwerk geschwenkt werden.
Alternativen in Segmentbauweise (Fertigteile) sind nicht zulässig.
Alternativen mit einer Dammbauweise im Bereich des Hochplateaus sind nicht zulässig.
Das Führen des Autobahnverkehrs auf Behelfsbrücken ist nicht zulässig.“
Das Leistungsverzeichnis B.5 lautet:
„310321B
Die Errichtung des Tragwerkes erfolgt mit Anwendung des Sonderverfahrens: Freivorbau mit obenliegenden Rüstträger (Vorschubrüstung) - oder gemäß Konzept AN - RFB Villach.
…
061038
Planung und statische Berechnung für den Abbruch des bestehenden Brückentragwerkes durch einen befugten Ziviltechniker samt allen erforderlichen Zwischenabtragszuständen, den erforderlichen Hebeeinrichtungen, den Abstützungen, für die ausgeschriebene Abtragsmethode bzw. für ein allenfalls alternatives Abtragskonzept des AN“
1.3. Die Auftraggeberin öffnete am 11. Mai 2022 ohne Anwesenheit von Vertretern von Bietern die Angebote.
1.4. Die Ausschreibungsunterlagen wurden nicht angefochten und daher bestandsfest
1.5. Die präsumtive Zuschlagsempfängerin hat ein als Hauptangebot bezeichnetes Angebot und kein Alternativangebot abgegeben, welches ein Angebotsschreiben, ein Leistungsverzeichnis, diverse Verpflichtungserklärungen, einen Vadiumsnachweis, ein Preisblatt, das Deklarationsblatt für Alternativangebote und statistische Informationen sowie alle sonstigen geforderten Unterlagen enthält.
1.6. Die Antragstellerin hat ein als Hauptangebot bezeichnetes und ein als Alternativangebot bezeichnetes Angebot abgegeben, welches ein Angebotsschreiben, ein Leistungsverzeichnis, einen Vadiumsnachweis, ein Preisblatt, das Deklarationsblatt für Alternativangebote und statistische Informationen sowie alle sonstigen geforderten Unterlagen enthält.
1.7. Am 01. Juli 2022 teilte die Auftraggeberin allen Bietern die Entscheidung mit, dass die Zuschlagsentscheidung mit der präsumtiven Zuschlagsempfängerin abgeschlossen werden soll (Angaben der Auftraggeberin; Auswahlentscheidung in den Unterlagen des Vergabeverfahrens).
1.8. Die Auftraggeberin hat die von der präsumtiven Zuschlagsempfängerin angegebenen Preise einer umfassenden Prüfung unterzogen und iSd § 137 Abs 3 BVergG 2018 eine vertiefte Preisprüfung vorgenommen (siehe Beilagen zum Vergabebericht).
1.9. Im Zuge der von der Auftraggeberin durchgeführten vertieften Preisprüfung wurden sämtliche Detailkosten aus betriebswirtschaftlicher Sicht geprüft. Diese vertiefte Preisprüfung hat ergeben, dass ein nicht-kostendeckendes oder unterpreisiges Angebot der präsumtiven Zuschlagsempfängerin ausgeschlossen werden kann und ein iSd § 20 Abs 1 BVergG 2018 angemessener Preis angeboten wurde.
1.10. Die präsumtive Zuschlagsempfängerin hat dem als Hauptangebot bezeichneten Angebot ein alternatives Abtragskonzept zu Grunde gelegt. Die präsumtive Zuschlagsempfängerin hat im gegenständlichen Vergabeverfahren entgegen der Ansicht der Auftraggeberin kein ausschreibungskonformes, der Baubeschreibung entsprechendes Hauptangebot gelegt. Beim als Hauptangebot bezeichneten Angebot der präsumtiven Zuschlagsempfängerin handelt es sich inhaltlich um ein Alternativangebot. Da die präsumtive Zuschlagsempfängerin kein Hauptangebot, sondern lediglich ein Alternativangebot gelegt hat, wäre dieses auszuscheiden gewesen und ist aus diesem Grund die Zuschlagserteilung für nichtig zu erklären.
1.11. Die Auftraggeberin hat das Vergabeverfahren nicht widerrufen.
1.12. Die Antragstellerin bezahlte Pauschalgebühren in der Höhe von 9.723,00 €.
2. Beweiswürdigung:
2.1. Der festgestellte Sachverhalt ergibt sich (mit Ausnahme der rechtlichen Schlüsse in Punkt 1.10.) unstrittig aus dem Vergabeakt und der hg. durchgeführten mündlichen Verhandlung. Zudem ergibt sich der Sachverhalt schlüssig aus den jeweils in Klammern genannten Quellen. Diese sind Veröffentlichungen und die Unterlagen des Vergabeverfahrens, sowie Auskünfte, die nur die Auftraggeberin erteilen kann. Auskünfte und Unterlagen des Antragstellers betreffen ebenso ausschließlich mit der Auftraggeberin gemeinsame Dokumente. Die Echtheit und Richtigkeit von in den Schriftsätzen herangezogenen Unterlagen hat keine der Verfahrensparteien bestritten. Die herangezogenen Beweismittel sind daher echt. Ihre inhaltliche Richtigkeit steht außer Zweifel. Auch traten sonst keine Widersprüche auf.
2.2. Eingeschränkt ist die Darstellung des entscheidungsrelevanten Sachverhalts durch jene Tatsachen, die als Betriebs- und Geschäftsgeheimnisse anzusehen sind. Dabei handelt es sich um Tatsachen und Erkenntnisse kommerzieller oder technischer Art, die bloß einer bestimmten und begrenzten Zahl von Personen bekannt sind, nicht über diesen Kreis hinausdringen sollen und an deren Geheimhaltung ein wirtschaftliches Interesse besteht (VwGH 3. 5. 2021, Ra 2021/03/0002, Rn 25; OGH 20. 5. 2014, 4 Ob 55/14p). Es handelt sich damit um schutzwürdige Angaben, an denen ein Geheimhaltungsinteresse besteht (VwGH 9. 4. 2013, 2011/04/0207). Der Schutz von Betriebs- und Geschäftsgeheimnissen ist ein allgemeiner Grundsatz (EuGH 14. 2. 2008, C-450/06, Varec, ECLI:EU:C:2008:91, Slg 2008, I-581, Rn 49). § 337 BVergG 2018 räumt den Parteien des Nachprüfungsverfahrens die Möglichkeit ein, bei der Vorlage von Unterlagen zu verlangen, diese vertraulich zu behandeln. § 27 Abs 1 BVergG 2018 verpflichtet die am Vergabeverfahren Beteiligten zur vertraulichen Behandlung von als solchen bezeichneten Unterlagen. Diese Bestimmung ist allerdings für das Nachprüfungsverfahren nicht von Bedeutung (VwGH 30. 1. 2019, Ra 2018/04/0001, 0002). Vielmehr richtet sich der Schutz der Vertraulichkeit im Nachprüfungsverfahren nach § 17 Abs 3 AVG iVm § 333 BVergG 2018 (VwGH 22. 5. 2012, 2009/04/0187; 9. 4. 2013, 2011/04/0207), wobei die Bezeichnung der vertraulich zu behandelnden Unterlagen sich nach § 337 BVergG 2018 richtet und bei der Vorlage der Unterlagen erfolgen muss. § 337 entspricht inhaltlich § 21 Abs 2 erster Satz VwGVG (BVwG 2. 12. 2016, W187 2137295-2/36E; Reisner in Schramm/Aicher/Fruhmann [Hrsg], Kommentar zum Bundesvergabegesetz 2006 [5. Lfg 2015] zu § 314 Rz 1), wobei der Auftraggeber und alle anderen am Vergabeverfahren Beteiligten wohl auch alle jene Unterlagen gemäß § 337 BVergG 2018 nennen werden, die der vertraulichen Behandlung im Vergabeverfahren gemäß § 27 BVergG 2018 unterliegen. Mitr dieser Bestimmung hat der Gesetzgeber im vergaberechtlichen Nachprüfungsverfahren die Voraussetzungen für die „Interessenabwägung zwischen näher genannten privaten und öffentlichen Interessen mit dem Interesse auf Akteneinsicht“ näher konkretisiert (VfGH 23. 6. 2020, E 706-707/2020, VfSlg 20.387). Dass dadurch ein Konflikt zwischen der Gewährleistung eines fairen Verfahrens und dem Schutz von Betriebs- und Geschäftsgeheimnissen entstehen kann, liegt auf der Hand (VfGH 10. 10. 2019, E 1025/2018, VfSlg 20.345). Die abschließende Beurteilung, welche Unterlagen vertraulich zu behandeln sind, obliegt dem Bundesverwaltungsgericht (EuGH 7. 9. 2021, C-927/19, Klaipėdos regiono atliekų tvarkymo centras, ECLI:EU:C:2021:700, Rn 133; zu § 21 Abs 2 VwGVG siehe VfGH 2. 7. 2015, G 240/2014; Reisner in Götzl/Gruber/Reisner/Winkler, Das neue Verfahrensrecht der Verwaltungsgerichte² [2017], § 21 VwGVG Rz 15 und 22 f). Die vertrauliche Behandlung von Unterlagen und Informationen bedingt auch, dass sie nicht in die Feststellungen des Erkenntnisses aufgenommen werden können (BVwG 22. 12. 2016, W187 2134620-2/53E; 3. 8. 2020, W187 2230981-2/53E).
2.3. Welche Informationen dem Schutz von Betriebs- und Geschäftsgeheimnissen unterliegen, ist jeweils im Einzelfall zu beurteilen. Dabei ist eine Interessenabwägung vorzunehmen (VwGH 18. 8. 2017, Ra 2017/04/0022, 0023, Rz 25 f). § 17 Abs 3 AVG schützt Betriebs- und Geschäftsgeheimnisse (BVwG 22. 12. 2016, W187 2134620-2/53E; Hanslik, Parteiengehör und Geheimnisschutz im Verwaltungsverfahren [2013], 106) und ist dabei im Licht von – nun – Art 47 und Art 7 GRC, die Art 6 und Art 8 EMRK entsprechen, auszulegen (VwGH 9. 4. 2013, 2011/04/0207). Weder das Recht auf ein faires Verfahren noch das Recht auf den Schutz von betriebs- und Geschäftsgeheimnissen vermögen eine absolut geschützte Rechtsposition zu begründen (VfGH 23. 6. 2020, E 706-707/2020, VfSlg 20.387). Es kann zur Wahrung der Grundrechte eines Dritten oder zum Schutz wichtiger Interessen der Allgemeinheit erforderlich sein, den Parteien bestimmte Informationen vorzuenthalten (EuGH 7. 9. 2021, C-927/19, Klaipėdos regiono atliekų tvarkymo centras, ECLI:EU:C:2021:700, Rn 131). Dabei sind diese beiden Grundrechte gegeneinander abzuwägen, um einerseits ein faires Verfahren zu gewährleisten und andererseits schützenswerte Informationen nicht offenzulegen (EuGH 14. 2. 2008, C-450/06, Varec, ECLI:EU:C:2008:91, Slg 2008, I-581, Rn 51; VwGH 22. 5. 2012, 2009/04/0187; 9. 4. 2013, 2011/04/0207). Nach dem Modell des EuGH kann das Gericht in alle Informationen einsehen und dann entscheiden, welche Tatsachen es geschwärzt oder ungeschwärzt in seinen Akt nimmt und damit den Parteien des Nachprüfungsverfahrens zugänglich macht (SA GA Eleanor Sharpston 25. 10. 2007, C-450/06, Varec, Rn 51). Bei der Entscheidung muss das Bundesverwaltungsgericht den Verfahrensparteien vorenthaltene Informationen auf das unbedingt notwendige Ausmaß beschränken und alle Möglichkeiten ausschöpfen, die Entscheidungsgrundlagen so zu begrenzen, dass vorzuenthaltende Informationen zur Entscheidungsfindung nicht herangezogen werden müssen (VfGH 10. 10. 2019, E 1025/2018, VfSlg 20.345).
2.4. Aus den oben genannten Ausführungen ergibt sich, dass die Inhalte der Angebote und der Prüfung der Angebote als vertraulich zu behandeln sind, weil darin eine Reihe von technischen und kalkulatorischen Details enthalten sind, die sowohl die technischen Möglichkeiten der Bieter, ihre Arbeitsabläufe, die Namen bei ihnen beschäftigter Personen als auch die Preisgestaltung betreffen. Eine Wiedergabe dieser Informationen ist daher auf ein Minimum zu beschränken und kann nur summarisch erfolgen, soweit sie für die Feststellung des entscheidungserheblichen Sachverhalts notwendig sind. Dem steht auch der Umstand nicht entgegen, dass das BVwG die Möglichkeit der vollen Einsicht in alle Unterlagen genießt, jedoch selbst entscheidet, welche dieser Unterlagen und Informationen in das Verfahren einbezogen und den Verfahrensparteien gegenüber offengelegt werden. Daraus ergibt sich, dass die Inhalte der Angebote, insbesondere der Arbeitsabläufe, Lieferanten von Maschinen und Verbrauchsstoffen und die Kalkulation sowie die detaillierten Inhalte der Prüfung der Angebote nur summarisch wiedergegeben und insbesondere die Details der Erörterung der Inhalte der Angebote nicht in die Feststellungen dieses Erkenntnisses aufgenommen werden können. Festzuhalten ist dabei jedoch auch, dass die Auftraggeberin ihre Verpflichtung zur vertraulichen Behandlung von Angaben anderer Bieter gemäß § 27 Abs 1 BVergG 2018 vollständig nachgekommen ist. Die herangezogenen Beweismittel sind daher echt. Ihre inhaltliche Richtigkeit steht außer Zweifel. Widersprüche traten nicht auf.
2.5. In casu wird festgehalten und erga omnes offengelegt, dass das als Hauptangebot bezeichnete Angebot der prZE ein Abtragungskonzept beinhaltet, das eine starke Abweichung von den in den Dokumenten B.2 Baubeschreibung sowie dem Sicherheits- und Gesundheitsschutzplan und auch dem Leistungsverzeichnis B.5 aufweist. Ferner ergaben sich auch hinsichtlich des Neubaues Abweichungen von den Vorgaben in der Baubeschreibung, die die fallgegenständliche Nichtigerklärung zusätzlich stützen. Dahingehende nähere Konkretisierungen könnten die Interessen der prZE zumindest stärker berühren und werden aus diesem Grunde nicht offengelegt und wurden in den hg. Senatsberatungsprotokollen ausführlich festgehalten.
3. Rechtliche Beurteilung:
3.1 Anzuwendendes Recht
3.1.1 Die maßgeblichen Bestimmungen des Bundesverwaltungsgerichtsgesetzes – BVwGG, BGBl I 2013/10 idF BGBl I 2021/87, lauten:
„Einzelrichter
§ 6. Das Bundesverwaltungsgericht entscheidet durch Einzelrichter, sofern nicht in Bundes- oder Landesgesetzen die Entscheidung durch Senate vorgesehen ist.“
3.1.2 Die maßgeblichen Bestimmungen des Verwaltungsgerichtsverfahrensgesetzes – VwGVG, BGBl I 2013/33 idF BGBl I 2021/109, lauten:
„Anwendungsbereich
§ 1. Dieses Bundesgesetz regelt das Verfahren der Verwaltungsgerichte mit Ausnahme des Bundesfinanzgerichtes.
…
Erkenntnisse
§ 28. (1) Sofern die Beschwerde nicht zurückzuweisen oder das Verfahren einzustellen ist, hat das Verwaltungsgericht die Rechtssache durch Erkenntnis zu erledigen.
(2) Über Beschwerden gemäß Art. 130 Abs. 1 Z 1 B-VG hat das Verwaltungsgericht dann in der Sache selbst zu entscheiden, wenn 1. der maßgebliche Sachverhalt feststeht oder 2. die Feststellung des maßgeblichen Sachverhalts durch das Verwaltungsgericht selbst im Interesse der Raschheit gelegen oder mit einer erheblichen Kostenersparnis verbunden ist.
(3) …“
3.1.3 Die maßgeblichen Bestimmungen des Bundesgesetzes über die Vergabe von Aufträgen (Bundesvergabegesetz 2018 – BVergG 2018), BGBl I 2018/65 idF BGBl I 2019/91, lauten:
Bauaufträge
§ 5. Bauaufträge sind entgeltliche Verträge, die einen der folgenden Vertragsgegenstände haben:
1. die Ausführung oder die gleichzeitige Ausführung und Planung von Bauleistungen im Zusammenhang mit einer der in Anhang I genannten Tätigkeiten oder
2. die Ausführung oder die gleichzeitige Ausführung und Planung eines Bauvorhabens oder
3. die Erbringung einer Bauleistung durch Dritte gemäß den vom öffentlichen Auftraggeber genannten Erfordernissen, gleichgültig mit welchen Mitteln die Erbringung erfolgt, sofern der öffentliche Auftraggeber einen entscheidenden Einfluss auf die Art und die Planung des Vorhabens hat.
…
Schwellenwerte
§ 12. (1) Verfahren von öffentlichen Auftraggebern zur Vergabe von Aufträgen erfolgen im Oberschwellenbereich, wenn der geschätzte Auftragswert 1. … 2. … 3. … 4. bei Bauaufträgen mindestens 5 548 000 Euro (Anm. 3) beträgt
Grundsätze des Vergabeverfahrens
§ 20. (1) Vergabeverfahren sind nach einem in diesem Bundesgesetz vorgesehenen Verfahren, unter Beachtung der unionsrechtlichen Grundsätze wie insbesondere der Gleichbehandlung aller Bewerber und Bieter, der Nichtdiskriminierung, der Verhältnismäßigkeit, der Transparenz sowie des freien und lauteren Wettbewerbes und unter Wahrung des Grundsatzes der Wirtschaftlichkeit durchzuführen. Die Vergabe hat an befugte, leistungsfähige und zuverlässige (geeignete) Unternehmer zu angemessenen Preisen zu erfolgen.
(2) …
Alternativ- und Variantenangebote
§ 96.
(1) Der öffentliche Auftraggeber kann Alternativangebote zulassen. Der öffentliche Auftraggeber hat in der Ausschreibung ausdrücklich anzugeben, ob und welche Art von Alternativangeboten zugelassen sind. Falls der öffentliche Auftraggeber keine Angabe über die Zulässigkeit von Alternativangeboten gemacht hat, so sind Alternativangebote nicht zugelassen.
(2) Der öffentliche Auftraggeber hat in der Ausschreibung die Mindestanforderungen, die Alternativangebote im Hinblick auf ihre Vergleichbarkeit mit der ausgeschriebenen Leistung erfüllen müssen, zu erläutern. Ist die Abgabe von Alternativangeboten zulässig, so sind, sofern der öffentliche Auftraggeber nicht ausdrücklich anderes festgelegt hat, Alternativangebote nur neben einem ausschreibungsgemäßen Angebot zulässig. Die Zuschlagskriterien sind so festzulegen, dass sie sowohl auf die ausschreibungsgemäßen Angebote als auch auf die Alternativangebote angewandt werden können. Der öffentliche Auftraggeber darf nur jene Alternativangebote im Vergabeverfahren berücksichtigen, die die festgelegten Mindestanforderungen erfüllen.
(3) Ein öffentlicher Auftraggeber, der Alternativangebote zugelassen hat, darf ein vorgelegtes Alternativangebot nicht allein deshalb ausscheiden, weil es im Fall des Zuschlages zu einem Lieferauftrag statt eines Dienstleistungsauftrages oder zu einem Dienstleistungsauftrag statt eines Lieferauftrages führen würde.
(4) Der öffentliche Auftraggeber kann durch Ausschreibungsvarianten Variantenangebote vorschreiben. Ist die Abgabe von Variantenangeboten vorgeschrieben, so sind, sofern der öffentliche Auftraggeber nicht ausdrücklich anderes festgelegt hat, Variantenangebote stets neben einem ausschreibungsgemäßen Angebot einzureichen. Die Zuschlagskriterien sind so festzulegen, dass sie sowohl auf die ausschreibungsgemäßen Angebote als auch auf die Variantenangebote angewandt werden können.
Ablauf des offenen Verfahrens
§ 112. (1) …
(3) Während eines offenen Verfahrens darf mit den Bietern über eine Angebotsänderung nicht verhandelt werden.
(4) …
Allgemeine Bestimmungen
§ 125. (1) Der Bieter hat sich bei der Erstellung des Angebotes an die Ausschreibungsun-terlagen zu halten.
(2) …
(4) Alternativangebote haben die Mindestanforderungen zu erfüllen und die Erbringung einer gleichwertigen Leistung sicherzustellen. Die Gleichwertigkeit ist vom Bieter nachzuweisen. Alternativangebote können sich auf die Gesamtleistung, auf Teile der Leistung oder auf die wirtschaftlichen oder rechtlichen Bedingungen der Leistungserbringung beziehen. Alternativangebote sind als solche zu kennzeichnen und in einer eigenen Ausarbeitung zu übermitteln. Für jedes Alternativangebot, auch wenn es sich nur auf Teile der Gesamtleistung bezieht, ist vom Bieter je ein Gesamt-Alternativangebotspreis zu bilden.
Inhalt der Angebote
§ 127. (1) Jedes Angebot muss insbesondere enthalten:
1. …
2. Bekanntgabe aller Subunternehmer, auf deren Kapazitäten sich der Bieter zum Nach-weis seiner Eignung stützt, samt Nachweis, dass der Bieter über deren Kapazitäten tat-sächlich verfügt und der öffentliche Auftraggeber die zur Durchführung des Gesamtauftrages erforderlichen Sicherheiten über die finanzielle und wirtschaftliche Leistungsfähigkeit hat; Bekanntgabe aller Teile des Auftrages, die durch Subunternehmer ausgeführt werden sollen, oder – sofern der öffentliche Auftraggeber dies aus sachlichen Gründen in den Ausschreibungsunterlagen vorgesehen hat – nur hinsichtlich der vom öffentlichen Auftraggeber festgelegten wesentlichen Teile des Auftrages, die der Bieter im Wege von Subaufträgen an Subunternehmer zu vergeben beabsichtigt; die in Frage kommenden Subunternehmer sind bekannt zu geben; die Nennung mehrerer Subunternehmer je Leistungsteil ist zulässig; die Haftung des Auftragnehmers wird durch diese Angaben nicht berührt;
3. …
4. die Preise samt allen geforderten Aufgliederungen und den allenfalls notwendigen Erläuterungen; im Leistungsverzeichnis sind die Preise an den hierzu bestimmten Stellen einzutragen; wird für eine Position kein Preis angegeben, so ist dies im Angebot zu erläutern;
5. …
(2) Mit der Abgabe seines Angebotes erklärt der Bieter, dass er die Bestimmungen der Ausschreibung kennt, über die erforderlichen Befugnisse zur Ausführung des Auftrages verfügt, die ausgeschriebene Leistung zu diesen Bestimmungen und den von ihm angegebenen Preisen erbringt und sich bis zum Ablauf der Zuschlagsfrist an sein Angebot bindet.
…
Prüfung der Angemessenheit der Preise und vertiefte Angebotsprüfung
§ 137. (1) Die Angemessenheit der Preise ist in Bezug auf die ausgeschriebene oder alternativ angebotene Leistung und unter Berücksichtigung aller Umstände, unter denen sie zu erbringen sein wird, zu prüfen. Dabei ist von vergleichbaren Erfahrungswerten, von sonst vorliegenden Unterlagen und von den jeweils relevanten Marktverhältnissen auszugehen.
(2) Der öffentliche Auftraggeber muss Aufklärung über die Positionen des Angebotes verlangen und gemäß Abs. 3 vertieft prüfen, wenn 1. Angebote einen im Verhältnis zur Leistung ungewöhnlich niedrigen Gesamtpreis aufweisen, oder 2. Angebote zu hohe oder zu niedrige Einheitspreise in wesentlichen Positionen aufweisen, oder 3. nach der Prüfung gemäß Abs. 1 begründete Zweifel an der Angemessenheit von Preisen bestehen.
(3) Bei einer vertieften Angebotsprüfung ist zu prüfen, ob die Preise betriebswirtschaft-lich erklär- und nachvollziehbar sind. Geprüft werden kann insbesondere, ob 1. im Preis von Positionen alle direkt zuordenbaren Personal-, Material-, Geräte-, Fremd-leistungs- und Kapitalkosten enthalten sind und ob die Aufwands- und Verbrauchsan-sätze sowie die Personalkosten, diese insbesondere im Hinblick auf die dem Angebot zugrunde gelegten Kollektivverträge, nachvollziehbar sind, 2. der Einheitspreis (Pauschalpreis, Regiepreis) für höherwertige Leistungen grundsätzlich höher angeboten wurde als für geringerwertige Leistungen, und 3. die gemäß § 105 Abs. 2 geforderte oder vom Bieter gemäß § 128 Abs. 2 vorgenommene Aufgliederung der Preise oder des Gesamtpreises (insbesondere der Lohnanteile) aus der Erfahrung erklärbar ist.
…
Aufklärungen und Erörterungen
§ 139. (1) Während eines offenen oder eines nicht offenen Verfahrens sind nur Aufklärungen zum Einholen von Auskünften über die Eignung sowie von Auskünften, die zur Prüfung der Preisangemessenheit, der Erfüllung der Mindestanforderungen und der Gleichwertigkeit von Alternativ- oder Abänderungsangeboten erforderlich sind, zulässig.
(2) …
(3) Aufklärungen und Erörterungen können
1. als Gespräche in kommissioneller Form oder
2. schriftlich
durchgeführt werden. Gründe und Ergebnisse sind in der Dokumentation festzuhalten.
Ausscheiden von Angeboten
§ 141. (1) Vor der Wahl des Angebotes für die Zuschlagsentscheidung hat der öffentliche Auftraggeber aufgrund des Ergebnisses der Prüfung folgende Angebote auszuscheiden:
1. …
2. Angebote von Bietern, deren Eignung nicht gegeben ist, oder
3. Angebote, die eine – durch eine vertiefte Angebotsprüfung festgestellte – nicht plau-sible Zusammensetzung des Gesamtpreises (zB spekulative Preisgestaltung) aufweisen, oder
4. …
7. den Ausschreibungsbestimmungen widersprechende Angebote, Teil-, Alternativ-, Varianten- und Abänderungsangebote, wenn sie nicht zugelassen wurden, nicht gleichwertige Alternativ- oder Abänderungsangebote und Alternativangebote, die die Mindestanforderungen nicht erfüllen, sowie fehlerhafte oder unvollständige Angebote, wenn deren Mängel nicht behoben wurden oder nicht behebbar sind, oder
8. …
(2) Vor der Wahl des Angebotes für die Zuschlagsentscheidung kann der öffentliche Auftraggeber Angebote von Bietern ausscheiden, die es unterlassen haben, innerhalb der ihnen gestellten Frist die verlangten Aufklärungen zu geben oder deren Aufklärungen einer nachvollziehbaren Begründung entbehren. Von einem Bieter, der im Gebiet einer anderen Vertragspartei des EWR-Abkommens oder in der Schweiz ansässig ist, können auch Aufklärungen über die Zulässigkeit der Ausübung der Tätigkeit in Österreich verlangt werden.
(3) Der öffentliche Auftraggeber hat den Bieter vom Ausscheiden seines Angebotes unter Angabe des Grundes zu verständigen.
…
Zuständigkeit des Bundesverwaltungsgerichtes
§ 327. Das Bundesverwaltungsgericht ist zuständig zur Entscheidung über Anträge wegen Rechtswidrigkeit eines Verhaltens eines Auftraggebers in den Angelegenheiten des öffentlichen Auftragswesens, soweit es sich um Auftraggeber handelt, die gemäß Art. 14b Abs. 2 Z 1 B-VG in den Vollziehungsbereich des Bundes fallen.
Senatszuständigkeit und -zusammensetzung
§ 328. (1) Das Bundesverwaltungsgericht entscheidet in den Angelegenheiten des § 327, soweit es sich nicht um die Entscheidung über einen Antrag auf Bewilligung der Verfahrens-hilfe für die Einbringung eines Feststellungsantrags, über einen Antrag auf Erlassung einer einstweiligen Verfügung, die Entscheidung über den Gebührenersatz oder die Entscheidung über eine Verfahrenseinstellung nach Zurückziehung eines Nachprüfungs- oder Feststellungs-antrages handelt, in Senaten.
(2) …
Anzuwendendes Verfahrensrecht
§ 333. Soweit in diesem Bundesgesetz und im Verwaltungsgerichtsverfahrensgesetz – VwGVG, BGBl. I Nr. 33/2013, nichts anderes bestimmt ist, sind die Bestimmungen des AVG mit Ausnahme der §§ 1 bis 5 sowie des IV. Teiles in den Verfahren vor dem Bundesverwaltungsgericht nach diesem Bundesgesetz sinngemäß anzuwenden.
Zuständigkeit
§ 334. (1) Das Bundesverwaltungsgericht entscheidet nach Maßgabe der Bestimmungen dieses Abschnittes über Anträge zur Durchführung von Nachprüfungsverfahren (2. Abschnitt), zur Erlassung einstweiliger Verfügungen (3. Abschnitt) und zur Durchführung von Feststellungsverfahren (4. Abschnitt). Derartige Anträge sind unmittelbar beim Bundesverwaltungsgericht einzubringen.
(2) Bis zur Zuschlagserteilung bzw. bis zum Widerruf eines Vergabeverfahrens ist das Bundesverwaltungsgericht zum Zwecke der Beseitigung von Verstößen gegen dieses Bundesgesetz und die hierzu ergangenen Verordnungen oder von Verstößen gegen unmittelbar anwendbares Unionsrecht zuständig 1. zur Erlassung einstweiliger Verfügungen, sowie 2. zur Nichtigerklärung gesondert anfechtbarer Entscheidungen des Auftraggebers im Rahmen der vom Antragsteller geltend gemachten Beschwerdepunkte.
(3) …
Einleitung des Verfahrens
§ 342. (1) Ein Unternehmer kann bis zur Zuschlagserteilung bzw. bis zur Widerrufserklärung die Nachprüfung einer gesondert anfechtbaren Entscheidung des Auftraggebers im Vergabeverfahren wegen Rechtswidrigkeit beantragen, sofern 1. er ein Interesse am Abschluss eines dem Anwendungsbereich dieses Bundesgesetzes unterliegenden Vertrages behauptet, und 2. ihm durch die behauptete Rechtswidrigkeit ein Schaden entstanden ist oder zu entstehen droht.
(2) …
Parteien des Nachprüfungsverfahrens
§ 346. (1) Parteien des Nachprüfungsverfahrens vor dem Bundesverwaltungsgericht sind jedenfalls der Antragsteller und der Auftraggeber. Soweit eine zentrale Beschaffungsstelle ein Vergabeverfahren oder Teile eines Vergabeverfahrens als vergebende Stelle durchführt, tritt sie als Partei des Nachprüfungsverfahrens an die Stelle des Auftraggebers. Der Auftraggeber kann, soweit die zentrale Beschaffungsstelle an seine Stelle tritt, dem Nachprüfungs-verfahren als Nebenintervenient beitreten; §§ 17 Abs. 1, 18 Abs. 1 und 19 Abs. 1 ZPO sind sinngemäß anzuwenden. Wird ein Vergabeverfahren von mehreren Auftraggebern gemeinsam durchgeführt, so bilden die in der Ausschreibung genannten Auftraggeber eine Streitgenossenschaft im Nachprüfungsverfahren. Die Bestimmungen der §§ 14 und 15 ZPO sind sinngemäß anzuwenden.
(2) …
Nichtigerklärung von Entscheidungen des Auftraggebers
§ 347. (1) Das Bundesverwaltungsgericht hat eine im Zuge eines Vergabeverfahrens ergangene gesondert anfechtbare Entscheidung eines Auftraggebers mit Erkenntnis für nichtig zu erklären, wenn 1. sie oder eine ihr vorangegangene nicht gesondert anfechtbare Entscheidung im Rahmen der geltend gemachten Beschwerdepunkte rechtswidrig ist und 2. die Rechtswidrigkeit für den Ausgang des Vergabeverfahrens von wesentlichem Einfluss ist.
(2) …
3.2 Formale Voraussetzungen
3.2.1 Zuständigkeit des Bundesverwaltungsgerichts
3.2.1.1 Auftraggeberin ist die ASFINAG Autobahnen- und Schnellstraßen- Finanzierungs-Aktiengesellschaft. Sie ist öffentliche Auftraggeberin gemäß § 4 Abs 1 Z 2 BVergG 2018 (BVwG 22.1. 2020, W273 2226328-2/29E). Bei der gegenständlichen Ausschreibung handelt es sich um einen Bauauftrag. Der geschätzte Auftragswert des Gesamtvorhabens liegt jedenfalls über dem relevanten Schwellenwert des § 12 Abs 1 Z 4 BVergG 2018, sodass gemäß § 12 Abs 1 BVergG 2018 ein Vergabeverfahren im Oberschwellenbereich vorliegt.
3.2.1.2 Der gegenständliche Beschaffungsvorgang liegt somit im sachlichen und persönlichen Geltungsbereich und damit im Vollanwendungsbereich des BVergG 2018. Die allgemeine Zuständigkeit des Bundesverwaltungsgerichts zur Überprüfung des Vergabeverfahrens und zur Durchführung von Nachprüfungsverfahren nach § 327 BVergG 2018 iVm Art 14b Abs 2 Z 1 lit c B-VG ist sohin gegeben.
3.2.1.3 Da darüber hinaus das Vergabeverfahren nicht widerrufen und der Zuschlag noch nicht erteilt wurde, ist das BVwG damit gemäß § 334 Abs 2 Z 2 BVergG 2018 zur Nichtigerklärung rechtswidriger Entscheidungen der Auftraggeberin zuständig.
3.2.2 Zulässigkeit des Nachprüfungsantrages
3.2.2.1 Schließlich geht das BVwG davon aus, dass der Antragstellerin die Antragsvoraussetzungen nach § 342 Abs 1 BVergG 2018 nicht offensichtlich fehlen. Der Nachprüfungsantrag wurde rechtzeitig eingebracht. Er enthält alle in § 344 Abs 1 BVergG 2018 geforderten Inhalte.
3.2.2.2 Im Ergebnis ist daher davon auszugehen, dass der Nachprüfungsantrag gemäß § 344 Abs 1 BVergG zulässig ist, wobei auch kein Grund für seine Unzulässigkeit gemäß § 344 Abs 2 BVergG hervorgekommen ist. Die Pauschalgebühr wurde bezahlt.
3.3 Zu Spruchpunkt A) – Inhaltliche Beurteilung des Nachprüfungsantrags
3.3.1 Gegenstand des Nachprüfungsverfahrens ist die Verletzung des Antragstellers in jenen subjektiven Rechten, die er im Nachprüfungsantrag geltend gemacht hat (VwGH 16. 10. 2013, 2012/04/0027; 5. 4. 2017, Ra 2015/04/0097), durch die angefochtene gesondert anfechtbare Entscheidung (VwGH 21. 1. 2015, 2012/04/0154). Im Nachprüfungsverfahren ist nicht die objektive Eignung der Antragstellerin, sondern die Rechtmäßigkeit der Ausscheidensentscheidung zu beurteilen (VwGH 14. 12. 2021, Ro 2021/04/0014, Ra 2021/04/0081). Diese ist wegen der kassatorischen Entscheidungsbefugnis des Bundesverwaltungsgerichts ausschließlich auf Grundlage jenes Sachverhalts und jener Unterlagen zu beurteilen, der zum dem Zeitpunkt vorlag, zu dem die Auftraggeberin die Entscheidung traf (BVA 16. 12. 2011, N/0112-BVA/10/2011-32). Es ist dem Bundesverwaltungsgericht nämlich verwehrt, einen Bieter zur Aufklärung aufzufordern (VwGH 18. 3. 2009, 2007/04/0095) und damit eine unterlassene Prüfung des Angebots in Nachprüfungsverfahren nachzuholen (BVwG 28. 9. 2015, W123 2112845-2/24E). Erst im Vergabekontrollverfahren nachgereichte Unterlagen sind dabei nicht zu berücksichtigen (BVA 16. 12. 2011, N/0112-BVA/10/2011-32).
3.3.1.1 Die Antragstellerin beantragte die getroffene Zuschlagsentscheidung für nichtig zu erklären, da das für die Zuschlagserteilung vorgesehene Hauptangebot der präsumtiven Zuschlagsempfängerin in vielfacher Hinsicht nicht der ausgeschriebenen Baubeschreibung bzw. den technischen Vertragsbestimmungen entspreche und es sich - entgegen der von der präsumtiven Zuschlagsempfängerin gewählten Bezeichnung - inhaltlich um ein Alternativangebot handle. Alternativangebote seien zwar nach der Ausschreibung grundsätzlich zulässig, jedoch nur neben einem ausschreibungskonformen Hauptangebot. Da die präsumtive Zuschlagsempfängerin kein ausschreibungskonformes (insbesondere der Baubeschreibung entsprechendes) Hauptangebot gelegt habe, sei das lediglich als Hauptangebot bezeichnete Alternativangebot auszuscheiden. Gleiches gelte für das von der präsumtiven Zuschlagsempfängerin als Abänderungsangebot bezeichnete Angebot, welches ebenso mangels eines ausschreibungskonformen Hauptangebotes auszuscheiden sei.
3.3.1.2 Vorab ist festzuhalten, dass die Ausschreibungsunterlagen und alle anderen Festlegungen in diesem Vergabeverfahren nicht rechtzeitig angefochten wurden und daher bestandsfest geworden sind (VwGH 17. 6. 2014, 2013/04/0029). Alle am Vergabeverfahren Beteiligten sind sohin daran gebunden (st Rspr zB VwGH 22. 3. 2019, Ra 2017/04/0038; 14. 4. 2011, 2008/04/0065). Das BVwG kann allfällige Rechtswidrigkeiten der bestandsfesten Ausschreibungsunterlagen nicht mehr aufgreifen (VwGH 17. 6. 2014, 2013/04/0029). Das gilt auch für alle anderen Festlegungen der Auftraggeberin im Zuge des Vergabeverfahrens.
3.3.1.3 Die bestandfesten Ausschreibungsunterlagen und alle anderen Festlegungen und Erklärungen sowohl der Auftraggeberin, der Bewerber und Bieter sind nach dem objektiven Erklärungswert für einen durchschnittlich fachkundigen Bieter bei Anwendung der üblichen Sorgfalt auszulegen (stRspr zB VwGH 18. 3. 2015, Ra 2015/04/0017; 15. 3. 2017, Ra 2014/04/0052). Auf den vermuteten Sinn und Zweck der Ausschreibungsunterlagen kommt es nicht an (VwGH 1. 2. 2017, Ro 2016/04/0054). Im Zweifel sind Festlegungen in den Ausschreibungsunterlagen gesetzeskonform und sohin in Übereinstimmung mit den maßgeblichen Bestimmungen zu lesen (st Rspr zB VwGH 9. 9. 2015, Ra 2014/04/0036). Gleiches gilt für die Willenserklärungen der Bieter (st Rspr zB VwGH 22. 11. 2011, 2006/04/0024; 27. 10. 2014, 2012/04/0066). Die Festlegungen sind für alle am Vergabeverfahren Beteiligten bindend (zB EuGH 22. 6. 1993, C-243/89, Kommission/Dänemark – Brücke über den „Storebælt“ Rn 39, Slg 1993, I-3353; 2. 6. 2016, C-27/15, Pippo Pizzo, Rn 39 mwN; VwGH 7. 9. 2009, 2007/04/0090). Allfällige Rechtswidrigkeiten können auch von der Vergabekontrollbehörde nicht mehr aufgegriffen werden (zB VwGH 7. 11. 2005, 2003/04/0135; 27. 6. 2007, 2005/04/0234). Die Ausschreibungsunterlagen sind der Ausscheidensentscheidung zugrunde zu legen (zB VwGH 7. 9. 2009, 2007/04/0090 mwN; 14. 4. 2011, 2008/04/0065). Es ist von einer strengen Bindung an die Ausschreibungsunterlagen auszugehen (VwGH 20. 5. 2010, 2007/04/0072; BVwG 16. 4. 2014, W187 2003334-1/25E), andernfalls ein Verstoß gegen den Gleichheitsgrundsatz vorliegen würde (zB EuGH 22. 6. 1993, C-243/89, Kommission/Dänemark – Brücke über den „Storebælt“, Rn 37, Slg 1993, I-3353; BVA 28. 11. 2008, N/0131-BVA/12/2008-29).
Nach ständiger Rechtsprechung des Gerichtshofes der Europäischen Union und des Verwaltungsgerichtshofes erfordert das Transparenzgebot, alle Inhalte der Ausschreibungsunterlagen (Leistungsbeschreibung, Bedingungen, Kriterien usw.) so klar, genau und eindeutig zu formulieren, dass alle durchschnittlich fachkundigen Bieter bei Anwendung der üblichen Sorgfalt ihre genaue Bedeutung verstehen und sie in gleicher Weise auslegen können. Auslassungen und Unklarheiten gehen zu Lasten des Auftraggebers. Zweck der Ausschreibungsunterlagen ist es, Unternehmern objektiv die Möglichkeit zu verschaffen, sich eine konkrete Vorstellung der vom Auftraggeber gewünschten Leistung zu machen und daraufhin ein Angebot erstellen zu können. Dies bringt es mit sich, dass in der Ausschreibungsunterlage selbst diese Informationen enthalten sein müssen (EBRV 69 BlgNR XXVI. GP, 115). Im Zweifel sind Festlegungen in der Ausschreibung gesetzeskonform und sohin in Übereinstimmung mit den maßgeblichen Bestimmungen zu lesen (ua VwGH 14.12.2021, Ro 2021/04/0014, Ra 2021/04/0081; VwGH 09.09.2015, Ra 2014/04/0036; VwGH 18.03.2015, Ra 2015/04/0017; VwGH 12.05.2011, 2008/04/0087). Auf den vermuteten Sinn und Zweck der Ausschreibungsbestimmungen kommt es nicht an. Gleiches gilt für die Interpretation von Willenserklärungen der Bieter (ua VwGH 14.12.2021, Ro 2021/04/0014, Ra 2021/04/0081; VwGH 22.11.2011, 2006/04/0024; VwGH 27.10.2014, 2012/04/0066). Die Annahme, ein Bieter wolle ein den Ausschreibungsbedingungen widersprechendes Angebot legen, ist nur dann gerechtfertigt, wenn er dies – klar – zum Ausdruck bringt. Dabei kommt es auf den objektiven Erklärungswert und nicht darauf an, wie der Bieter sein Angebot verstanden wissen will (vgl. VwGH 27. 10. 2014, 2012/04/0066; 22. 3. 2019, Ra 2018/04/0176). Der Absicht des Erklärenden kann im Zusammenhang mit der Auslegung von Bietererklärungen nur insoweit Bedeutung zukommen, als sie sich in dem nach außen hin zum Ausdruck objektiven Erklärungswert niederschlägt (VwGH 14. 12. 2021, Ro 2021/04/0014).
3.3.1.4 Damit ist der objektive Erklärungswert der Willenserklärung bzw. der (bestandfesten) Ausschreibungsunterlagen zu ermitteln: Bei Auslegung einer Willenserklärung nach den §§ 914 ff ABGB ist zunächst vom Wortsinn in seiner gewöhnlichen Bedeutung auszugehen, dabei ist aber auch der Wille der Parteien, das ist die dem Erklärungsempfänger erkennbare Absicht des Erklärenden, zu erforschen. Letztlich ist die Willenserklärung so zu verstehen, wie es der Übung des redlichen Verkehrs entspricht, wobei die Umstände der Erklärung und die im Verkehr geltenden Gewohnheiten und Gebräuche heranzuziehen sind. Allerdings braucht nicht der subjektive unerkennbare Parteiwille ergründet zu werden, sondern ist herauszufinden, wie der andere Teil die Erklärung verstehen musste. Für die Beurteilung der Absicht der Parteien im Sinne des § 914 ABGB kommt es maßgebend auf den Zweck der Regelung an, den beide Teile redlicherweise unterstellen mussten. Soweit ein übereinstimmender Wille vorliegt, legt er den Inhalt des Vertrags fest und geht dem objektiven Erklärungswert vor. Oberstes Ziel der Auslegung ist die Erforschung der Absicht der Parteien (RIS-Justiz RS0017915 insb [T23], [T38], [T41]). Die Ermittlung des objektiven Erklärungswertes der Willenserklärung der Auftraggeberin bzw. der bestandfesten Ausschreibungsunterlagen setzt voraus, dass die Angaben der Auftraggeberin in den Ausschreibungsunterlagen auch hinsichtlich des jeweils angegebenen Leistungsteils nicht isoliert betrachtet werden.
3.3.1.5 In den Ausschreibungsunterlagen unter den Punkten 1.1 und 1.2 des Teils B.2 Baubeschreibung Neubau ist der Leistungsgegenstand der gegenständlichen Ausschreibung grundsätzlich definiert. Es handelt sich um den Abtrag des bestehenden Tragwerkes des bestehenden Objekts: L43 Talübergang Steinbrückenbach auf der A10 Tauernautobahn zwischen km 137,040 und km 137,646, d.h. zwischen der ASt Gmünd und der Anschlussstelle Spittal., die Ertüchtigung des Unterbaus und der Pfeiler, sowie die Herstellung eines neuen Brückentragwerkes. Hierzu soll das Brückentragwerk auf beiden Richtungsfahrbahnen gänzlich abgetragen und neu errichtet werden. Weiters sind Adaptierungen an den Widerlagern, Pfeilern und den Gründungen erforderlich (vgl Punkt 1.2 in Teil B.2 Baubeschreibung Neubau).
Der Abtrag des Brückentragwerks ist in Punkt 5.4.3 des Teils B.2 beschrieben. Demnach erfolgt der Abtrag bzw Rückbau des Brückentragwerks mittels „eines Rüstträgers“. Dieser Rüstträger hat die Gesamtlänge von mindestens 2 Brückenfeldern (2 x 70m = 140m) und wird jeweils 3-mal im Bereich der Brückenpfeiler abgestützt, sodass sich ein 2-Feld-Rüstträger mit einer maximalen Spannweite von ca. 70 m ergibt. Folgender Arbeitsablauf für den Rückbau des Bestandstragwerkes ist vorgesehen:
• Abtrag der Kragplatten beidseitig durch Schneiden in Längs- und Querrichtung, Ausheben der Kragplattenabschnitte und Abtransport mittels geeigneter Fahrzeuge über das noch bestehende Brückentragwerk Richtung Spittal
• Sichern des verbleibenden Brückenquerschnittes mittels temporärer Aufhängungen am obenliegenden Rüstträger
• Schneiden und Ausheben der Fahrbahnplatte zwischen den Hauptträgern im verbundlosen Bereich neben den Stützen (ca. 17,50 m beidseitig der Stützen) und Abtransport auf geeigneten Fahrzeugen Richtung Spittal. Beim Abtrag der Fahrbahnplatte bzw. des gesamten Verbundquerschnittes ist jedenfalls zu berücksichtigen, dass die Fahrbahnplatte im verbundlosen Bereich über den Stützen am Obergurt nur aufliegt und im Feldbereich die Fahrbahnplatte mit dem Stahlträger mittels Kopfbolzen verbunden ist. Zu beachten ist, dass der Längstransport von abgebrochenen Bauteilen in bereits teilabgebrochenen Feldern nur über die Rüstträger erfolgen darf.
Für die Neuherstellung des Brückentragwerkes sollen gemäß Punkt 7 des Teils B.2 der Baubeschreibung zur Einhaltung der vorgegebenen Bauzeit „2 Rüstträger parallel eingesetzt“ werden. In der Baubeschreibung (Teil B.2 Punkt 7.1.3) wird dieser parallele Einsatz näher konkretisiert. Während Rüstträger 1 noch mit dem Abtrag beschäftigt ist, wird der für die Neuherstellung des Tragwerks vorgesehene Rüstträger 2 zunächst im Brückenfeld 1 2 aufgebaut. Während der Neuerrichtung des Brückentragwerks mit dem Rüstträger 2 im Feld 1 erfolgt noch der laufende Abtrag mithilfe des Rüstträgers 1 in den Feldern 8 9. Sobald der Abtrag mit dem Rüstträger 1 abgeschlossen ist, wird auch der Rüstträger 1 für die Neuerrichtung des Tragwerks eingesetzt, sodass dann der Neubau von zwei Seiten durch zwei phasenweise aufeinander zugehende Rüstträger stattfindet.
Gemäß Punkt 6 der Baubeschreibung erfolgt die Zufahrt zur Baustelle ausschließlich über die A-10 Tauernautobahn, sodass für sämtliche Arbeiten die Zugänglichkeit bzw. der Material- und Maschinentransport ausschließlich über die Rüstträger und das Brückentragwerk erfolgt. Dies gilt auch für die im Bereich der Stützen vorzunehmenden Adaptierungsarbeiten. Mangels Zugänglichkeit am Talboden erfolgt der Transport über Hebeeinrichtungen am Rüstträger (siehe zB Punkt 6.3 bis Punkt 6.6 im Teil B.2).
3.3.1.6 Nach Punkt 1.1.32.1 im Teil B.1 der bestandfesten Ausschreibungsunterlagen sind Alternativangebote und Abänderungsangebote für die Gesamtleistung oder für Teile der Leistung grundsätzlich zulässig. Sowohl Alternativangebote als auch Abänderungsangebote sind jedoch nur neben einem ausschreibungsgemäßen Hauptangebot zulässig.
„Alternativangebote für die Gesamtleistung oder für Teile der Leistung sind zugelassen. Jedes Alternativangebot muss die Formalerfordernisse eines ausschreibungskonformen Hauptangebotes erfüllen. Jedes Alternativangebot hat einen gesonderten Gesamtpreis zu enthalten. Alternativangebote sind nur neben einem ausschreibungsgemäßen Angebot zulässig. „
Ein Alternativangebot bedeutet ein Abweichen des Bieters von den Vorgaben in der Ausschreibung in technischer, wirtschaftlicher oder rechtlicher Hinsicht. Die Abweichungen zur Ausschreibung können etwa alternative Leistungen, Zahlungsmodalitäten oder sonstige Konditionen betreffen (st Rspr, zB VwGH 13. 6. 2005, 2005/04/0001, 0009). Gemäß § 96 Abs 1 BVergG sind Alternativangebote nur dann zulässig, wenn sie der Auftraggeber ausdrücklich zulässt (st Rspr, zB BVwG 1. 7. 2020, W187 2231549-2/21E), da er neben den gesetzlichen Anordnungen gegen den Grundsatz der Gleichbehandlung die daraus erfließende Verpflichtung zur Transparenz verstoßen würde (EuGH 25. 4. 1996, C-87/94, Kommission/Belgien – Wallonische Autobusse, Rn 89 ff, Slg 1996, I-2.043). Dies ist im gegenständlichen Vergabeverfahren erfolgt, sodass Alternativangebote grundsätzlich zulässig sind. Der Auftraggeber muss gemäß § 96 Abs 2 BVergG die Mindestanforderungen an die Gleichwertigkeit von Alternativangeboten zur ausgeschriebenen Leistung beschreiben. Das muss er in der Ausschreibung (st Rspr, zB EuGH 16. 10. 2003, C-421/01, Traunfellner, Rn 27, Slg 2003, I-11.941; 22. 4. 2010, C-423/07, Kommission/Spanien, Rn 65, Slg 2010, I-3.429; BVA 4. 4. 2013, N/0013-BVA/14/2013-31) in einer Art machen, die einem durchschnittlich fachkundigen Bieter bei Anwendung der üblichen Sorgfalt verständlich ist (st Rspr, zB VwGH 21. 12. 2004, 2004/04/0161, VwSlg 16.520 A/2004). Mindestanforderungen iSd Bestimmungen betreffen daher Eigenschaften, die die ausgeschriebene Leistung kennzeichnen und denen die angebotene Leistung zu genügen hat (st Rspr zB VwGH 26. 11. 2010, 2008/04/0027, 0036 mwN). Diese darf sich nicht auf eine konstruktive Beschreibung der Leistung beschränken, sondern muss in einem eher funktionalen Sinn Kriterien und Anforderungen aufstellen (st Rspr, zB BVA 10. 8. 2007, N/0067-BVA/02/2007-038), wobei der Zweck der ausgeschriebenen Leistung alleine nicht genügt (VwGH 21. 12. 2004, 2004/04/0161, VwSlg 16.520 A/2004). Der Verweis auf eine nationale Vorschrift genügt nicht (EuGH 16. 10. 2003, C-421/01, Traunfellner, Rn 30, Slg 2003, I-11.941). Der Auftraggeber kann jedoch auf Normen und Standards gemäß zurückgreifen, die einem durchschnittlich fachkundigen Bieter bekannt sind (BVA 18. 7. 2012, N/0061-BVA/02/2012-19) und dem Begriff der technischen Bezugsgröße gemäß § 2 Z 36 BVergG oder der technischen Spezifikation gemäß § 2 Z 37 lit a BVergG entsprechen sowie den Anforderungen an technische Spezifikationen des § 106 BVergG genügen. Der Auftraggeber darf gemäß § 96 Abs 2 BVergG nur jene Alternativangebote berücksichtigen, die die festgelegten Mindestanforderungen erfüllen (so bereits EuGH 22. 6. 1993, C-243/89, Kommission/Dänemark – Brücke über den „Storebælt“, Rn 43, Slg 1993, I-3.353). Daher sind Mindestanforderungen unbedingt und jedenfalls zu erfüllende Anforderungen (st Rspr zB VwGH 26. 11. 2010, 2008/04/0027, 0036 mwN).
3.3.1.7 Ein Alternativangebot muss keine gänzlich abweichende Leistung anbieten, sondern kann auch aus einer nur in Teilen abweichenden Leistung bestehen, weshalb im Übrigen die Leistung entsprechend dem Hauptangebot erbracht werden soll. Darauf gehen die Festlegungen der Ausschreibung ein. Der Bieter muss gemäß § 125 Abs 4 BVergG in seinem Alternativangebot dessen Gleichwertigkeit mit der ausgeschriebenen Leistung nachweisen. Das kann er nur, indem er die Erfüllung der Mindestanforderungen an Alternativangebote entsprechend den Festlegungen in der Ausschreibung durch sein Alternativangebot nachweist (st Rspr, zB BVA 20. 7. 2009, N/0060-BVA/03/2009-35). Daher ist es Aufgabe des Bieters, die Gleichwertigkeit nachzuweisen, Aufgabe des Auftraggebers diese zu prüfen, bevor er es bei der Auswahl des Angebots für den Zuschlag berücksichtigt.
3.3.1.8 Aus dem Grundsatz der Gleichbehandlung aller Bieter gemäß § 20 Abs 1 BVergG ergibt sich auch, dass der Auftraggeber alle Alternativangebote auf Grundlage der festgelegten Alternativangebote auf ihre Gleichwertigkeit mit der ausgeschriebenen Leistung prüfen muss, wobei er an alle Alternativangebote den gleichen Maßstab anlegen muss. Damit ist die Gleichwertigkeit das Ergebnis des Messens des Alternativangebots an den Mindestanforderungen (st Rspr, zB VwGH 26. 11. 2010, 2008/04/0027, 0036 mwN; BVA 4. 4. 2013, N/0013-BVA/14/2013-31).
3.3.1.9 Die Prüfung von Alternativangeboten erlaubt, gemäß § 139 Abs 1 BVergG Auskünfte über die Gleichwertigkeit von Alternativangeboten einzuholen und gemäß § 139 Abs 2 BVergG diese Alternativangebote auch in einem offenen Verfahren geringfügig anzupassen, ohne dadurch gegen das Verhandlungsverbot des § 112 Abs 3 BVergG im offenen Verfahren zu verstoßen. Allerdings darf der Auftraggeber nur jene Mindestanforderungen prüfen, die er in der Ausschreibung festgelegt hat, da er sonst gegen den Grundsatz der Gleichbehandlung aller Bieter und die daraus erfließende Pflicht zur Transparenz verstoßen würde (EuGH 16. 10. 2003, C-421/01, Traunfellner, Rn 29, Slg 2003, I-11.941). Mit anderen Worte würde der Auftraggeber den Bieter überraschen, wenn er andere als in der Ausschreibung angegebene Kriterien an Alternativangebote anlegen würde. Die Prüfung der Angebote und damit auch der Alternativangebote muss der Auftraggeber gemäß § 134 BVergG sachverständig vornehmen, wobei er gegebenenfalls externe Sachverständige beiziehen muss. Daher kann der Auftraggeber zur Prüfung der Richtigkeit der Angaben von Bietern eigene Prüfschritte setzen und allenfalls dazu externe Sachverständige beiziehen.
3.3.1.10 Aus der Notwendigkeit der Erfüllung der Mindestanforderungen an Alternativangebote ergibt sich, dass der Auftraggeber ein Alternativangebot dann nicht berücksichtigen darf, wenn es Mindestanforderungen gänzlich fehlen oder so unbestimmt sind, dass die Gleichwertigkeit des Alternativangebots zur ausgeschriebenen Leistung daran nicht geprüft werden kann (st Rspr, zB EuGH 16. 10. 2003, C-421/01, Traunfellner, Rn 33 f, Slg 2003, I-11.941; VwGH 21. 12. 2004, 2004/04/0161, VwSlg 16.520 A/2004; BVA 10. 8. 2007, N/0067-BVA/02/2007-038).
3.3.1.11 Es ist daher die Tauglichkeit der Mindestanforderungen an Alternativangebote, danach die Gleichwertigkeit von Alternativangeboten zu der ausgeschriebenen Leistung und die durchgeführte Prüfung der Antragstellerin zu prüfen.
3.3.3 Tauglichkeit der Mindestanforderungen an die Gleichwertigkeit von Alternativangeboten
3.3.3.1 In Punkt 1.1.32.1 in Teil B.1 der allgemeinen Ausschreibungsunterlagen ist festgelegt, dass Alternativangebote für die Gesamtleistung oder für Teile der Leistung zugelassen sind. Jedes Alternativangebot muss zudem die Formalerfordernisse eines ausschreibungskonformen Hauptangebotes erfüllen und hat einen gesonderten Gesamtpreis zu enthalten. Wesentlich ist zudem, dass Alternativangebote nur neben einem ausschreibungsgemäßen Angebot zulässig sind.
In Punkt 1.1.32.5 in Teil B.1 der allgemeinen Ausschreibungsunterlagen enthält neben folgenden allgemeinen Einschränkungen: rechtliche Alternativangebote sind nicht zulässig; Bauzeitverlängerungen sind nicht zulässig; Bauzeitverkürzungen sind nicht zulässig, außer sie sind als Zuschlagskriterien vorgesehen; randbalkenlose Brücken sind nicht zulässig; Nachlässe aus der Verknüpfung mit anderen Baulosen sind nicht zulässig; Wird durch ein Alternativangebot das der gegenständlichen Ausschreibung zugrunde liegende Gründungskonzept geändert, so muss diese Änderung – bei sonstiger Ausscheidung – durch ein geotechnisches (geomechanisches, hydrologisches) Gutachten des Bieters, im Hinblick auf den Nachweis der Gleichwertigkeit nachgewiesen werden.
Zudem findet sich in Punkt 1.1.32.5 in Teil B.1 der allgemeinen Ausschreibungsunterlagen unter Verweis auf Teil B.5 (LG00) der Ausschreibungsunterlagen die (projektspezifische) Einschränkung, dass nur Alternativangebote, die mit der ausgeschriebenen Leistung technisch, wirtschaftlich und rechtlich gleichwertig und vergleichbar sind, zum Vergabeverfahren zugelassen werden. Festzuhalten ist damit, dass die vorliegende Ausschreibung davon ausgeht, dass vorerst Einschränkungen festgelegt werden, die die Zulässigkeit von Alternativangeboten begrenzen, einen ersten Filter aufstellen. Sie bewirken, dass jene Alternativangebote, die diesen Anforderungen nicht entsprechen, von vornherein nicht zulässig sind. Diese Anforderungen, die im vorliegenden Fall maßgeblich sind, sind die technische, wirtschaftliche und rechtliche Gleichwertigkeit und Vergleichbarkeit.
3.3.3.2 Als Mindestanforderungen legt Punkt 1.1.32.5 in Teil B.1 der Ausschreibungsunterlagen fest, dass das Bau-Soll im Rahmen der Einschränkungen und Mindestanforderungen abgeändert werden darf. Die allgemeine Mindestanforderung ist das Abdecken der sich aus der Ausschreibung ergebenden Funktionalität der Bauleistung für die Verkehrsteilnehmer und/oder den Betreiber sowie des Leistungsziels. Durch den Verweis auf die Teile B.1 bis B.6 der Ausschreibung sind diese weiter technisch spezifiziert. Aus Planungsgrundlagen in der Beilage zur Ausschreibung ergeben sich weitere Anforderungen. Grundlage für die Prüfung der Gleichwertigkeit sind in der Reihenfolge und der Bedeutung zuerst die rechtlichen Rahmenbedingungen, worunter auch behördliche Genehmigungen zu verstehen sind, danach gleichrangig Teil B.3 Technische Vertragsbestimmungen und die projektspezifischen Vertragsbestimmungen in der LG 00 in Teil B.5 Leistungsverzeichnis, danach technische Bestimmungen und Auflagen aus Bescheiden und Verträgen, harmonisierte Europäische Normen, verbindlich erklärte RVS, ÖNORMEN, technische Planungshandbücher der ASFINAG, nicht verbindlich erklärte RVS, technische Vorschreibungen aus Erlässen und Dienstanweisungen des Bundesministeriums für Verkehr, Innovation und Technologie sowie Richtlinien und Merkblätter der österreichischen Bautechnik Vereinigung (ÖBV) und des österreichischen Baustoffrecyclingverbandes (BRV). Daraus ergibt sich, dass die projektspezifischen Mindestanforderungen in Position 00B108A im Leistungsverzeichnis Teil B.5 der Ausschreibungsunterlagen für die Prüfung der Gleichwertigkeit von Alternativangeboten zur ausgeschriebenen Leistung als Mindestanforderungen von Bedeutung sind. Diese sind die Tragsicherheit, die Gebrauchstauglichkeit und die Standsicherheit. Weitere Erläuterungen dieser Begriffe enthält die LG 00 in Teil B.5 nicht. Allerdings erlauben die Festlegungen in Punkt 1.1.32.5 in Teil B.1 der Ausschreibungsunterlagen, zum näheren Verständnis ua auf die RVS zurückzugreifen. Bei den RVS handelt es sich um Normen, die in der Bauwirtschaft für den Straßenbau allgemeine Standards darstellen und geläufig sind. Auch sind diese Begriffe in der Bauwirtschaft allgemein bekannt, wie sich in der mündlichen Verhandlung ergeben hat, sodass ein durchschnittlich fachkundiger Bieter sie verstehen und bei der Erstellung eines Alternativangebots berücksichtigen konnte.
3.3.3.3 Damit kann zum näheren Verständnis auf die Begriffsbestimmung in RVS und im „Wörterbuch Verkehrswesen, Begriffsbestimmungen der RVS und RVE“ zurückgegriffen werden. Wie dieses unter Rückgriff auf verschiedene RVS zeigt, wird der Begriff der „Gebrauchstauglichkeit“ in unterschiedlichen RVS gleichlautend verwendet. Das alleine zeigt jedoch lediglich, dass es sich um einen gängigen Begriff handelt. Über den Inhalt und die Genauigkeit sagt die mehrfache gleichlautende Definition nichts aus. Dieser besteht aus der Eignung eines Bauwerks oder Bauteils für einen bestimmungsgemäßen Verwendungszweck. Der bestimmungsgemäße Verwendungszweck der zu errichtenden Schnellstraße ist der Verkehr von Fahrzeugen in der prognostizierten Verkehrsmenge unter den Bedingungen für eine Schnellstraße. Die Eignung muss auf objektiv und nicht objektiv feststellbaren Gebrauchseigenschaften beruhen. Die Gebrauchseigenschaften einer Schnellstraße bestehen im Verkehr mit bestimmten Geschwindigkeiten und im Einzelfall für eine bestimmte Verkehrsmenge, die sich aus der Verkehrsprognose ergibt, die der Planung zugrunde liegt. Darüber hinaus muss sich die Bedeutung der Eignung aus individuellen Bedürfnissen ableiten. Im vorliegenden Fall leitet sie sich aus dem Verkehrsbedürfnis der einzelnen Verkehrsteilnehmer des motorisierten Individualverkehrs ab, zu dessen Deckung die Schnellstraße errichtet werden soll. In den technischen Berichten ist diese wiedergegeben und der Ausschreibung angeschlossen, sodass alle Bieter in gleicher Weise diese kennen und vor allem auch bei der Gestaltung von alternativen Lösungsvorschlägen berücksichtigen können.
3.3.3.4 Die Tragsicherheit definiert die Eigenschaft der zu errichtenden Straße, den prognostizierten Verkehr unter den Bedingungen des Verkehrs auf einer Schnellstraße wie Achslasten, Fahrgeschwindigkeiten oder Verkehrsmenge verlässlich zu tragen. Eine alternativ angebotene Straße muss daher den so definierten Verkehr aufnehmen können.
3.3.3.5 Die Standsicherheit definiert die Eigenschaft der zu errichtenden Straße, stabil zu bleiben und sich nicht zu verformen. Verschiedene Schüttungen von Autobahndämmen sind in der Vergangenheit abgerutscht. Dieses soll nicht passieren.
3.3.3.6 Die projektspezifischen Mindestanforderungen bestehen aus Tragsicherheit, Gebrauchstauglichkeit und Standsicherheit. Diese drei Bedingungen sind daher jedenfalls von Alternativangeboten zu erfüllen. Das Maß ergibt sich aus jenem Maß, das der Amtsentwurf aufweist, dh dass ein Alternativangebot ebenso tragsicher, gebrauchstauglich und standsicher wie der Amtsentwurf sein muss.
3.3.3.7 Die allgemeinen Anforderungen an Alternativangebote sind einerseits das Abdecken der sich aus der Ausschreibung ergebenden Funktionalität der Bauleistung für die Verkehrsteilnehmer und den Betreiber, andererseits die technische, wirtschaftliche und rechtliche Gleichwertigkeit und Vergleichbarkeit.
3.3.3.8 Die technische Gleichwertigkeit und Vergleichbarkeit ergibt sich im Detail aus den bereits oben genannten Parametern. Die wirtschaftliche Gleichwertigkeit und Vergleichbarkeit kann die Auftraggeberin nach der RVS 03.08.71 sowie ihren Nachfolgerichtlinien berechnen. Die rechtliche Gleichwertigkeit und Vergleichbarkeit ergibt sich aus dem Vergleich der angebotenen mit den ausgeschriebenen rechtlichen Bedingungen der Erbringung der Leistung.
3.3.3.9 Weitere Grenzen für Alternativangebote finden sich auch in der Genehmigungsfähigkeit alternativ angebotener Leistungen in den Behördenverfahren. Im vorliegenden Fall wurde ein UVP-Verfahren durchgeführt. Es gibt Auflagen aus diesem Verfahren und wasserrechtliche Auflagen. Die Bescheide liegen den Ausschreibungsunterlagen bei. Damit kann jeder Bieter erkennen, welche weiteren Randbedingungen für Alternativangebote bestehen.
3.3.3.10 Insgesamt ist daher festzuhalten, dass es zwar prima vista nicht einfach und offensichtlich ist, einen Prüfmaßstab für Alternativangebote in der Ausschreibung zu erkennen, bei Zusammenschau der allgemeinen und projektspezifischen Einschränkungen und Mindestanforderungen für die Gleichwertigkeit von Alternativangeboten mit der ausgeschriebenen Leistung unter Zuhilfenahme der verwiesenen Norm- und Regelwerke sowie der Ausschreibung samt ihren Beilagen lässt sich jedoch eine Bewertungsmethode erkennen. Einfacher und übersichtlicher wären allerdings zusammengefasste Einschränkungen und Mindestanforderungen an Alternativangebote.
3.4. Ein Bieter ist darüber hinaus gemäß § 125 Abs 1 BVergG 2018 verpflichtet, sich bei der Erstellung des Angebots an die Vorgaben der Ausschreibungsunterlagen zu halten. Das betrifft sowohl den Inhalt des Angebots als auch seine Form. Das Angebot muss gemäß § 126 Abs 4 BVergG 2018 vollständig sein, dh insbesondere alle geforderten Angaben enthalten und insbesondere alle verlangten Angebotsbestandteile, Nachweise und Beilagen enthalten. Dabei ist auf die konkrete Ausschreibung abzustellen.
3.4.1 Im offenen Verfahren geben Bieter das Angebot so ab, dass es ohne weiteres Zutun des Bieters Grundlage des Vertrags sein kann. Entscheidend ist daher die Papierform des Angebots, die wie oben ausgeführt zu verstehen ist. Änderungen des Angebots nach Angebotsöffnung sind daher grundsätzlich ausgeschlossen (EuGH 14. 9. 2017, C-223/16, Casertana Costruzioni, Rn 35; VwGH 4. 7. 2016, Ra 2016/04/0015). Zulässig sind gemäß § 139 Abs 1 BVergG 2018 nur die Behebung verbesserbarer Mängel und geringfügige, unerlässliche Änderungen von Alternativangeboten. Das Verhandlungsverbot nach § 112 Abs 3 BVergG 2018 ist Ausdruck dieser Unabänderlichkeit (EuGH 11. 5. 2017, C-131/16, Archus und Gama, Rn 27).
3.4.2 Im konkreten Fall wird in diesem Zusammenhang auf Pos 00B108A der Ausschreibungsunterlagen Teil B5, Seite 15) verwiesen, worin die zulässigen Einschränkungen für Alternativangebote geregelt sind. Für zulässig erklärt werden in diesem Punkt ausdrücklich Änderungen im Bauverfahren für den Abtrag. Der Positionstext zu einzelnen Positionen 310321B, 310321B1, 061040B, 061040B1 des Leistungsverzeichnisses in Teil B5) mit dem Wortlaut „oder gemäß Konzept AN“ unterstreicht, dass der jeweilige Bieter eben nicht selbst das Bauverfahren für den Abtrag in dessen Konzept frei bestimmen kann und somit auch nicht ein neues und im Vorhinein völlig indeterminiertes Hauptangebot legen kann. Würde man von dieser Rechtsansicht ausgehen, wäre dem jeweiligen Bieter große Gestaltungsfreiheit im Rahmen der Angebotslegung ermöglicht und in weiterer Folge ein in den Ausschreibungsunterlagen ausdrücklich zugelassenes Alternativangebot betreffend das Bauverfahren für den Abtrag jedenfalls undenkbar.
Auch aus Sicht des erkennenden Gerichts und sohin der Antragstellerin zuzustimmen ist dahingehend, dass Abweichungen bei der Abtragsmethode (vorrangig der Einsatz lediglich eines Rüstträgers) im konkreten Fall als Alternativangebot zu werten sind. Diese Argumentation wird zudem durch Pos 061038 (Teil B5 Seite 248) des Leistungsverzeichnisses gestützt. In Pos 061038 wird die Planung bzw statische Berechnung des bestehenden Brückentragwerks „für die ausgeschriebene Abtragsmethode bzw. für ein allenfalls alternatives Abtragskonzept des AN“ geregelt. Es ist daher bereits an dieser Stelle von der Auftraggeberin deutlich zum Ausdruck gebracht worden, dass die Ausschreibungsunterlagen klar einerseits zwischen einer „ausgeschriebenen“ Abtragsmethode und einem „alternativen“ Abtragskonzept differenzieren. Die in der Ausschreibung verwendete Wortwahl („alternatives Abtragskonzept“) macht deutlich, dass es sich bei dem unter anderem in den Positionen 310321B, 310321B1, 061040B, 061040B1 des Leistungsverzeichnisses erwähnten „Konzept AN“ um ein „alternatives“ Konzept handelt und somit ein Alternativangebot erfordert. Die genannten Positionen zeigen sohin lediglich die Möglichkeit auf, dass ein Auftragnehmer im Zuge eines Alternativangebotes ein „alternatives“ Konzept für den Abbruch vorsehen kann, welches dann – nach bestandener Gleichwertigkeitsbeurteilung und unter der Voraussetzung eines ausschreibungskonformen Hauptangebotes – auch umgesetzt werden könnte. Diese Ansicht steht auch im Einklang mit der ausdrücklichen Zulassung von Alternativangeboten in den Ausschreibungsunterlagen und wird in diesem Zusammenhang auf die entsprechenden Ausführungen zur Zulässigkeit von Alternativangeboten verwiesen.
Das erkennende Gericht schließt sich zudem der Ansicht der Antragstellerin an, dass würde man den Ausführungen des Auftraggebers und der präsumtiven Zuschlagsempfängerin dahingehend folgen, dass auf Grund des Positionstextes „oder Konzept AN“ ein von Abbruchkonzept des Auftraggebers abweichendes Konzept des Bieters auch als Hauptangebot gelegt werden könnte, dies dazu führen würde, dass der Bieter eine Abbruchmethode in dessen Konzept völlig frei wählen könnte. Er könnte sohin sogar eine solche Methode wählen, die den ausdrücklich nur für Alternativen normierten Vorgaben widersprechen. Andernfalls wäre die Einschränkung in Pos 00B108A für Alternativangebote nicht zielführend, weil ohnedies jede Abbruchmethode auch als Hauptangebot zulässig wäre. Sie wäre nie anwendbar, weil jede Abweichung vom Abbruchkonzept des Auftraggebers als Hauptangebot deklariert werden könnte. Den Ausschreibungsbestimmungen einen solchen Inhalt zu unterstellen, widerspricht aber nicht nur den oben zitierten Auslegungsgrundsätzen und Interpretationsmaximen die von der höchstgerichtlichen Judikatur entwickelt wurden, sondern vor allem auch dem Verständnis eines objektiv redlichen Bieters und den Grundsätzen eines fairen Vergabeverfahrens.
Der Textbaustein „oder gemäß Konzept AN“ findet sich zudem auch bei den Positionen des Leistungsverzeichnisses für die Neuherstellung des Tragwerks findet (vgl hierzu Pos 310321B, 310321B1). Die oben erwähnten Einschränkungen für Alternativangebote in Pos 00B108A Teil B.5 beziehen sich zu einem großen Teil auch auf die Herstellung des Tragwerks. Demnach sind zum Beispiel Alternativen hinsichtlich der Tragswerksertüchtigung 4+0 der RFB Salzburg unzulässig. Zudem sind Pfeilerstandorte einzuhalten, müssen die Tragwerke die gleiche Konstruktionsart/Lagerbedingungen usw aufweisen und sind getrennte Tragwerke für beide Richtungsfahrbahnen vorzusehen.
Würde man – wie von der Auftraggeberin und der präsumtiven Zuschlagsempfängerin behauptet – die unter anderem in der Baubeschreibung enthaltenen Vorgaben als mehr oder weniger unverbindlich betrachten und es jedem Bieter freistellen, ein abweichendes Konzept als Hauptangebot anzubieten, könnte sich der Bieter im Ergebnis über sämtliche Einschränkungen betreffend Alternativangebote hinwegsetzen. In so einer Konstellation wäre auch die Vergleichbarkeit der Angebote nicht gegeben.
Punkt 061038 des Leistungsverzeichnisses B.5 differenziert zwischen ausgeschriebener Abtragsmethode und allenfalls alternativem Abtragskonzept des AN. Daraus ist zuschließen, dass ein Angebot, das nicht die ausgeschriebene Abtragsmethode, sondern einen anderen Modus des Abtragens vorsieht, ein „alternatives Abtragskonzept“ aufweist. Ein Angebot, das ein alternatives Abtragskonzept zum Inhalt hat, ist als Alternativangebot zu qualifizieren. In casu ist daher das als Hauptangebot bezeichnete Angebot als Angebot mit alternativem Abtragskonzept und somit als Alternativangebot zu qualifizieren.
3.4.3 Nach ständiger Rechtsprechung des Verwaltungsgerichtshofes und der Vergabekontrolle steht es nicht in der Disposition des Auftraggebers, von der Anwendung eines Ausscheidenstatbestandes nach seinem Ermessen Gebrauch zu machen. Alleine deshalb, weil der Auftraggeber vor der Wahl des Angebotes für den Zuschlag von einem formalen Ausscheiden eines Angebotes Abstand genommen hat, wird ein auszuscheidendes Angebot nicht zu einem zulässigen Angebot, dem rechtsrichtig der Zuschlag erteilt werden kann (siehe ua VwGH 01.03.2005, 2003/04/0039; VwGH 04.09.2002, 2000/04/0181; VwGH 27.09.2000, 2000/04/0050; BVwG 18.03.2015, W138 2100169-2/21E; BVwG 01.12.2014, W114 2013254-2/24E). Liegt auch nur ein einziger Ausscheidensgrund vor, so ist ein Angebot jederzeit zwingend auszuscheiden (ua BVwG 14.09.2021, w139 2244216-1/25E; BVwG 24.07.2014, W138 2008591-1/45E). Das Verwaltungsgericht ist nach ständiger Rechtsprechung des Verwaltungsgerichtshofes auch befugt, auf solche Gründe für das Ausscheiden eines Angebotes Bedacht zu nehmen, die der Auftraggeber dem Ausscheiden nicht zugrunde gelegt hat (ua VwGH 30.04.2019, Ra 2018/04/0196 mwN; VwGH 10.10.2016, Ra 2016/04/0104 bis 0107 mwN; ebenso ua BVwG 01.07.2020, W187 2231549-2/21E). Dies ergibt sich schon aus § 325 Abs 1 Z 2 BVergG 2006 (nunmehr § 347 Abs 1 Z 2 BVergG 2018), wonach eine gesondert anfechtbare Entscheidung eines Auftraggebers (nur dann) für nichtig zu erklären ist, wenn (ua) die Rechtswidrigkeit für den Ausgang des Vergabeverfahrens von wesentlichem Einfluss ist.
3.5. Zusammenfassung
3.4.5.1 Aus dem Grundsatz der Gleichbehandlung aller Bieter gemäß § 20 Abs 1 BVergG ergibt sich, dass der Auftraggeber alle Alternativangebote auf Grundlage der festgelegten Alternativangebote auf ihre Gleichwertigkeit mit der ausgeschriebenen Leistung prüfen muss, wobei er an alle Alternativangebote den gleichen Maßstab anzulegen hat.
3.4.5.2 Wie oben im Rahmen der rechtlichen Beurteilung konkretisiert, entspricht das von der präsumtiven Zuschlagsempfängerin gelegte Angebot unter Zugrundelegung und Interpretation der Ausschreibungsunterlagen einem Alternativangebot, welches jedoch nur neben einem Hauptangebot hätte gelegt werden dürfen. Da die präsumtive Zuschlagsempfängerin neben dem inhaltlich als Alternativangebot zu qualifizierenden und als Hauptangebot bezeichneten Angebot kein Angebot - das als Hauptangebot zu bezeichnen und tatsächlich als Hauptangebot zu qualifizieren wäre - gelegt hat, ist die Zuschlagsentscheidung entsprechend des Antrags der Antragstellerin für nichtig zu erklären.
3.6 Zu Spruchpunkt B) – Unzulässigkeit der Revision
3.6.1 Gemäß § 25a Abs 1 VwGG hat das Verwaltungsgericht im Spruch seines Erkenntnisses oder Beschlusses auszusprechen, ob die Revision gemäß Art 133 Abs 4 B-VG zulässig ist. Der Ausspruch ist kurz zu begründen.
3.6.2 Die Revision ist gemäß Art 133 Abs 4 B-VG nicht zulässig, weil die Entscheidung nicht von der Lösung einer Rechtsfrage abhängt, der grundsätzliche Bedeutung zukommt. Weder weicht die gegenständliche Entscheidung von der bisherigen Rechtsprechung des Verwaltungsgerichtshofes ab, noch fehlt es an einer Rechtsprechung; weiters ist die vorliegende Rechtsprechung des Verwaltungsgerichtshofes auch nicht als uneinheitlich zu beurteilen. Dazu ist auf die in diesem Erkenntnis zitierte höchstgerichtliche Rechtsprechung verweisen. Auch liegen keine sonstigen Hinweise auf eine grundsätzliche Bedeutung der zu lösenden Rechtsfrage vor.
Rückverweise
Keine Ergebnisse gefunden